Büros
ID B1748Provisionsfrei
Aktualisiert
Büroimmobilie - Berlin, Mitte - B1748
Mitte, 10117, Berlin, Berlin
32 € / m²
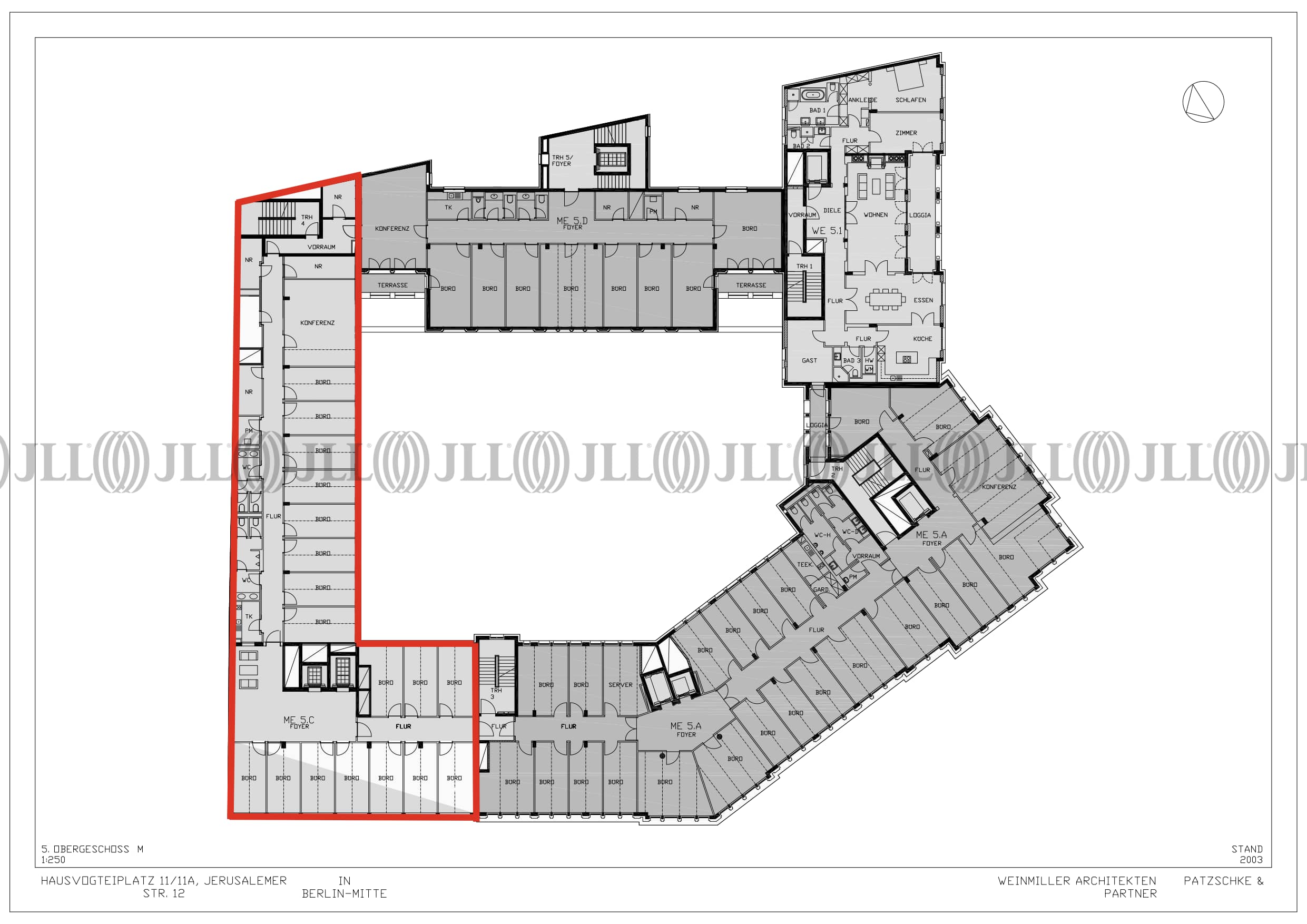
- Fläche350 - 1.227 m²
- VerfügbarkeitSofort
- Objekt
- Ausstattung
- Lage und Verkehrsanbindung
- Grundrisse
- Exposé herunterladen
- Ihr Kontakt
- Anfrage senden
Zertifizierungen
Energieausweis
BREEAM: GoodFür diese Liegenschaft liegt ein Verbrauchsausweis vom 28.10.2021 vom Eigentümer/Vermieter vor. Die wesentlichen Energieträger der Liegenschaft sind KWK, Strom. Der Endenergieverbrauch Strom beträgt 47.70 kWh/(m²*a). Der Endenergieverbrauch Wärme beträgt 66.70 kWh/(m²*a).
Verfügbare Fläche
Lage und Verkehrsanbindung
Das Objekt befindet sich in Berlin Mitte, in erstklassiger Lage direkt am Hausvogteiplatz und in unmittelbarer Nähe zum Gendarmenmarkt. Bedeutende Bauwerke wie die Humboldt-Universität, die Deutsche Staatsoper und diverse Regierungsgebäude sind fußläufig erreichbar. Einkaufsmöglichkeiten, Hotels und Restaurants befinden sich in unmittelbarer Nähe.
- Flughafen, Berlin Brandenburg, Fahrzeit: 30 min
- Bundesautobahn, A 100, Fahrzeit: 20 min
- Bundesautobahn, A 113, Fahrzeit: 20 min
- Bus, Jerusalemer Straße; Linien 265, M48, Gehzeit: 3 min
- U-Bahn, Hausvogteiplatz; Linie U2, Gehzeit: 1 min
- Hauptbahnhof, Berlin, Fahrzeit: 10 min
Ihr Kontakt

Alexandra Teich
Ihr Kontakt
Marktinformationen
Mietmarkt
Mitte, Berlin
Gew. Ø-Miete
32 € / m²
siehe 167 passende MietobjekteErfahren Sie mehr* Durchschnittspreis auf Grundlage historischer Transaktionen.





