Büros
ID B1724Provisionsfrei
Büroimmobilie - Berlin, Spandau - B1724
Spandau, 13597, Berlin, Berlin
16 € / m²
- Fläche450 - 2.023 m²
- VerfügbarkeitSofort
- Objekt
- Ausstattung
- Lage und Verkehrsanbindung
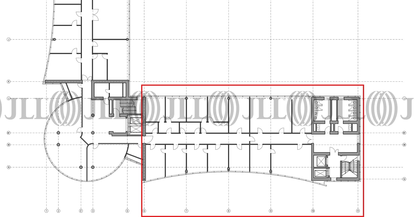
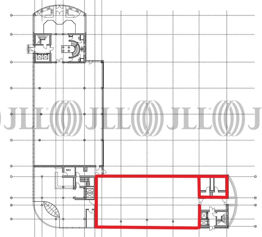
- Grundrisse
- Exposé herunterladen
- Ihr Kontakt
- Anfrage senden
Zertifizierungen
Energieausweis
Für diese Liegenschaft liegt ein Verbrauchsausweis vom 05.05.2014 vom Eigentümer/Vermieter vor. Der wesentliche Energieträger der Liegenschaft ist Öl. Der Endenergieverbrauch Strom beträgt 28.50 kWh/(m²*a). Der Endenergieverbrauch Wärme beträgt 81.10 kWh/(m²*a).Verfügbare Fläche
Lage und Verkehrsanbindung
Das Objekt befindet sich im Berliner Bezirk Spandau. Die Berliner Innerstadt ist über den Spandauer Damm in ca. 20 Minuten erreichbar. Die Altstadt Spandau ist fußläufig in ca. 10 Minuten zu erreichen.
- Hauptbahnhof, Berlin, Gehzeit: 25 min
- Bus, Stresow, Linie 130, Gehzeit: 1 min
- Bundesautobahn, A 100, Fahrzeit: 12 min
- Flughafen, Berlin Brandenburg, Fahrzeit: 40 min
Ihr Kontakt

Alexandra Teich
Ihr Kontakt


