Büros
ID B1713Aktualisiert
Büroimmobilie - Berlin, Charlottenburg - B1713
Charlottenburg, 10719, Berlin, Berlin
Provisionspflichtig: bei Anmietung 3 Netto-Monatsmieten zzgl. gesetzlicher Umsatzsteuer.** der Wert kann je nach Vertragslaufzeit variieren.
25 € / m²
- Fläche101 - 448 m²
- VerfügbarkeitSofort
- Objekt
- Ausstattung
- Lage und Verkehrsanbindung
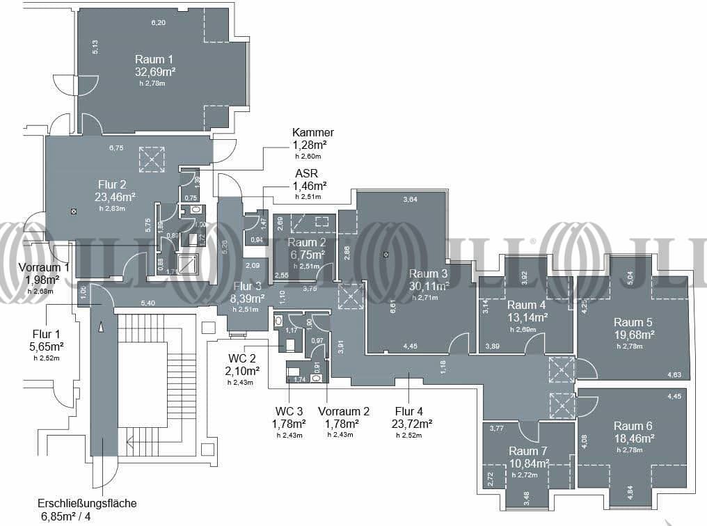
- Grundrisse
- Exposé herunterladen
- Ihr Kontakt
- Anfrage senden
Objekt
Die Ausstattung und Aufteilung kann gemäß den individuellen Wünschen realisiert werden.
Zertifizierungen
Energieausweis
Für diese Liegenschaft liegt ein Verbrauchsausweis vom 2018-04-17 vom Eigentümer/Vermieter vor. Der wesentliche Energieträger der Liegenschaft ist Fernwärme. Der Endenergieverbrauch Strom beträgt 71.00 kWh/(m²*a). Der Endenergieverbrauch Wärme beträgt 127.00 kWh/(m²*a).Verfügbare Fläche
Lage und Verkehrsanbindung
Das Objekt befindet sich im Berliner Stadtteil Wilmersdorf, in unmittelbarer Nähe zum Kurfürstendamm, welcher innerhalb weniger Gehminuten erreichbar ist. Die Stadtautobahn ist ebenfalls nur wenige Autominuten entfernt, ebenso der Potsdamer Platz, welcher einer der Hauptknotenpunkte zwischen Ost und West darstellt. Zahlreiche Anbieter des täglichen Bedarfs, namhafte Einzelhandelsgeschäfte sowie gastronomische Einrichtungen befinden sich in unmittelbarer Umgebung. Dienstleister des täglichen Bedarfs befinden sich in der Nähe.
- Flughafen, Berlin Brandenburg, Fahrzeit: 45 min
- Bundesautobahn, A 100, Fahrzeit: 15 min
- Bundesautobahn, A 111, Fahrzeit: 20 min
- Bus, U-Bahnhof Kurfürstendamm; Linien 109, 110, 204, Gehzeit: 5 min
- U-Bahn, Kurfürstendamm; Linien U1, U9, Gehzeit: 5 min
- Hauptbahnhof, Berlin, Fahrzeit: 15 min
Ihr Kontakt

Chiara Costa Jacinto
Ihr Kontakt
Marktinformationen
Mietmarkt
Charlottenburg, Berlin
Gew. Ø-Miete
25 € / m²
siehe 99 passende MietobjekteErfahren Sie mehr* Durchschnittspreis auf Grundlage historischer Transaktionen.














