Büros
ID B1707Provisionsfrei
Aktualisiert
Büroimmobilie - Leipzig, Zentrum-Ost - B1707
Zentrum-Ost, 04103, Leipzig, Sachsen
15 € / m²
- Fläche142 - 4.355 m²
- VerfügbarkeitAuf Anfrage
- Objekt
- Ausstattung
- Lage und Verkehrsanbindung
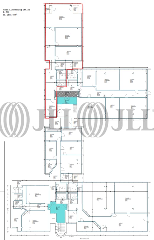
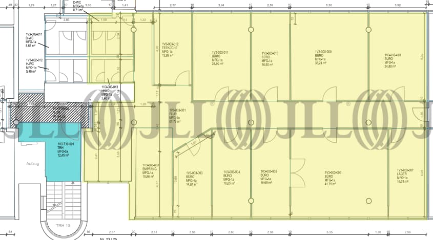
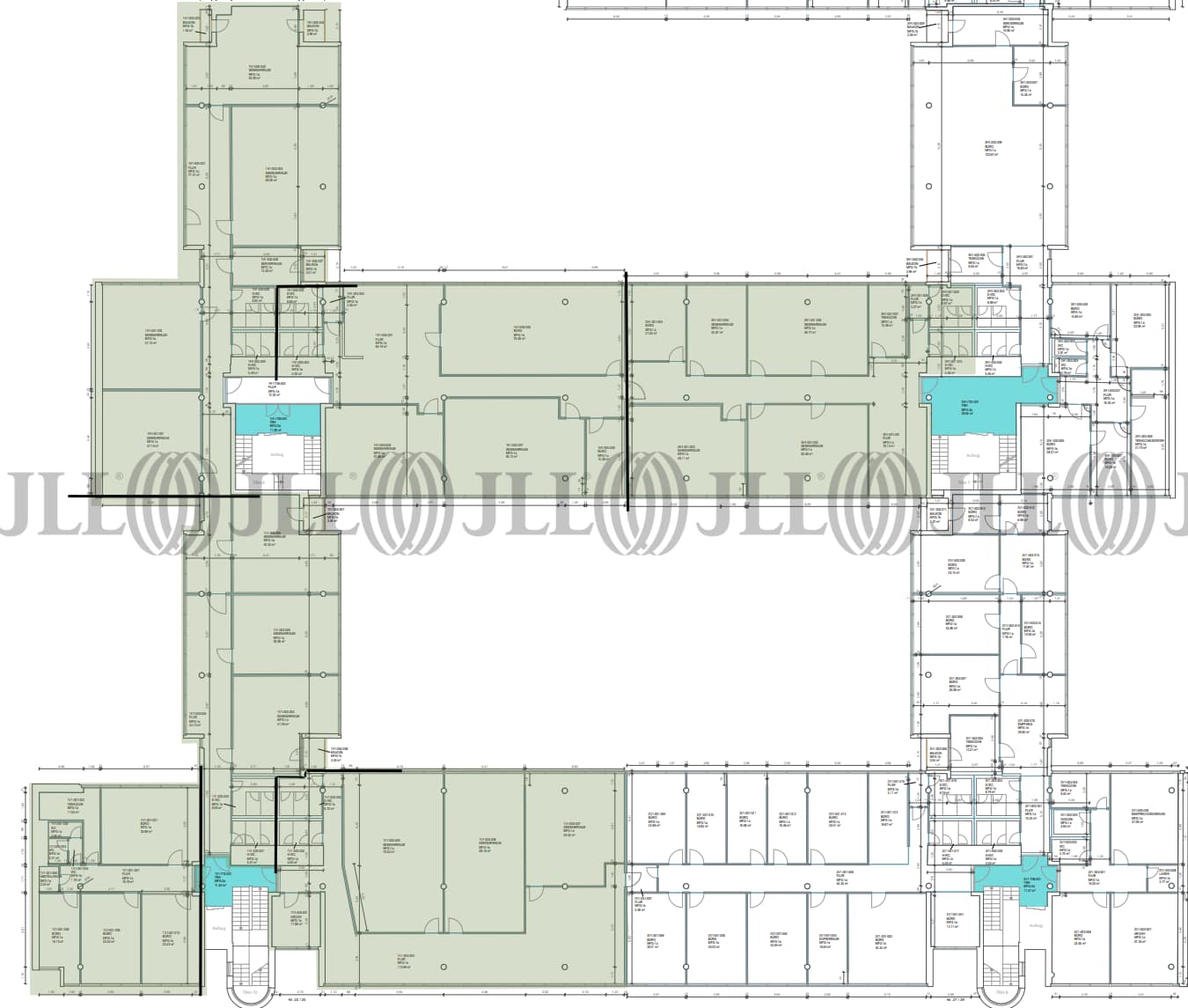
- Grundrisse
- Exposé herunterladen
- Ihr Kontakt
- Anfrage senden
Objekt
Der repräsentative Eckbau im „Graphischen Viertel“ bietet mehrere verschieden große Flächen von 162 m² bis 1.655 m². Verteilt sind diese auf verschiedenen Etagen und Bauteilen. Die Aufteilung der Flächen ist individuell realisierbar und ermöglicht sowohl die Darstellung von Einzel- und Gruppenbüros als auch von Open-Space-Konzepten. Hervorzuheben ist insbesondere die Möglichkeit große, zusammenhängende Flächen abzubilden. Bodentiefe Fensterfronten garantieren ausreichend Tageslicht auf den Flächen. Das Gebäude verfügt über einen eindrucksvollen Haupteingang am Friedrich-List-Platz. Darüber hinaus existiert im Gebäude eine Kantine. Die Flächen sind an ein Kühlsystem angeschlossen. Parkplätze sind ausreichend vorhanden.
Zertifizierungen
Energieausweis
DGNB: GoldVerfügbare Fläche
Lage und Verkehrsanbindung
Im Osten des Leipziger Zentrums gelegen, dominiert der markante Stahlbetonbau des Listhauses am Friedrich-List-Platz die Umgebung. Der Standort des Objekts wird zudem höchsten Ansprüchen verkehrstechnischer Vernetzung gerecht. Das Stadtzentrum und der Hauptbahnhof können zu Fuß in weniger als 15 Minuten erreicht werden. Die direkt anliegende B 2 verbindet das Objekt mit den Autobahnen A 9 und A 14. Die Haltestelle des ÖPNV befindet sich direkt vor dem repräsentativen Haupteingang des Eckbaus am Friedrich-List-Platz. Das Objekt vereint somit herausragende Infrastruktur, moderne Architektur und flexible Büroräume. Eine Tankstelle befindet sich in der Nähe. Dienstleister des täglichen Bedarfs befinden sich in der Nähe.
- Flughafen, Leipzig/Halle, Fahrzeit: 18 min
- Bundesautobahn, A 14, Fahrzeit: 10 min
- Bundesautobahn, A 9, Fahrzeit: 18 min
- Bus, Leipzig Hauptbahnhof, Linien u.a. 72, 73, 89, Gehzeit: 12 min
- Straßenbahn/Tram, Friedrich-List-Platz, Linien 1, 3, 8, Gehzeit: 1 min
Ihr Kontakt

Kay Förster
Ihr Kontakt









