Büros
ID B1699Provisionsfrei
Büroimmobilie - Halle (Saale), Mitte - B1699
Mitte, 06112, Halle (Saale), Sachsen-Anhalt
9 € / m²
- Fläche431 - 876 m²
- VerfügbarkeitSofort
- Objekt
- Ausstattung
- Lage und Verkehrsanbindung
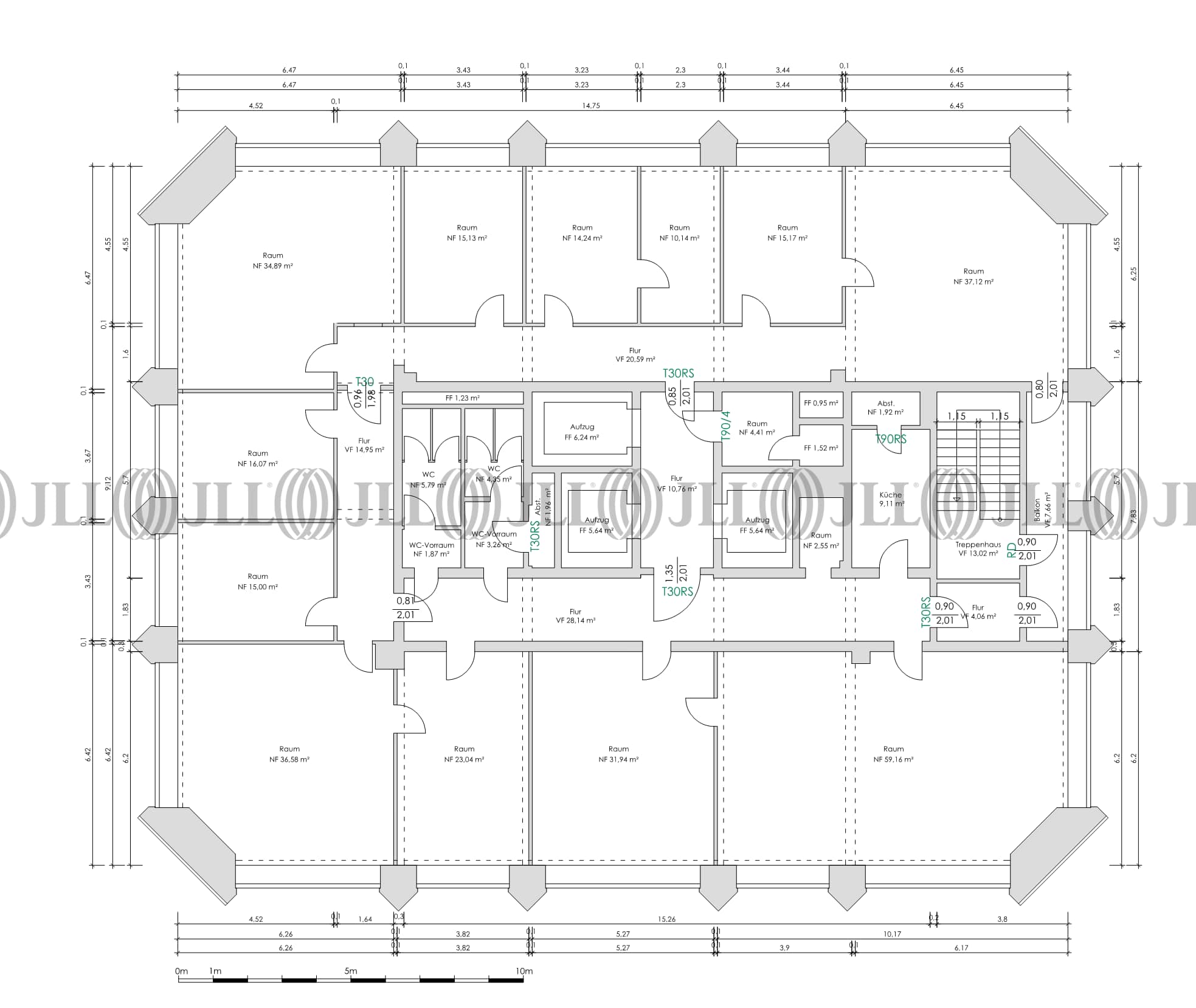
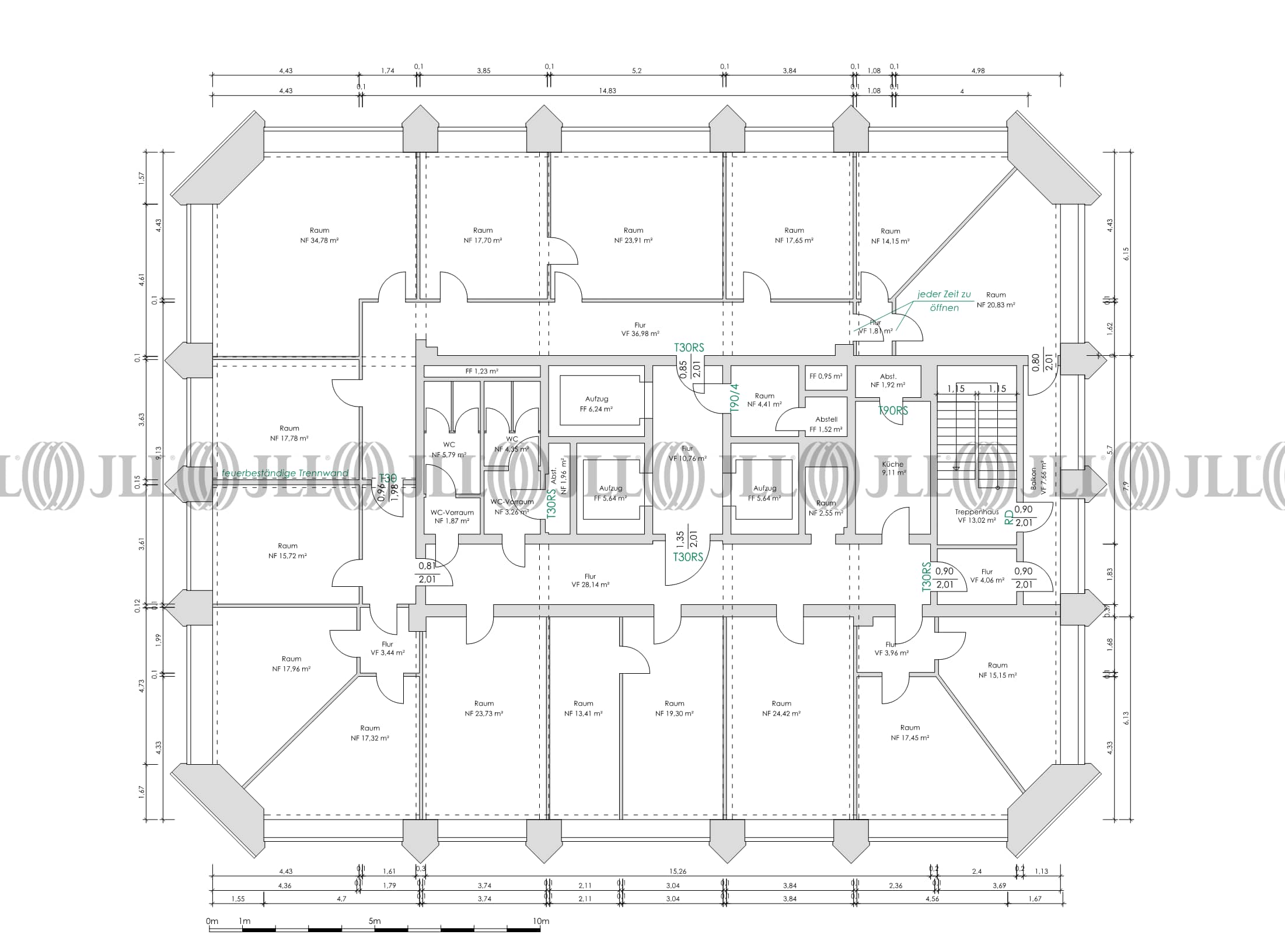
- Grundrisse
- Exposé herunterladen
- Ihr Kontakt
- Anfrage senden
Objekt
Der imposante Büroturm bietet ein inspirierendes und synergetisches Büro- und Dienstleistungsumfeld. Um den zentralen Kern, der Serverraum, Teeküche, Sanitäranlagen, Aufzüge und Treppenhaus umfasst, sind die Büroräume angeordnet. Die Aufteilung der Flächen ist flexibel und kann den individuellen Bedürfnissen des Mieters angepasst werden. Ausreichend PKW-Stellplätze für Mieter und Kunden stehen direkt auf dem Grundstück zur Verfügung. Ein 24-stündiger Concierge- und Wachdienst sorgt für zusätzlichen Komfort und Sicherheit. Der endgültige Mietpreis richtet sich nach den gewünschten Grundrissanpassungen, mieterspezifischen Ausbauwünschen und der vereinbarten Vertragslaufzeit.
Zertifizierungen
Energieausweis
Für diese Liegenschaft liegt ein Bedarfsausweis vom 31.07.2024 vom Eigentümer/Vermieter vor. Die wesentlichen Energieträger der Liegenschaft sind Erdgas schwer, Strom. Der Endenergiebedarf Strom beträgt 20 kWh/(m²*a). Der Endenergiebedarf Wärme beträgt 108 kWh/(m²*a).Verfügbare Fläche
Lage und Verkehrsanbindung
Der Büroturm ist in der „Nördlichen Innenstadt“ lokalisiert, nur wenige Gehminuten von der Altstadt entfernt. Die verkehrstechnische Erschließung des Standortes ist hervorragend. So verfügt der nahegelegene Hauptbahnhof Halle zum Beispiel über eine Anbindung an das regionale und überregionale Streckennetz. In der unmittelbaren Umgebung gelegen, verspricht der Stadtpark der Händelstadt Halle Erholung in der Mittagspause. Mehrere Bistros und Kaffees servieren ein abwechslungsreiches Speisenangebot.
- Flughafen, Leipzig/Halle, Fahrzeit: 23 min
- Bundesautobahn, A 14, Fahrzeit: 9 min
- Bundesautobahn, A 9, Fahrzeit: 17 min
- Bundesautobahn, A 143, Fahrzeit: 19 min
- Straßenbahn/Tram, Magdeburger Straße, Linien 2, 5, 12, Gehzeit: 1 min
- Hauptbahnhof, Halle, Fahrzeit: 4 min
Ihr Kontakt

Kay Förster
Ihr Kontakt



