Büros
ID B1698Provisionsfrei
Büroimmobilie - Berlin, Tiergarten - B1698
Tiergarten, 10787, Berlin, Berlin
25 € / m²
- Fläche1.055 m²
- VerfügbarkeitDezember 2026
- Objekt
- Ausstattung
- Lage und Verkehrsanbindung
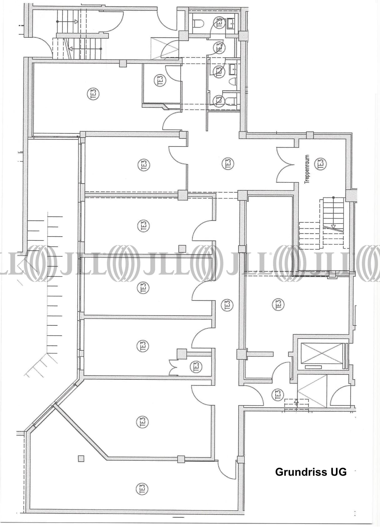
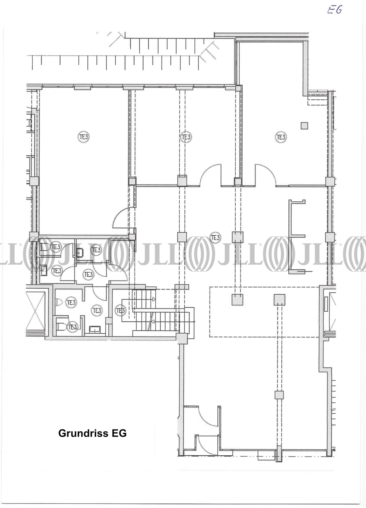
- Grundrisse
- Exposé herunterladen
- Ihr Kontakt
- Anfrage senden
Objekt
Der helle Eingangsbereich bildet das Zentrum der drei Stockwerke, welche mit einer internen Treppe verbunden sind. Die große Terrasse ist zum begrünten Innenhof gelegen, sodass ein ruhiges Arbeiten in sehr zentraler Lage möglich ist. Die ca. 1.055 m² sind hochwertig ausgebaut und ab 01.12.2026 bezugsfertig.
Zertifizierungen
Energieausweis
Für diese Liegenschaft liegt ein Verbrauchsausweis vom 12.09.2018 vom Eigentümer/Vermieter vor. Der wesentliche Energieträger der Liegenschaft ist Fernwärme. Endenergieverbrauch: 105.1 kWh/(m²*a)Verfügbare Fläche
Lage und Verkehrsanbindung
Das Objekt befindet sich in prominenter Ecklage in einer der attraktivsten Lagen Berlins. Der Anschluss an das öffentliche Nahverkehrsnetz erfolgt über den U-Bahnhof Wittenbergplatz sowie den U-/S- und Fernbahnhof Zoologischer Garten. Ferner verkehren diverse Buslinien vor dem Objekt. Einkaufsmöglichkeiten des täglichen Bedarfs und gastronomische Einrichtungen säumen das Umfeld.
- U-Bahn, Wittenbergplatz, Linien U1, U2, Gehzeit: 10 min
- Bus, Budapester Straße, Linie 200, Gehzeit: 1 min
- Bundesautobahn, A 100, Fahrzeit: 15 min
- Bundesautobahn, A 113, Fahrzeit: 20 min
- Flughafen, Berlin Brandenburg, Fahrzeit: 30 min
Ihr Kontakt

Sophie Schröter
Ihr Kontakt
Marktinformationen
Mietmarkt
Tiergarten, Berlin
siehe 1 passende MietobjekteErfahren Sie mehr
* Durchschnittspreis auf Grundlage historischer Transaktionen.








