Büros
ID B1682Provisionsfrei
Büroimmobilie - Berlin, Marienfelde - B1682
Marienfelde, 12277, Berlin, Berlin
14,50 € / m²
- Fläche882 - 2.780 m²
- VerfügbarkeitSofort
- Ausstattung
- Lage und Verkehrsanbindung
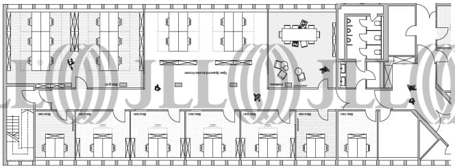
- Grundrisse
- Exposé herunterladen
- Ihr Kontakt
- Anfrage senden
Verfügbare Fläche
Lage und Verkehrsanbindung
Das Objekt liegt im Ortsteil Marienfelde des Berliner Bezirkes Tempelhof.
- Hauptbahnhof, Berlin, Fahrzeit: 35 min
- S-Bahn, Buckower Chaussee; Linie S2, Gehzeit: 15 min
- Bus, Nahmitzer Damm; Linien 112, 277, M11, X83, Gehzeit: 4 min
- Bundesautobahn, A 100, Fahrzeit: 20 min
- Bundesautobahn, A 113, Fahrzeit: 25 min
- Flughafen, Berlin Brandenburg, Fahrzeit: 20 min
Ihr Kontakt

Tobias Rodewald
Ihr Kontakt
Marktinformationen
Mietmarkt
Marienfelde, Berlin
siehe 2 passende MietobjekteErfahren Sie mehr
* Durchschnittspreis auf Grundlage historischer Transaktionen.





