Büros
ID B1661Provisionsfrei
Aktualisiert
Büroimmobilie - Berlin, Alt-Hohenschönhausen - B1661
Alt-Hohenschönhausen, 13053, Berlin, Berlin
7,50 € / m²
- Fläche246 - 1.051 m²
- VerfügbarkeitSofort
- Objekt
- Ausstattung
- Lage und Verkehrsanbindung
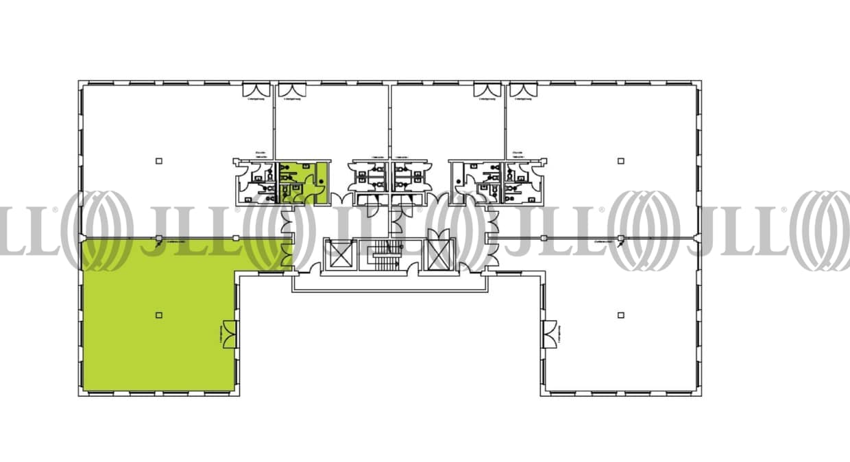
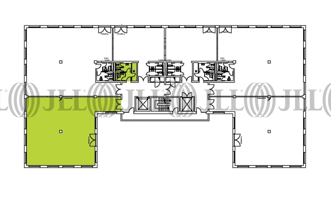
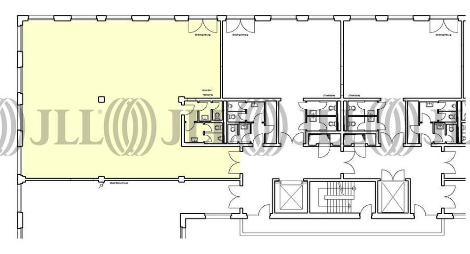
- Grundriss
- Exposé herunterladen
- Ihr Kontakt
- Anfrage senden
Objekt
In einem etablierten Gewerbehof im Nordosten Berlins befindet sich ein moderner Gebäudekomplex, der sich durch seine markante Architektur auszeichnet. Die 1998 fertiggestellten Bauten erinnern mit ihren Klinkerfassaden bewusst an die Industriearchitektur der 1920er Jahre und umfassen insgesamt 13 einzelne Häuser. Auf einer Gesamtfläche von fast 82.000 Quadratmetern verteilen sich rund 500 Mieteinheiten, die flexibel nutzbare Büro-, Gewerbe- und Produktionsflächen bieten. Die Größen der Einheiten variieren und sprechen damit unterschiedliche Nutzergruppen an. Für eine hohe digitale Konnektivität und zukunftssichere Arbeitsbedingungen sorgt eine Zertifizierung, die eine leistungsstarke Anbindung an ein modernes Glasfasernetz garantiert. Ein begrünter Innenhof mit Sitzgelegenheiten sowie eine Kantine vor Ort tragen zur Aufenthaltsqualität für die Mieter bei und fördern eine kommunikative Atmosphäre.
Zertifizierungen
Energieausweis
WIREDSCORE: PlatinumFür diese Liegenschaft liegt ein Bedarfsausweis vom 28.11.2014 vom Eigentümer/Vermieter vor. Die wesentlichen Energieträger der Liegenschaft sind Erdgas leicht, Strom. Der Endenergiebedarf Strom beträgt 8.00 kWh/(m²*a). Der Endenergiebedarf Wärme beträgt 101.50 kWh/(m²*a).
Verfügbare Fläche
Lage und Verkehrsanbindung
Der Standort befindet sich im Bezirk Lichtenberg, einem der wachstumsstärksten Bezirke Berlins. Eingebettet in das größte zusammenhängende Gewerbegebiet der Stadt, profitiert die Liegenschaft von einem dynamischen Umfeld aus Handel, Gewerbe und Dienstleistungen.
- Hauptbahnhof, Berlin, Fahrzeit: 35 min
- Bus, Rhinstraße/ Gärtnerstraße, Linie 294, Gehzeit: 4 min
- Straßenbahn/Tram, Rhinstraße/ Gärtnerstraße, Linien 12,21,27, M4, M5, M10, M13, M17, Gehzeit: 4 min
- Bundesautobahn, A 10, Fahrzeit: 15 min
- Bundesautobahn, A 114, Fahrzeit: 20 min
- Bundesstraße, B 158, Fahrzeit: 5 min
- Flughafen, Berlin Brandenburg, Fahrzeit: 40 min
Ihr Kontakt

Alexandra Teich
Ihr Kontakt



