Büros
ID B1625Provisionsfrei
Büroimmobilie - Wiedemar - B1625
04509, Wiedemar, Sachsen
Kontaktieren Sie uns für den Preis
- Fläche100 - 7.673 m²
- VerfügbarkeitAuf Anfrage
- Objekt
- Ausstattung
- Lage und Verkehrsanbindung
- Grundrisse
- Exposé herunterladen
- Ihr Kontakt
- Anfrage senden
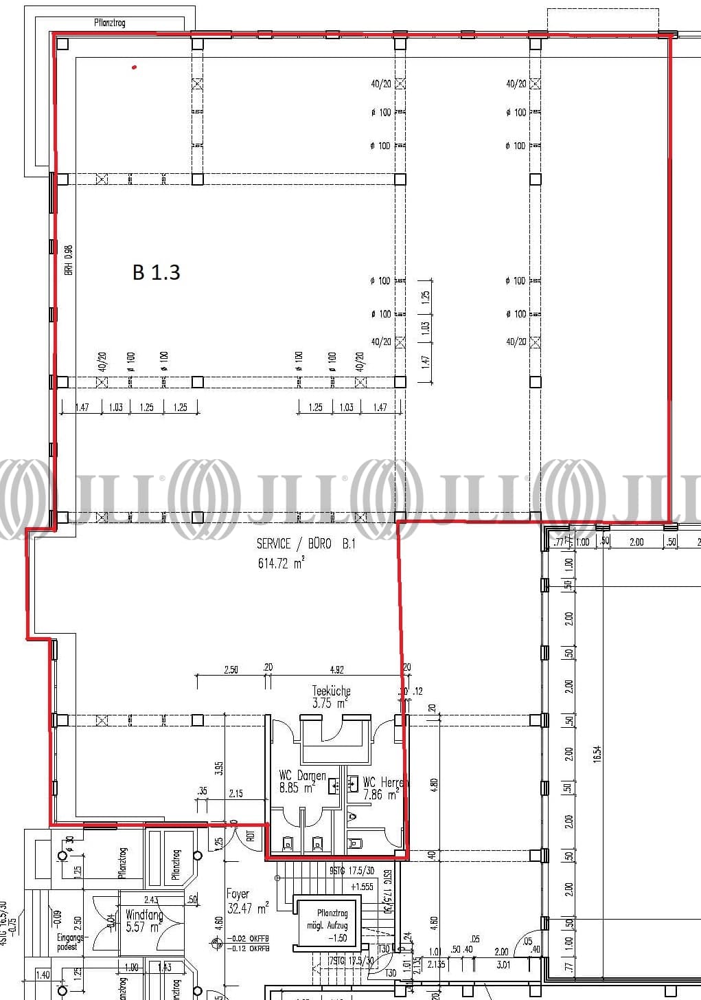
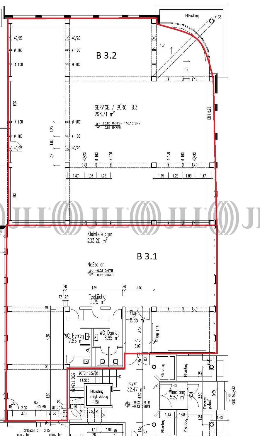
Objekt
Es stehen Büroeinheiten zwischen ca. 128 m² und 1.200 m² zur Anmietung bereit. Die hellen Büroflächen am Standort bieten aktuell eine offene Struktur, in deren individuelle Gestaltung die Mieterwünsche nach Maßgabe moderner Infrastruktur einfließen können. Das Gebäude ist über das Glasfasernetz an das Internet angeschlossen. Das Objekt wurde 1993 fertiggestellt. Die Fenster- und Fassadenabdichtungen erfuhren jüngst eine Erneuerung. Zwei Tiefgaragen bieten auf Wunsch je ca. 190 Stellplätze.
Verfügbare Fläche
Lage und Verkehrsanbindung
Das Objekt befindet sich unmittelbar an der BAB 9 Berlin – Nürnberg an der Anschlussstelle Wiedemar. Der internationale Flughafen Leipzig/ Halle liegt südlich des Standortes und ist ca. 5 Fahrminuten entfernt. In ca. 20 Autofahrminuten sind die Städte Leipzig und Halle erreichbar. Eine gastronomische Verpflegung garantieren die Kantinen der dort ansässigen Möbelhäuser bzw. die in der Ortschaft Wiedemar vorhandenen Bistros.
- Flughafen, Leipzig/Halle, Fahrzeit: 5 min
- Bundesautobahn, A 9, Fahrzeit: 1 min
- Bundesautobahn, A 14, Fahrzeit: 6 min
- Bundesstraße, B 100, Fahrzeit: 7 min
- Bus, Wiedemar, Airterminalstraße Buslinie 190, Gehzeit: 2 min
Ihr Kontakt

Nico Schill
Ihr Kontakt





