Büros
ID B1596Provisionsfrei
Aktualisiert
Büroimmobilie - Berlin, Schöneberg - B1596
Schöneberg, 10827, Berlin, Berlin
15 € - 26 € / m²
- Fläche79 - 2.117 m²
- VerfügbarkeitSofort
- Ausstattung
- Lage und Verkehrsanbindung
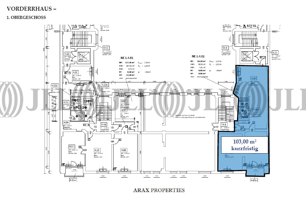
- Grundrisse
- Exposé herunterladen
- Ihr Kontakt
- Anfrage senden
Verfügbare Fläche
Lage und Verkehrsanbindung
Das Objekt befindet sich im Berliner Stadtbezirk Schöneberg - nahe dem Kaiser-Wilhelm-Platz. Viele Einkaufsmöglichkeiten für den täglichen Bedarf aber auch gastronomische Einrichtungen sind in wenigen Minuten fußläufig zu erreichen. Dienstleister des täglichen Bedarfs befinden sich in der Nähe.
- Flughafen, Berlin Brandenburg, Fahrzeit: 20 min
- Bundesautobahn, A 100, Fahrzeit: 5 min
- Bus, Julius-Leber-Brücke, Linien 104,106,204, Gehzeit: 5 min
- S-Bahn, Julius-Leber-Brücke, Linien S1, S2, Gehzeit: 5 min
Ihr Kontakt

Chiara Costa Jacinto
Ihr Kontakt
Marktinformationen
Mietmarkt
Schöneberg, Berlin
Gew. Ø-Miete
15 € - 26 € / m²
siehe 30 passende MietobjekteErfahren Sie mehr* Durchschnittspreis auf Grundlage historischer Transaktionen.
















