Büros
ID B1529Provisionsfrei
Aktualisiert
Büroimmobilie - Berlin, Charlottenburg - B1529
Charlottenburg, 10719, Berlin, Berlin
35 € - 40 € / m²
- Fläche700 - 948 m²
- VerfügbarkeitII quartal 2027
- Objekt
- Ausstattung
- Lage und Verkehrsanbindung
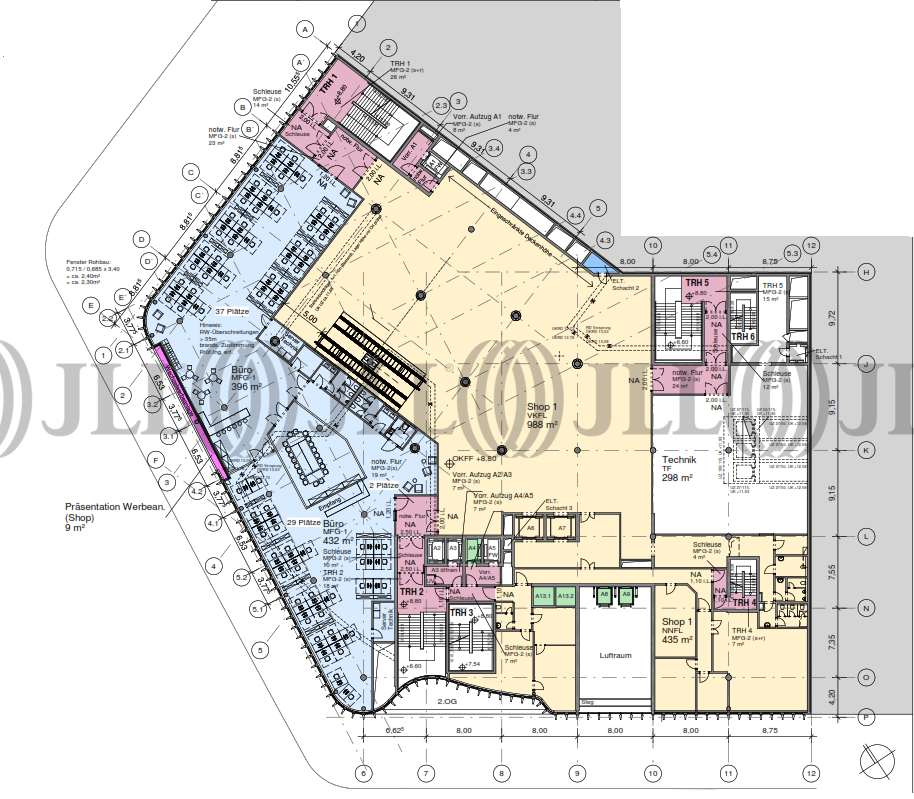
- Grundrisse
- Exposé herunterladen
- Ihr Kontakt
- Anfrage senden
Objekt
Bei dem Gebäude handelt es sich um ein städtebaulich prägendes Büro- und Geschäftshaus, das aus einem ehemaligen Hotel- und Einzelhandelskomplex hervorgegangen ist. Durch eine umfassende Umwandlung entstanden moderne und hochwertige Büroflächen, die sich über die oberen Etagen vom dritten bis zum elften Obergeschoss erstrecken. Die unteren Geschosse sind dem Einzelhandel vorbehalten und beherbergen verschiedene Geschäfte. Die für das Erscheinungsbild und den hohen Wiedererkennungswert verantwortliche Aluminium-Lamellen-Fassade wurde bei dem Umbau weitestgehend erhalten, während die Fassadenbereiche in den unteren beiden Etagen neugestaltet und strukturiert wurden, um der neuen Nutzung gerecht zu werden. Die Immobilie zeichnet sich durch ihre gemischte Nutzung aus Verwaltung und Einkauf aus.
Zertifizierungen
Energieausweis
DGNB: PlatinumVerfügbare Fläche
Lage und Verkehrsanbindung
Der Standort befindet sich an einem der prominentesten Eckpunkte in der westlichen Berliner Innenstadt, diagonal gegenüber einer bekannten Café-Institution. Diese Hauptverkehrs- und Einkaufsstraße ist ein touristischer Anziehungspunkt in der Metropole und geprägt durch gehobenen Handel, vielfältige Gastronomie und zahlreiche Hotels. Die unmittelbare Umgebung zählt zu den bedeutendsten Lagen im Bezirk Charlottenburg-Wilmersdorf und bietet eine exzellente Anbindung an das öffentliche Verkehrsnetz. Die Lage zeichnet sich durch eine hohe Passantenfrequenz und eine pulsierende, urbane Atmosphäre aus, die sowohl Geschäftsleute als auch Besucher aus aller Welt anzieht. In der Nachbarschaft befinden sich zahlreiche weitere Geschäfte, kulturelle Einrichtungen und Sehenswürdigkeiten, die die Attraktivität des Standortes unterstreichen.
- Flughafen, Berlin Brandenburg, Fahrzeit: 40 min
- Bundesautobahn, A 100, Fahrzeit: 10 min
- Bus, U Kurfürstendamm, Linien 109, 110, 204, 249, M29, Gehzeit: 1 min
- S-Bahn, Zoologischer Garten; Linien S3, S5, S7, S9, Gehzeit: 8 min
- U-Bahn, Kurfürstendamm; Linien U1, U9, Gehzeit: 2 min
Ihr Kontakt

Chiara Costa Jacinto
Ihr Kontakt
Marktinformationen
Mietmarkt
Charlottenburg, Berlin
Gew. Ø-Miete
35 € - 40 € / m²
siehe 99 passende MietobjekteErfahren Sie mehr* Durchschnittspreis auf Grundlage historischer Transaktionen.





