Büros
ID B1518Provisionsfrei
Büroimmobilie - Leipzig, Zentrum - B1518
Zentrum, 04109, Leipzig, Sachsen
18 € / m²
- Fläche190 - 440 m²
- VerfügbarkeitAuf Anfrage
- Objekt
- Ausstattung
- Lage und Verkehrsanbindung
- Grundriss
- Exposé herunterladen
- Ihr Kontakt
- Anfrage senden
Objekt
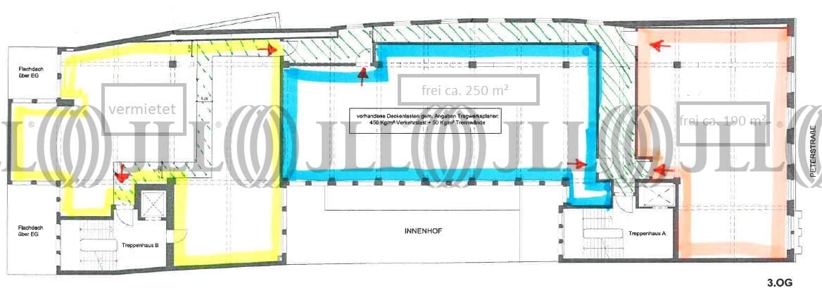
Das Geschäftshaus „Drei Könige“ wurde von Gustav Pflaume und Julius Nebel 1915/1916 als kleinster der innerstädtischen Messepaläste erbaut. Es markierte bis 1990 das Zentrum der Schuhmesse der Stadt Leipzig. Aktuell stehen im Objekt zwei Rohbauflächen mit ca. 190 m² bzw. 250 m² zur Verfügung.
Die Angebotsmiete bezieht sich auf einen Standard-Büroausbau und ist zudem abhängig von der gewünschten Vertragslaufzeit.
Die Angebotsmiete bezieht sich auf einen Standard-Büroausbau und ist zudem abhängig von der gewünschten Vertragslaufzeit.
Verfügbare Fläche
Lage und Verkehrsanbindung
Die Leipziger Innenstadt zeichnet sich durch eine kompakte City mit sehr attraktiven Handelsstrukturen und einem Mix aus aufwendig sanierten Handelshöfen, Passagen und stilvollen Neubauten aus. Das Wohn- und Geschäftshaus „Drei Könige“ ist direkt über die Petersstraße zugänglich. Letztere verläuft in südlicher Richtung vom Leipziger Markt zum Wilhelm-Leuschner-Platz und zählt zu den traditionellsten und frequenzstärksten Einkaufsstraßen der Stadt Leipzig. Die Immobilie ist lediglich 3 Gehminuten vom Leipziger Markt entfernt. Hier befindet sich die unterirdische Haltestelle der S-Bahn, die seit Ende 2013 die Leipziger Innenstadt mit ihrem mitteldeutschen Umfeld verbindet. Halle/Saale, Zwickau, Dessau und Hoyerswerda sind nunmehr umstandslos zu erreichen. Dienstleister des täglichen Bedarfs befinden sich in der Nähe.
- Hauptbahnhof, Leipzig, Gehzeit: 15 min
- Hauptbahnhof, Leipzig, Fahrzeit: 7 min
- S-Bahn, Wilhelm-Leuschner Platz, Gehzeit: 3 min
- Bus, Leipzig-Markt Linie 89, Gehzeit: 3 min
- Bundesautobahn, A 14, Fahrzeit: 20 min
- Bundesautobahn, A 38, Fahrzeit: 15 min
- Bundesstraße, B 2, Fahrzeit: 7 min
- Bundesstraße, B 87, Fahrzeit: 5 min
- Flughafen, Leipzig/Halle, Fahrzeit: 28 min
Ihr Kontakt

Kay Förster
Ihr Kontakt
Marktinformationen
Mietmarkt
Zentrum, Leipzig
siehe 50 passende MietobjekteErfahren Sie mehr
* Durchschnittspreis auf Grundlage historischer Transaktionen.



