Büros
ID B1517Provisionsfrei
Büroimmobilie - Leipzig, Altlindenau - B1517
Altlindenau, 04177, Leipzig, Sachsen
8,50 € / m²
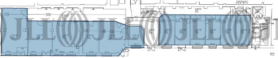
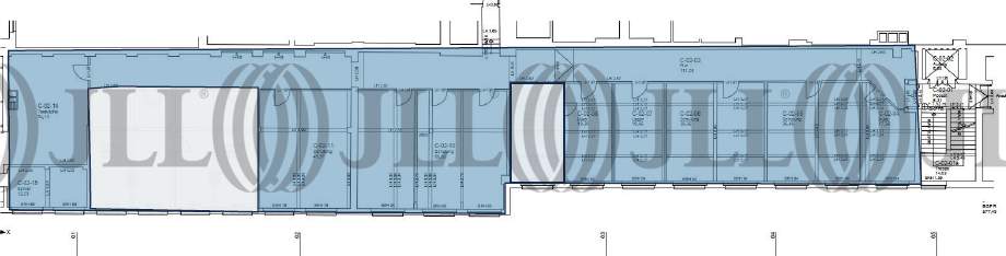
- Fläche156 - 3.105 m²
- VerfügbarkeitAuf Anfrage
- Objekt
- Ausstattung
- Lage und Verkehrsanbindung
- Grundrisse
- Exposé herunterladen
- Ihr Kontakt
- Anfrage senden
Objekt
Die Angerhöfe, ein architektonisches Meisterwerk, wurden 1998 umfassend saniert und erstrahlen seitdem als herausragender Business-Hub mit hochmodernem Standard. In einem beeindruckenden Gebäudekomplex mit fünf separaten Hauseingängen bieten sie sowohl Büro- als auch Atelierflächen, die den höchsten Ansprüchen an Funktionalität und Design gerecht werden.
Exklusiv angepasst an die Wünsche der Mieter, lassen sich die Einheiten hinsichtlich Größe und Ausstattung flexibel gestalten. Die hauseigene Kantine verspricht kulinarische Vielfalt direkt vor Ort, während PKW-Stellplätze im Hof eine entspannte Anreise gewährleisten.
Mit einer großzügigen Fläche von insgesamt ca. 3.200 m², aufgeteilt in Einheiten von ca. 156 m² bis ca. 800 m², bieten die Angerhöfe maximale Flexibilität in der Raumgestaltung. Die Mietflächen sind nicht nur flexibel aufteilbar, sondern auch individuell ausstattbar, um den spezifischen Anforderungen jedes Unternehmens gerecht zu werden. tauchen Sie ein in die inspirierende Umgebung der Angerhöfe und erleben Sie eine Arbeitskultur, die neue Maßstäbe setzt.
Exklusiv angepasst an die Wünsche der Mieter, lassen sich die Einheiten hinsichtlich Größe und Ausstattung flexibel gestalten. Die hauseigene Kantine verspricht kulinarische Vielfalt direkt vor Ort, während PKW-Stellplätze im Hof eine entspannte Anreise gewährleisten.
Mit einer großzügigen Fläche von insgesamt ca. 3.200 m², aufgeteilt in Einheiten von ca. 156 m² bis ca. 800 m², bieten die Angerhöfe maximale Flexibilität in der Raumgestaltung. Die Mietflächen sind nicht nur flexibel aufteilbar, sondern auch individuell ausstattbar, um den spezifischen Anforderungen jedes Unternehmens gerecht zu werden. tauchen Sie ein in die inspirierende Umgebung der Angerhöfe und erleben Sie eine Arbeitskultur, die neue Maßstäbe setzt.
Verfügbare Fläche
Lage und Verkehrsanbindung
Der Stadtteil Lindenau befindet sich im Westen der sächsischen Metropole Leipzig. Das Viertel besticht durch eine Vielzahl historischer Industriebauten und seine ansprechende Lage am Palmengarten und dem Elsterflutbecken. Der Standort erfuhr durch die Eröffnung des Kaufland im Jahr 2012, als auch durch eine Vielzahl verschiedener Einzelhändler eine Aufwertung. Zudem weißt der Lindenauer Markt eine günstige verkehrstechnische Anbindung sowohl an das Netz des ÖPNV als auch durch die Nähe zur B 87 auf. Letztere verbindet den Stadtteil mit der Autobahn A 9.
- Flughafen, Leipzig/Halle, Fahrzeit: 25 min
- Bundesautobahn, A 9, Fahrzeit: 16 min
- Bundesautobahn, A 38, Fahrzeit: 20 min
- Bundesautobahn, A 14, Fahrzeit: 22 min
- Bundesstraße, B 87, Fahrzeit: 2 min
- Bundesstraße, B 181, Fahrzeit: 5 min
- Straßenbahn/Tram, Angerbrücke Linie 3, 7, 8, 15, Gehzeit: 5 min
- Hauptbahnhof, Leipzig, Fahrzeit: 10 min
Ihr Kontakt

Kay Förster
Ihr Kontakt






