Büros
ID B1516Provisionsfrei
Büroimmobilie - Leipzig, Altlindenau - B1516
Altlindenau, 04177, Leipzig, Sachsen
12 € / m²
- Fläche169 - 835 m²
- VerfügbarkeitSofort
- Objekt
- Ausstattung
- Lage und Verkehrsanbindung
- Grundrisse
- Exposé herunterladen
- Ihr Kontakt
- Anfrage senden
Objekt
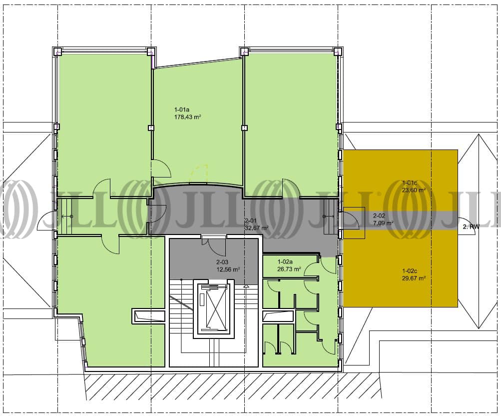
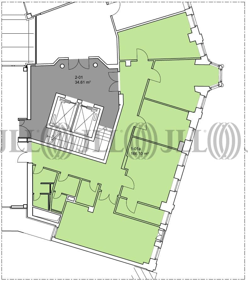
Das Gebäudeensemble besteht aus drei Bauteilen. Der Neubauteil verbindet die beiden Altbauteile, welche sich am Lindenauer Markt und der Odermannstraße befinden. Im Erdgeschoss finden sich Einzelhandelsflächen und in den Obergeschossen moderne und effiziente Büroflächen. Eine hauseigene Tiefgarage steht zur Verfügung. Es stehen drei Büroflächen zur Vermietung. Im 1. OG von ca. 178 m², im 2. OG ca. 163 m² und im 3. OG ca. 169 m². Die Mietflächen sind mit Bodentanks ausgestattet.
Verfügbare Fläche
Lage und Verkehrsanbindung
Der Stadtteil Lindenau befindet sich im Westen der sächsischen Metropole Leipzig. Das Viertel besticht durch eine Vielzahl historischer Industriebauten und seine ansprechende Lage am Palmengarten und dem Elsterflutbecken. Der Standort erfuhr durch die Eröffnung des Kaufland im Jahr 2012, als auch durch eine Vielzahl verschiedener Einzelhändler eine Aufwertung. Zudem weißt der Lindenauer Markt eine günstige verkehrstechnische Anbindung sowohl an das Netz des ÖPNV als auch durch die Nähe zur B 87 auf. Letztere verbindet den Stadtteil mit der Autobahn A 9.
- Flughafen, Leipzig/Halle, Fahrzeit: 25 min
- Bundesautobahn, A 9, Fahrzeit: 16 min
- Bundesautobahn, A 14, Fahrzeit: 20 min
- Bundesstraße, B 87, Fahrzeit: 1 min
- Bundesstraße, B 181, Fahrzeit: 5 min
- Bus, Lindenauer Markt Linien 74,76,130,131, Gehzeit: 1 min
Ihr Kontakt

Kay Förster
Ihr Kontakt








