Büros
ID B1515Provisionsfrei
Büroimmobilie - Leipzig, Zentrum - B1515
Zentrum, 04109, Leipzig, Sachsen
12,50 € / m²
- Fläche216 - 1.921 m²
- VerfügbarkeitAuf Anfrage
- Objekt
- Ausstattung
- Lage und Verkehrsanbindung
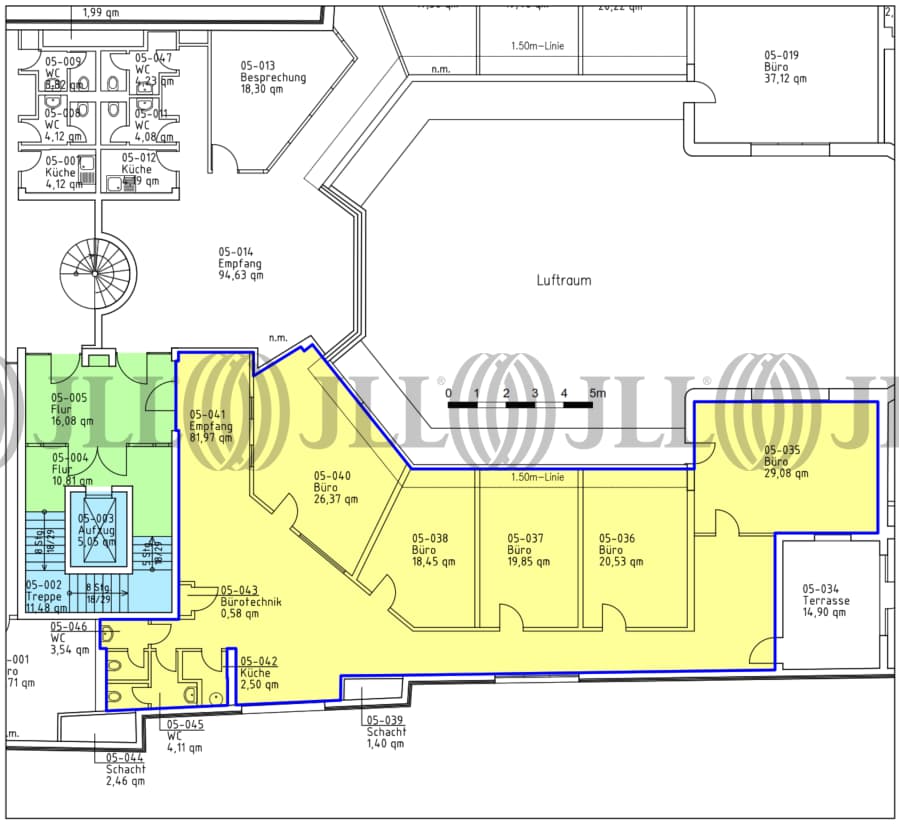
- Grundrisse
- Exposé herunterladen
- Ihr Kontakt
- Anfrage senden
Objekt
Im Herzen Leipzigs, in einem Gebäude von historischer Bedeutung, bietet sich eine einzigartige Gelegenheit zur Anmietung moderner Büroflächen. Der "Specks Hof", dessen Geschichte bis ins 15. Jahrhundert zurückreicht, beherbergt die älteste Einkaufspassage Leipzigs und vereint Tradition mit modernem Komfort.
Die zur Vermietung stehenden Büroflächen verteilen sich über mehrere Etagen des Gebäudes und bieten verschiedene Optionen für potenzielle Mieter:
Im 1. bis 3. Obergeschoss stehen modern ausgestattete und klimatisierte Flächen zur Verfügung. Diese Etagen zeichnen sich durch eine offene Struktur aus, die sich ideal für Open-Space-Konzepte eignet. Die Flächen gruppieren sich um den historischen Innenhof, was für eine einzigartige Atmosphäre sorgt. Das 5. Obergeschoss bietet zusätzlich zwei attraktive Büroflächen, die sich durch ihre besondere Lage und Ausstattung auszeichnen.
Die zur Vermietung stehenden Büroflächen verteilen sich über mehrere Etagen des Gebäudes und bieten verschiedene Optionen für potenzielle Mieter:
Im 1. bis 3. Obergeschoss stehen modern ausgestattete und klimatisierte Flächen zur Verfügung. Diese Etagen zeichnen sich durch eine offene Struktur aus, die sich ideal für Open-Space-Konzepte eignet. Die Flächen gruppieren sich um den historischen Innenhof, was für eine einzigartige Atmosphäre sorgt. Das 5. Obergeschoss bietet zusätzlich zwei attraktive Büroflächen, die sich durch ihre besondere Lage und Ausstattung auszeichnen.
Zertifizierungen
Energieausweis
Für diese Liegenschaft liegt ein Verbrauchsausweis vom 08.04.2024 vom Eigentümer/Vermieter vor. Die wesentlichen Energieträger der Liegenschaft sind Fernwärme, Strom. Der Endenergieverbrauch Strom beträgt 16.40 kWh/(m²*a). Der Endenergieverbrauch Wärme beträgt 59.70 kWh/(m²*a).Verfügbare Fläche
Lage und Verkehrsanbindung
Das architektonisch bedeutende Gebäudeensemble Specks Hof/ Hansa Haus ist in der Leipziger Innenstadt gelegen. Diese zeichnet sich durch eine kompakte City mit sehr attraktiven Handelsstrukturen und einem Mix aus aufwendig sanierten Handelshöfen, Passagen und stilvollen Neubauten aus. Eine breite Auswahl verschiedener Einkaufsmöglichkeiten und mannigfaltige gastronomische Einrichtungen charakterisieren den Standort. Die Immobilie ist nur ca. 3 Gehminuten vom Leipziger Markt entfernt. Hier befindet sich die unterirdische Haltestelle der S-Bahn, die seit Ende 2013 die Leipziger Innenstadt mit ihrem mitteldeutschen Umfeld verbindet. Halle/Saale, Zwickau, Dessau und Hoyerswerda sind nunmehr umstandslos zu erreichen. Dienstleister des täglichen Bedarfs befinden sich in der Nähe.
- Hauptbahnhof, Hauptbahnhof Leipzig, Gehzeit: 10 min
- S-Bahn, Markt - Linien S1,S2,S3,S4,S5,S5X,S6, Gehzeit: 3 min
- Bus, Markt - Linie 89, Gehzeit: 3 min
- Bundesautobahn, A 14, Fahrzeit: 15 min
- Bundesautobahn, A 38, Fahrzeit: 15 min
- Bundesstraße, B 2, Fahrzeit: 7 min
- Bundesstraße, B 87, Fahrzeit: 5 min
- Flughafen, Leipzig/Halle, Fahrzeit: 23 min
Ihr Kontakt

Kay Förster
Ihr Kontakt
Marktinformationen
Mietmarkt
Zentrum, Leipzig
siehe 51 passende MietobjekteErfahren Sie mehr
* Durchschnittspreis auf Grundlage historischer Transaktionen.








