Büros
ID B1493Provisionsfrei
Büroimmobilie - Berlin, Mitte - B1493
Mitte, 10117, Berlin, Berlin
36 € / m²
- Fläche292 m²
- VerfügbarkeitSofort
- Ausstattung
- Lage und Verkehrsanbindung
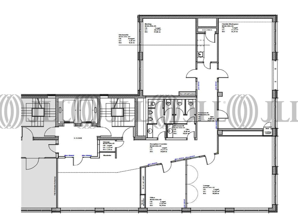
- Grundriss
- Exposé herunterladen
- Ihr Kontakt
- Anfrage senden
Verfügbare Fläche
Lage und Verkehrsanbindung
Ausgezeichnet durch die exklusive 1a-Lage befindet sich das Objekt an der renommierten Geschäftsadresse Friedrichstraße im Herzen Berlins. Der Standort ist hervorragend an das regionale und überregionale Verkehrsnetz der Stadt angebunden. Die Fernbahnhöfe und Flughäfen sind von hier aus schnell und bequem zu erreichen. Dienstleister des täglichen Bedarfs befinden sich in der Nähe.
- Flughafen, Berlin Brandenburg, Fahrzeit: 30 min
- Bundesautobahn, A 100, Fahrzeit: 18 min
- Bundesautobahn, A 113, Fahrzeit: 28 min
- Bus, Unter den Linden/ Friedrichstraße; Linien 100; 147; 200; TXL, Gehzeit: 6 min
- Hauptbahnhof, Berlin, Fahrzeit: 5 min
- S-Bahn, Friedrichstraße; Linien S3, S5, S7, S75, S9, Gehzeit: 3 min
- U-Bahn, Friedrichstraße; Linie U6, Gehzeit: 3 min
Ihr Kontakt

Tobias Rodewald
Ihr Kontakt
Marktinformationen
Mietmarkt
Mitte, Berlin
Gew. Ø-Miete
36 € / m²
siehe 168 passende MietobjekteErfahren Sie mehr* Durchschnittspreis auf Grundlage historischer Transaktionen.


