Büros
ID B1421Provisionsfrei
Aktualisiert
Büroimmobilie - Berlin, Schöneberg - B1421
Hedwig-Dohm-Straße 2, 4, 6, Sachsendamm 60
Schöneberg, 10829, Berlin, Berlin
28,35 € / m²
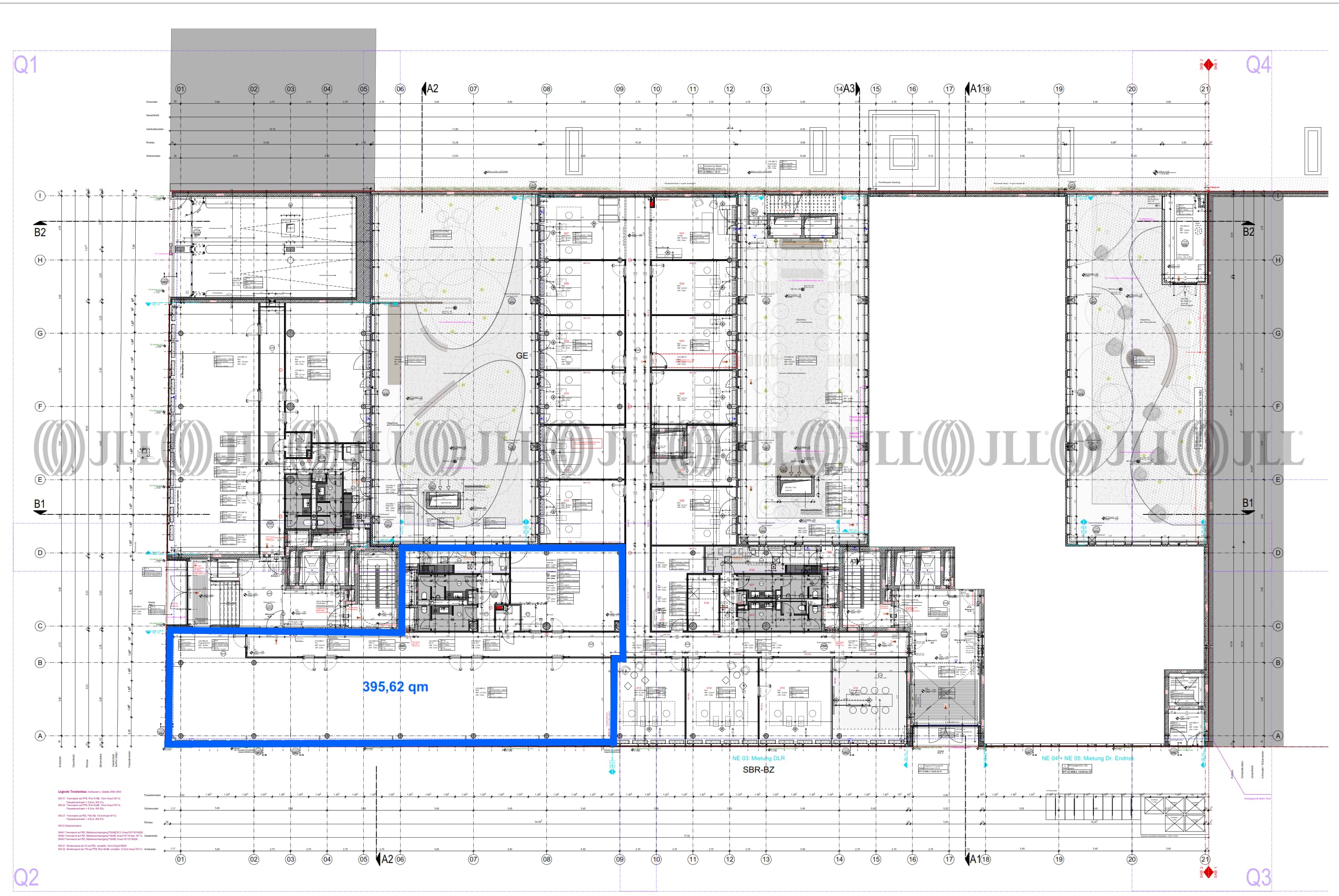
- Fläche396 m²
- VerfügbarkeitAuf Anfrage
- Objekt
- Ausstattung
- Lage und Verkehrsanbindung
- Grundriss
- Exposé herunterladen
- Ihr Kontakt
- Anfrage senden
Zertifizierungen
Energieausweis
Für diese Liegenschaft liegt ein Bedarfsausweis vom 06.12.2022 vom Eigentümer/Vermieter vor. Der wesentliche Energieträger der Liegenschaft ist Strom. Der Endenergiebedarf Strom beträgt 22.00 kWh/(m²*a). Der Endenergiebedarf Wärme beträgt 67.00 kWh/(m²*a).Verfügbare Fläche
Lage und Verkehrsanbindung
Das Neubauprojekt befindet sich in zentraler Lage direkt am Autobahnanschluss Kreuz Schöneberg. Über die Haupt- und Potsdamer Straße erreicht man in Kürze die Stadtzentren in Berlin-Mitte und Charlottenburg. Aufgrund der verkehrsgünstigen Lage ist der Flughafen schnell erreichbar.
- Flughafen, Berlin Brandenburg, Fahrzeit: 20 min
- Bundesautobahn, A 100, Fahrzeit: 5 min
- Bus, Sachsendamm/ Gotenstraße Buslinien 248, M46, Gehzeit: 3 min
- Hauptbahnhof, Berlin, Fahrzeit: 15 min
- S-Bahn, Südkreuz, Linien S1, S2, S25, S41, S42, Regional- und Fernverkehr, Gehzeit: 5 min
Ihr Kontakt

Tobias Rodewald
Ihr Kontakt
Marktinformationen
Mietmarkt
Schöneberg, Berlin
Gew. Ø-Miete
28,35 € / m²
siehe 29 passende MietobjekteErfahren Sie mehr* Durchschnittspreis auf Grundlage historischer Transaktionen.






