Büros
ID B1403Provisionsfrei
Büroimmobilie - Berlin, Lichterfelde - B1403
Lichterfelde, 12209, Berlin, Berlin
17 € - 22 € / m²
- Fläche614 - 28.881 m²
- Verfügbarkeit30 Monate ab Vertragsunterzeichnung
- Objekt
- Ausstattung
- Lage und Verkehrsanbindung
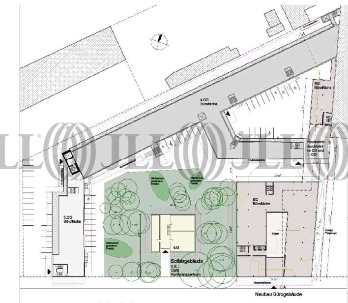
- Grundrisse
- Exposé herunterladen
- Ihr Kontakt
- Anfrage senden
Zertifizierungen
Energieausweis
Für diese Liegenschaft liegt ein Bedarfsausweis vom 2013-11-18 vom Eigentümer/Vermieter vor. Der wesentliche Energieträger der Liegenschaft ist Strom. Endenergiebedarf: 344.00000 kWh/(m²*a).Verfügbare Fläche
Lage und Verkehrsanbindung
Das Objekt liegt im Berliner Stadtteil Mariendorf. Der öffentliche Personennahverkehr ist innerhalb weniger Minuten zu Fuß erreichbar.
- S-Bahn, Lichterfelde Ost, Linien S2, S25, S26, Gehzeit: 2 min
- Bus, Amalienstraße, Linien 184, 284, Gehzeit: 1 min
- Bundesautobahn, A 100, Fahrzeit: 30 min
- Bundesautobahn, A 113, Fahrzeit: 25 min
- Flughafen, Berlin Brandenburg, Fahrzeit: 30 min
Ihr Kontakt

Gerald Dietzold
Ihr Kontakt











