Büros
ID B1327Büroimmobilie - Berlin, Friedrichshain - B1327
Friedrichshain, 10243, Berlin, Berlin
Provisionspflichtig: bei Anmietung 3 Netto-Monatsmieten zzgl. gesetzlicher Umsatzsteuer.** der Wert kann je nach Vertragslaufzeit variieren.
32 € / m²
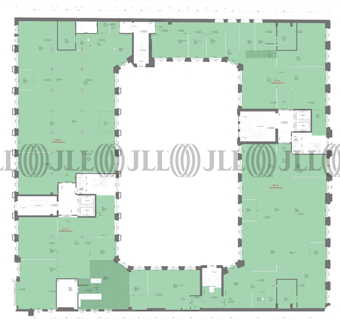
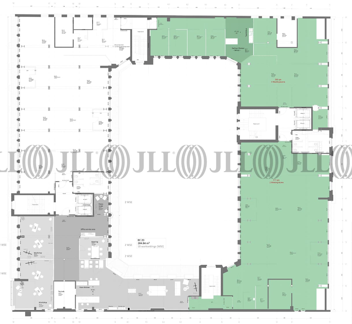
- Fläche369 - 2.385 m²
- VerfügbarkeitSofort
- Ausstattung
- Lage und Verkehrsanbindung
- Grundrisse
- Exposé herunterladen
- Ihr Kontakt
- Anfrage senden
Verfügbare Fläche
Lage und Verkehrsanbindung
Das Objekt befindet sich im Bezirk Friedrichshain, welcher sich durch seine optimale Verkehrsanbindung auszeichnet. Zahlreiche Verpflegungsmöglichkeiten sind fußläufig innerhalb weniger Minuten zu erreichen.
- Hauptbahnhof, Berlin, Fahrzeit: 15 min
- Bahnhof, Ostbahnhof; RE, ICE, Gehzeit: 2 min
- S-Bahn, Ostbahnhof; Linien S3, S5, S7, S75, Gehzeit: 2 min
- Bus, Andreasstr./ Lange Str.; Linie 142, Gehzeit: 5 min
- Bundesautobahn, A 100, Fahrzeit: 30 min
- Bundesautobahn, A 111, Fahrzeit: 30 min
Ihr Kontakt

Tobias Rodewald
Ihr Kontakt
Marktinformationen
Mietmarkt
Friedrichshain, Berlin
siehe 51 passende MietobjekteErfahren Sie mehr
* Durchschnittspreis auf Grundlage historischer Transaktionen.


