Büros
ID B1259Provisionsfrei
Aktualisiert
Büroimmobilie - Berlin, Oberschöneweide - B1259
Oberschöneweide, 12459, Berlin, Berlin
17 € / m²
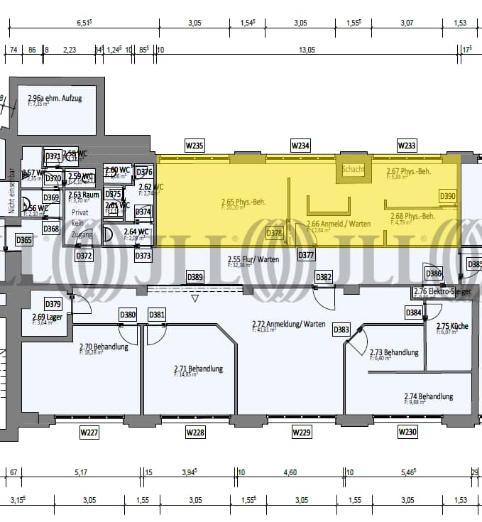
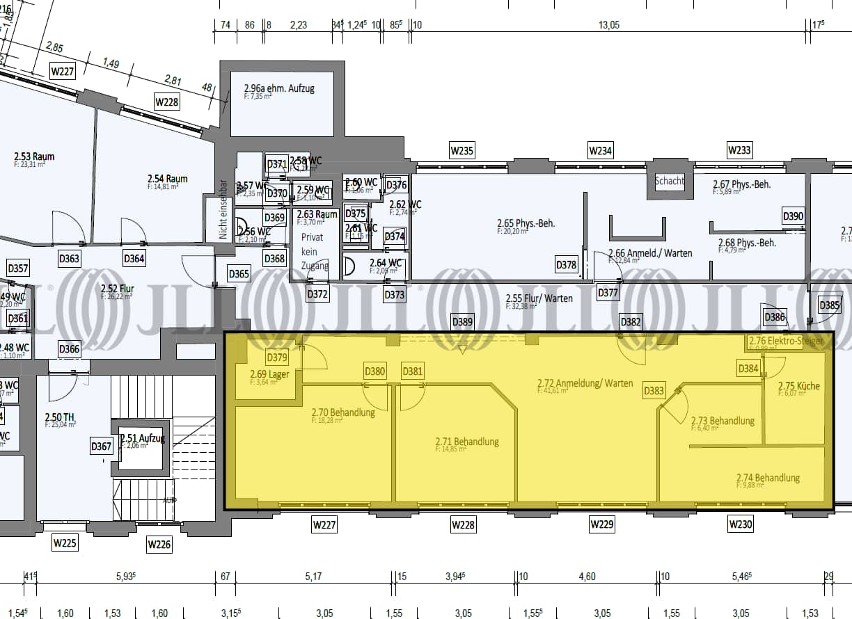
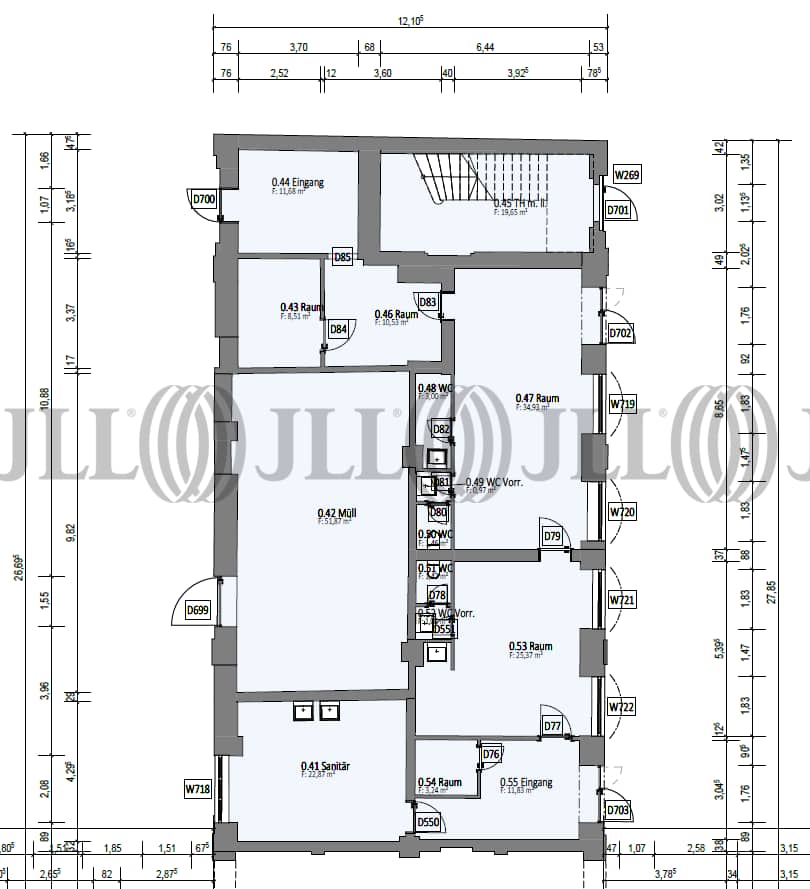
- Fläche60 - 1.038 m²
- VerfügbarkeitSofort
- Ausstattung
- Lage und Verkehrsanbindung
- Grundrisse
- Exposé herunterladen
- Ihr Kontakt
- Anfrage senden
Verfügbare Fläche
Lage und Verkehrsanbindung
Das Gewerbeobjekt befindet sich in Berlin-Oberschöneweide, nahe der Spree. Neben szenetypischen Bars und Restaurants gibt es auch diverse Einkaufsmöglichkeiten in der nahen Umgebung. Dienstleister des täglichen Bedarfs befinden sich in der Nähe.
- Flughafen, Berlin Brandenburg, Fahrzeit: 20 min
- Bundesautobahn, A 100, Fahrzeit: 15 min
- Straßenbahn/Tram, Wilhelminenhofstr./Edisonstr.; Linien 27, 60, 61, 62, 67, Gehzeit: 2 min
- Hauptbahnhof, Berlin, Fahrzeit: 30 min
Ihr Kontakt

Chiara Costa Jacinto
Ihr Kontakt






