Büros
ID B1253Provisionsfrei
Büroimmobilie - Berlin, Charlottenburg - B1253
Charlottenburg, 10627, Berlin, Berlin
22 € / m²
- Fläche609 m²
- VerfügbarkeitSofort
- Objekt
- Ausstattung
- Lage und Verkehrsanbindung
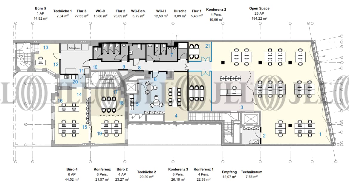
- Grundriss
- Exposé herunterladen
- Ihr Kontakt
- Anfrage senden
Zertifizierungen
Energieausweis
Für diese Liegenschaft liegt ein Verbrauchsausweis vom 12.06.2018 vom Eigentümer/Vermieter vor. Die wesentlichen Energieträger der Liegenschaft sind Öl, Strom. Der Endenergieverbrauch Strom beträgt 59,00 kWh/(m²*a). Der Endenergieverbrauch Wärme beträgt 0,00 kWh/(m²*a).Verfügbare Fläche
Lage und Verkehrsanbindung
Das Objekt befindet sich in zentraler Lage im Bezirk Charlottenburg in der bekannten Einkaufs- und Geschäftsstraße Wilmersdorfer Straße. Dieser Standort bietet eine hervorragende Infrastruktur und eine exzellente Verkehrsanbindung. Kaufhäuser, Einzelhandelsgeschäfte und Restaurants liegen in direkter Nachbarschaft. Dienstleister des täglichen Bedarfs befinden sich in der Nähe.
- Hauptbahnhof, Berlin, Fahrzeit: 15 min
- U-Bahn, Wilmersdorfer Straße; Linie U7, Gehzeit: 1 min
- Bus, Wilmersdorfer Straße / Kantstraße; Linien 309, M49, X34, Gehzeit: 2 min
- Bundesautobahn, A 100, Fahrzeit: 5 min
- Flughafen, Berlin Brandenburg, Fahrzeit: 25 min
Ihr Kontakt

Alexandra Teich
Ihr Kontakt
Marktinformationen
Mietmarkt
Charlottenburg, Berlin
Gew. Ø-Miete
22 € / m²
siehe 101 passende MietobjekteErfahren Sie mehr* Durchschnittspreis auf Grundlage historischer Transaktionen.





