Büros
ID B1233Provisionsfrei
Büroimmobilie - Berlin, Charlottenburg - B1233
Charlottenburg, 10719, Berlin, Berlin
21 € / m²
- Fläche380 - 613 m²
- VerfügbarkeitSofort
- Objekt
- Ausstattung
- Lage und Verkehrsanbindung
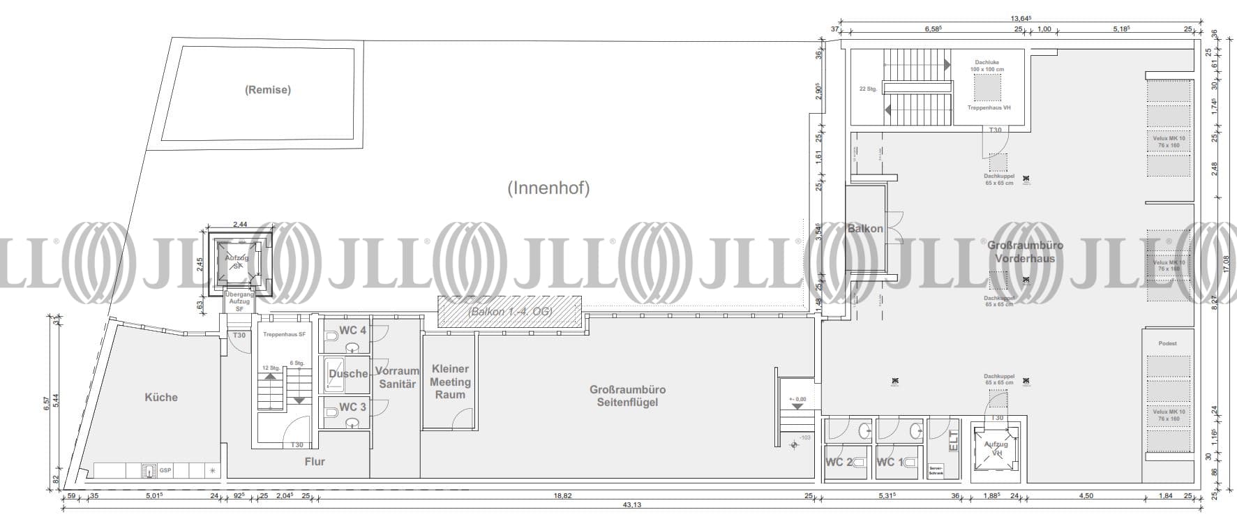
- Grundrisse
- Exposé herunterladen
- Ihr Kontakt
- Anfrage senden
Objekt
In exponierter Ecklage präsentiert sich dieses repräsentative sechsgeschossige Wohn- und Geschäftshaus, das aus einem Vorderhaus mit angrenzendem Seitenflügel besteht und im späten 19. Jahrhundert erbaut wurde. Als Einzeldenkmal steht das Gebäude mit seiner prachtvollen Stuckfassade unter Denkmalschutz. Der Zugang zu den vier Obergeschossen und dem Dachgeschoss des Vorderhauses erfolgt über ein Haupttreppenhaus sowie einen innenliegenden Aufzug. Die Stockwerke im Seitenflügel sind über ein weiteres Treppenhaus erreichbar, das durch einen gläsernen Aufzug ergänzt wird, welcher dem historischen Charakter eine moderne Note verleiht. Hinter der historischen Fassade führen die einladenden Eingangsbereiche zu flexibel gestaltbaren Büroflächen, die dank großzügiger Fensterfronten eine helle und angenehme Arbeitsatmosphäre bieten. Eine zeitgemäße technische Ausstattung erfüllt alle Ansprüche an einen komfortablen sowie effizienten Arbeitsplatz. Diese architektonische Mischung aus historischem Charme und zeitgemäßen Annehmlichkeiten macht das Gebäude sowohl einzigartig als auch funktional.
Zertifizierungen
Energieausweis
Für diese Liegenschaft liegt ein Bedarfsausweis vom 2019-02-23 vom Eigentümer/Vermieter vor. Die wesentlichen Energieträger der Liegenschaft sind Nahwärme,Erdgas leicht,Strom,Fernwärme. Endenergiebedarf: 254 kWh/(m²*a).Verfügbare Fläche
Lage und Verkehrsanbindung
Der Standort befindet sich im pulsierenden Herzen der Berliner City West, in unmittelbarer Nachbarschaft zum weltbekannten Boulevard. Diese erstklassige Adresse ist geprägt von einer dynamischen Mischung aus internationalen Flagship-Stores, gehobener Gastronomie und exklusiven Hotels, die ein hochfrequentiertes und repräsentatives Umfeld schaffen. Die Anbindung an den öffentlichen Nahverkehr ist exzellent; ein wichtiger Verkehrsknotenpunkt mit S- und U-Bahn-Anschluss ist nur wenige Gehminuten entfernt und gewährleistet eine schnelle Erreichbarkeit aus allen Teilen der Stadt sowie vom Flughafen. Das vielfältige Angebot an Dienstleistungen, Kultureinrichtungen und Einkaufsmöglichkeiten unterstreicht die herausragende Qualität dieser zentralen Lage.
- Hauptbahnhof, Berlin, Fahrzeit: 7 min
- U-Bahn, Kurfürstendamm, Linie U1, U9, Gehzeit: 3 min
- Bus, Kurfürstendamm, Buslinien 109, 110, 204, 249, M19, M29, Gehzeit: 3 min
- Bundesautobahn, A 100, Fahrzeit: 10 min
- Flughafen, Berlin Brandenburg, Fahrzeit: 30 min
Ihr Kontakt

Chiara Costa Jacinto
Ihr Kontakt
Marktinformationen
Mietmarkt
Charlottenburg, Berlin
Gew. Ø-Miete
21 € / m²
siehe 101 passende MietobjekteErfahren Sie mehr* Durchschnittspreis auf Grundlage historischer Transaktionen.







