Büros
ID B1150Provisionsfrei
Aktualisiert
Büroimmobilie - Berlin, Tempelhof - B1150
Tempelhof, 12099, Berlin, Berlin
18 € / m²
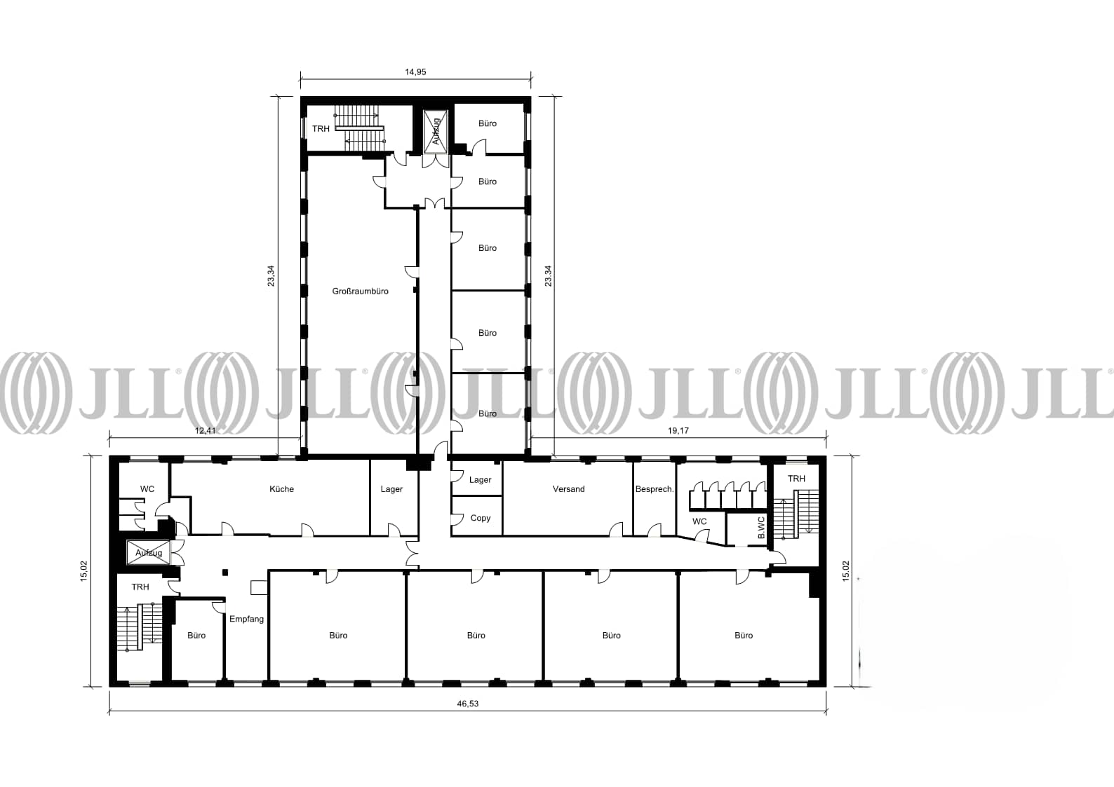
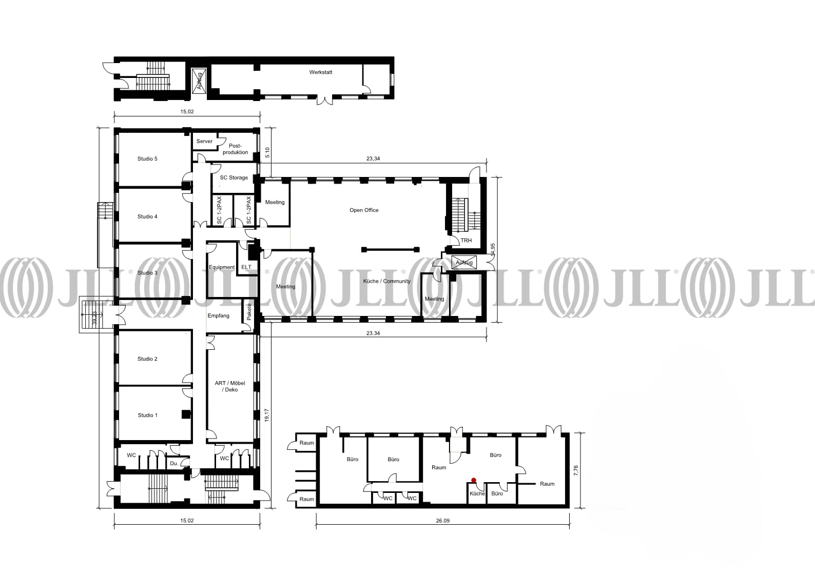
- Fläche277 - 3.111 m²
- VerfügbarkeitSofort
- Objekt
- Ausstattung
- Lage und Verkehrsanbindung
- Grundrisse
- Exposé herunterladen
- Ihr Kontakt
- Anfrage senden
Zertifizierungen
Energieausweis
Für diese Liegenschaft liegt ein Bedarfsausweis vom 05.05.2021 vom Eigentümer/Vermieter vor. Der wesentliche Energieträger der Liegenschaft ist Erdgas schwer. Der Endenergiebedarf Strom beträgt 24.6 kWh/(m²*a). Der Endenergiebedarf Wärme beträgt 138.7 kWh/(m²*a).Verfügbare Fläche
Lage und Verkehrsanbindung
Das Objekt befindet sich im Bezirk Tempelhof ganz in der Nähe des Tempelhofer Feldes und ist sowohl an die Berliner Stadtautobahn A 100, als auch an den ÖPNV sehr gut angebunden.
- Flughafen, Berlin Brandenburg, Fahrzeit: 20 min
- Bundesautobahn, A 100, Fahrzeit: 5 min
- Bus, U-Bahnhof Tempelhof/ Ringbahnstr Buslinien 140, 184, Gehzeit: 5 min
- Hauptbahnhof, Berlin, Fahrzeit: 20 min
- S-Bahn, Tempelhof, Linien S41, S42, Gehzeit: 5 min
Ihr Kontakt

Alexandra Teich
Ihr Kontakt
Marktinformationen
Mietmarkt
Tempelhof, Berlin
siehe 3 passende MietobjekteErfahren Sie mehr
* Durchschnittspreis auf Grundlage historischer Transaktionen.













