Büros
ID B1139Provisionsfrei
Aktualisiert
Büroimmobilie - Berlin, Friedrichshain - B1139
Friedrichshain, 10245, Berlin, Berlin
25 € / m²
- Fläche708 - 5.972 m²
- VerfügbarkeitSofort
- Objekt
- Ausstattung
- Lage und Verkehrsanbindung
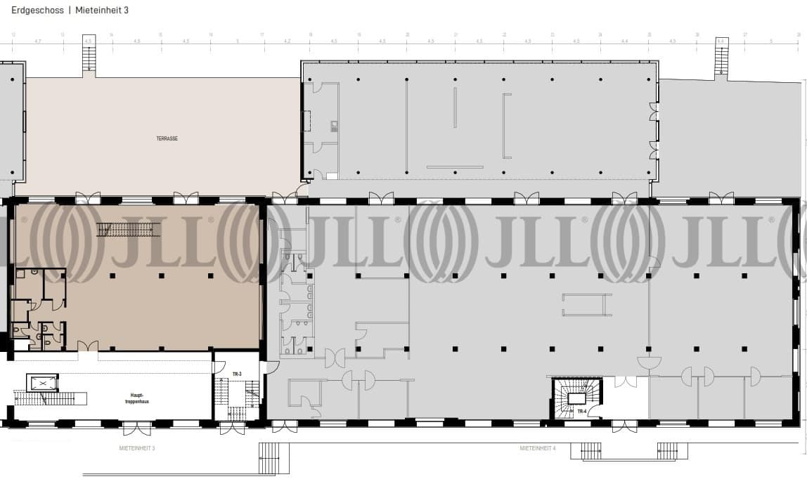
- Grundrisse
- Exposé herunterladen
- Ihr Kontakt
- Anfrage senden
Zertifizierungen
Energieausweis
BREEAM: ExcellentFür diese Liegenschaft liegt ein Bedarfsausweis vom 18.11.2013 vom Eigentümer/Vermieter vor. Die wesentlichen Energieträger der Liegenschaft sind Fernwärme, Nahwärme, Strom. Endenergiebedarf: 216.00000 kWh/(m²*a)
Verfügbare Fläche
Lage und Verkehrsanbindung
Direkt an der Spree gelegen ist Labels Berlin zu einem außergewöhnlichen präsentationsobjekt internationaler Marken geworden. Dieser Standort ist Teil des ca. 80 ha großen Geländes des Berliner Osthafens welcher sich zwischen der Stralauer Allee und der Spree befindet.
- Flughafen, Berlin Brandenburg, Fahrzeit: 30 min
- Bundesautobahn, A 100, Fahrzeit: 15 min
- Bus, Osthafen; Linie 347, Gehzeit: 4 min
- S-Bahn, Treptower Park; Linien S41, S42, S8, S85, S9, Gehzeit: 15 min
- Hauptbahnhof, Hauptbahnhof, Fahrzeit: 25 min
Ihr Kontakt

Tobias Rodewald
Ihr Kontakt
Marktinformationen
Mietmarkt
Friedrichshain, Berlin
siehe 45 passende MietobjekteErfahren Sie mehr
* Durchschnittspreis auf Grundlage historischer Transaktionen.





















