Büros
ID B1135Provisionsfrei
Büroimmobilie - Schönefeld - B1135
12529, Schönefeld, Brandenburg
12 € / m²
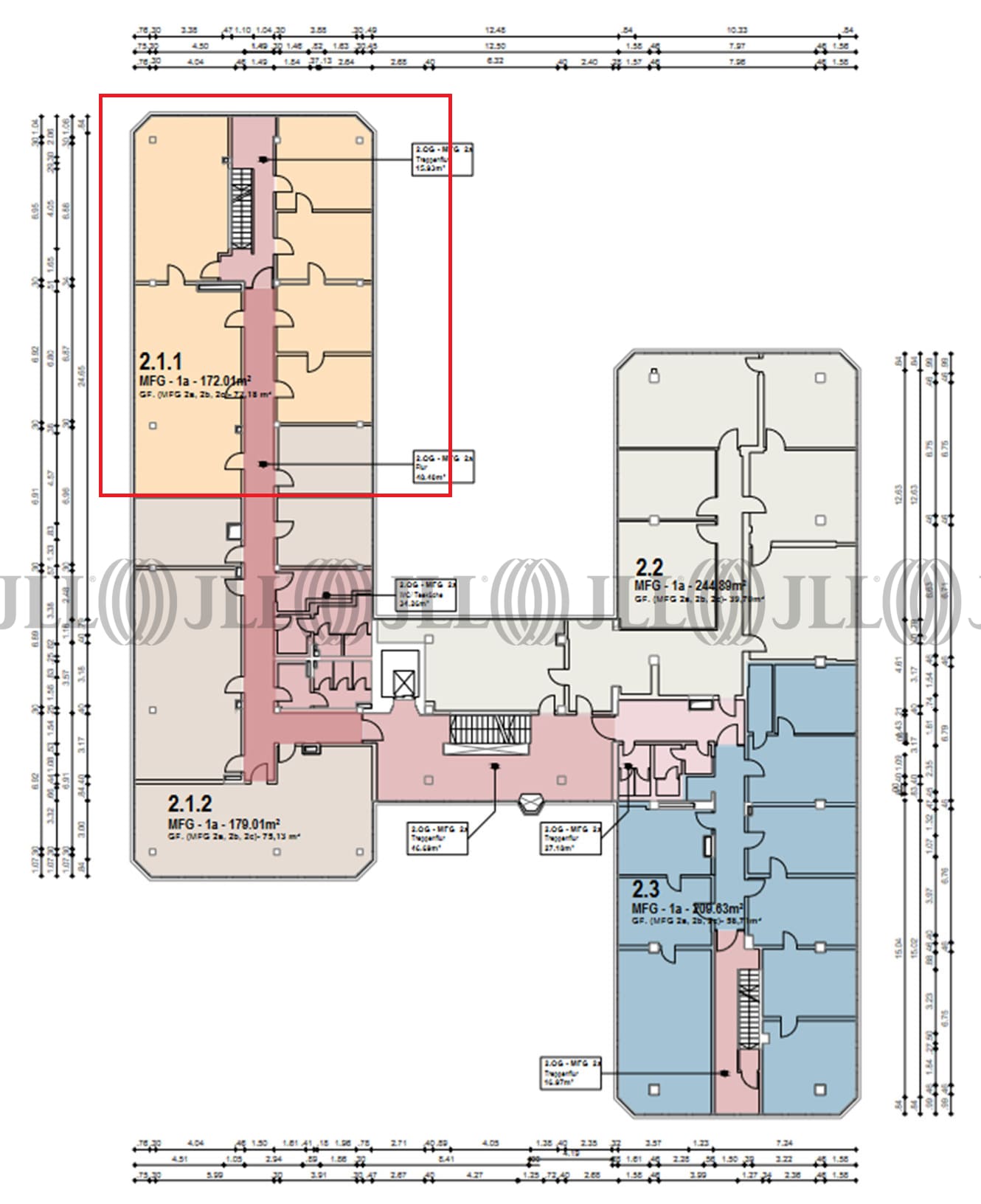
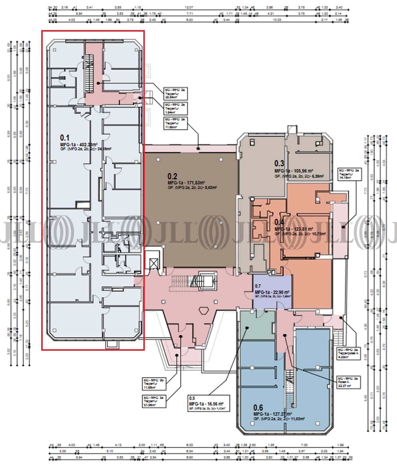
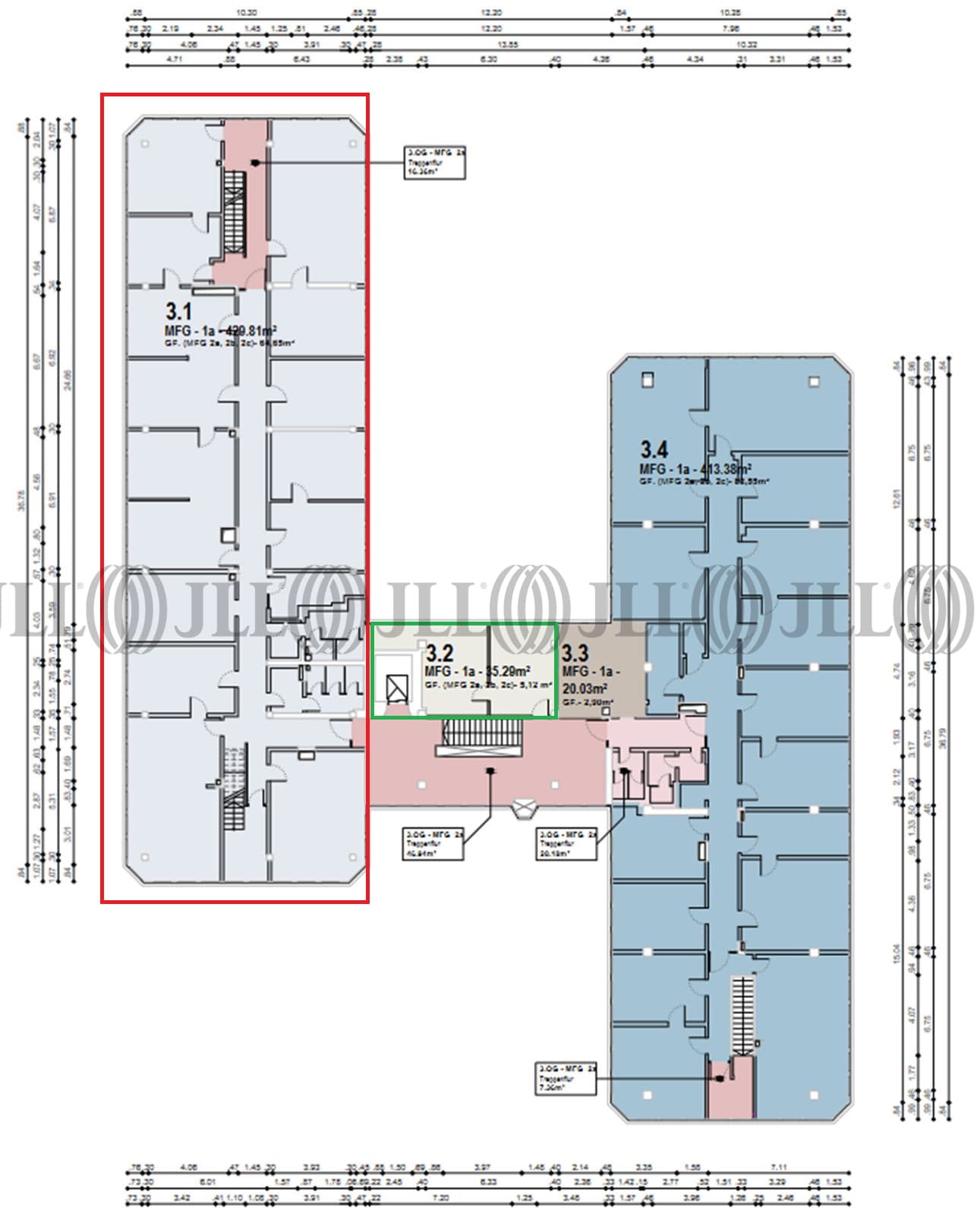
- Fläche244 - 1.698 m²
- VerfügbarkeitAuf Anfrage
- Objekt
- Ausstattung
- Lage und Verkehrsanbindung
- Grundrisse
- Exposé herunterladen
- Ihr Kontakt
- Anfrage senden
Zertifizierungen
Energieausweis
Für diese Liegenschaft liegt ein Bedarfsausweis vom 20.03.2014 vom Eigentümer/Vermieter vor. Die wesentlichen Energieträger der Liegenschaft sind KWK, Strom. Endenergiebedarf: 291,2 kWh/(m²*a)Verfügbare Fläche
Lage und Verkehrsanbindung
Das Objekt befindet sich in unmittelbarer Nähe des Flughafens Berlin-Schönefeld und verfügt über einen hervorragenden Anschluß an das öffentliche Nahverkehrsmittelsystem.Der Berliner Autobahnring A 10 ist über die B 96a und die A 113 in ca. 10 Autominuten erreichbar.
- Hauptbahnhof, Berlin, Fahrzeit: 35 min
- S-Bahn, Flughafen Schönefeld, Linien S8, S9, S45, S47, Gehzeit: 5 min
- Bundesautobahn, A 113, Fahrzeit: 3 min
- Flughafen, Berlin Brandenburg, Fahrzeit: 2 min
Ihr Kontakt

Alexandra Teich
Ihr Kontakt










