Büros
ID B1131Provisionsfrei
Büroimmobilie - Berlin, Reinickendorf - B1131
Reinickendorf, 13409, Berlin, Berlin
19 € / m²
- Fläche140 - 344 m²
- VerfügbarkeitSofort
- Objekt
- Ausstattung
- Lage und Verkehrsanbindung
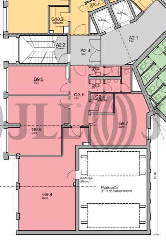
- Grundrisse
- Exposé herunterladen
- Ihr Kontakt
- Anfrage senden
Zertifizierungen
Energieausweis
Für diese Liegenschaft liegt ein Verbrauchsausweis vom 2015-04-30 vom Eigentümer/Vermieter vor. Der wesentliche Energieträger der Liegenschaft ist Öl. Der Endenergieverbrauch Strom beträgt 17.90 kWh/(m²*a). Der Endenergieverbrauch Wärme beträgt 171.60 kWh/(m²*a).Verfügbare Fläche
Lage und Verkehrsanbindung
Das Objekt liegt in einer herausragenden Ecklage im Berliner Stadtbezirk Reinickendorf, direkt an der Kreuzung von Reginhardstraße und Ritterlandweg. Diese erstklassige Position bietet dank der zahlreichen Dienstleister des täglichen Bedarfs in unmittelbarer Umgebung eine hervorragende Infrastruktur. Die Verbindung von zentraler Lage und lokaler Versorgung macht die Immobilie besonders attraktiv sowohl für Geschäftsansiedlungen als auch für den Publikumsverkehr.
- Flughafen, Berlin, Fahrzeit: 45 min
- Bundesautobahn, A 100, Fahrzeit: 10 min
- Bundesautobahn, A 113, Fahrzeit: 31 min
- Bus, Residenzstraße, Linie125, Gehzeit: 2 min
- U-Bahn, Osloer Straße, Linien U8, U9, Gehzeit: 5 min
- Hauptbahnhof, Berlin, Fahrzeit: 15 min
Ihr Kontakt

Alexandra Teich
Ihr Kontakt
Marktinformationen
Mietmarkt
Reinickendorf, Berlin
siehe 0 passende MietobjekteErfahren Sie mehr
* Durchschnittspreis auf Grundlage historischer Transaktionen.









