Büros
ID B1081Provisionsfrei
Aktualisiert
Büroimmobilie - Berlin, Mitte - B1081
Mitte, 10117, Berlin, Berlin
26,50 € - 28 € / m²
- Fläche330 - 4.139 m²
- VerfügbarkeitSofort
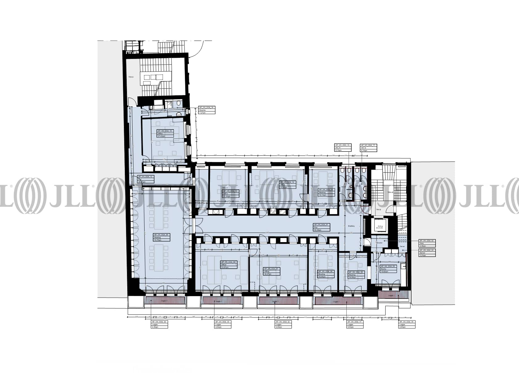
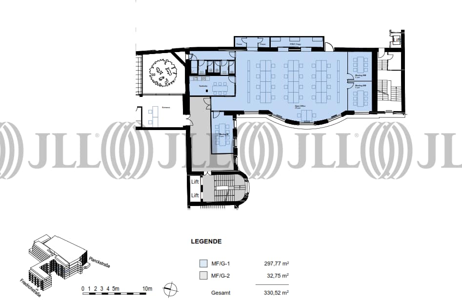
- Objekt
- Ausstattung
- Lage und Verkehrsanbindung
- Grundrisse
- Exposé herunterladen
- Ihr Kontakt
- Anfrage senden
Objekt
Der Admiralspalast ist ein traditionsreicher Veranstaltungsort und zählt zu den wenigen erhaltenen großen Vergnügungsstätten vom Anfang des 20. Jahrhunderts in Berlin. Die Büroflächen liegen innerhalb des Ensembles, das sich grob in zwei Gebäude gliedert - den Altbau an der Friedrichstraße, der unter Denkmalschutz steht, und den Neubau. Beide Gebäudeteile sind dabei komplett vom Theaterbetrieb entkoppelt.
Verfügbare Fläche
Lage und Verkehrsanbindung
Das Objekt befindet sich im Berliner Stadtteil Mitte. Die Nachbarschaft zeichnet sich durch zahlreiche Einkaufsmöglichkeiten sowie gastronomische Einrichtungen entlang der Spree aus. In der näheren Umgebung befinden sich u. a. der Tiergarten, das Brandenburger Tor, das Reichstagsgebäude aber auch die Oranienburger Straße mit ihrem pulsierenden Leben.
- Flughafen, Berlin Brandenburg, Fahrzeit: 35 min
- Bundesautobahn, A 100, Fahrzeit: 25 min
- Bus, S & U-Bahnhof Friedrichstraße; Linie 147, Gehzeit: 2 min
- S-Bahn, Friedrichstraße; Linien S5, S7, S9, S75, Gehzeit: 2 min
- U-Bahn, Friedrichstraße; Linie U6, Gehzeit: 2 min
- Hauptbahnhof, Berlin, Fahrzeit: 5 min
Ihr Kontakt

Alexandra Teich
Ihr Kontakt
Marktinformationen
Mietmarkt
Mitte, Berlin
Gew. Ø-Miete
26,50 € - 28 € / m²
siehe 155 passende MietobjekteErfahren Sie mehr* Durchschnittspreis auf Grundlage historischer Transaktionen.















