Büros
ID B1042Provisionsfrei
Büroimmobilie - Berlin, Mitte - B1042
Mitte, 10178, Berlin, Berlin
36 € / m²
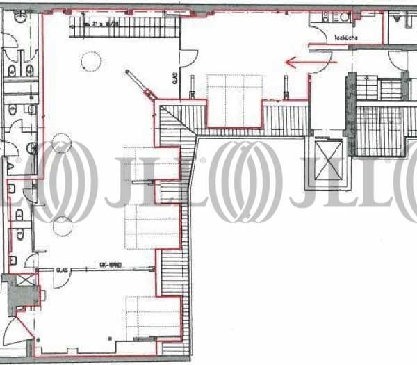
- Fläche341 m²
- Verfügbarkeit01.08.2026
- Objekt
- Ausstattung
- Lage und Verkehrsanbindung
- Grundrisse
- Exposé herunterladen
- Ihr Kontakt
- Anfrage senden
Objekt
Das komplett sanierte Altbaugebäude wurde im Jahre 1911 errichtet, entworfen von dem renommierten Berliner Architekten Kurt Berndt - u. a. bekannt durch seine Entwürfe der Hackeschen Höfe, des Metropolpalastes, des Zollernhofes sowie des Römischen Hofes.
Verfügbare Fläche
Lage und Verkehrsanbindung
Das Objekt befindet sich in dem Berliner Stadtteil Mitte, in unmittelbarer Nähe der Hackeschen Höfe. Unter den Linden und die Museumsinsel sind fußläufig in wenigen Minuten zu erreichen. Geschäfte für den täglichen Bedarf sowie zahlreiche gastronomische und kulturelle Einrichtungen befinden sich in direkter Nachbarschaft.
- Hauptbahnhof, Berlin, Fahrzeit: 12 min
- U-Bahn, Weinmeisterstraße, Linie U8, Gehzeit: 1 min
- Bundesautobahn, A 100, Fahrzeit: 10 min
- Flughafen, Berlin Brandenburg, Fahrzeit: 35 min
Ihr Kontakt

Chiara Costa Jacinto
Ihr Kontakt
Marktinformationen
Mietmarkt
Mitte, Berlin
Gew. Ø-Miete
36 € / m²
siehe 177 passende MietobjekteErfahren Sie mehr* Durchschnittspreis auf Grundlage historischer Transaktionen.








