Büros
ID B1039Provisionsfrei
Büroimmobilie - Berlin, Wilmersdorf - B1039
Wilmersdorf, 10789, Berlin, Berlin
25 € - 28 € / m²
- Fläche399 - 4.169 m²
- VerfügbarkeitI quartal 2027
- Objekt
- Ausstattung
- Lage und Verkehrsanbindung
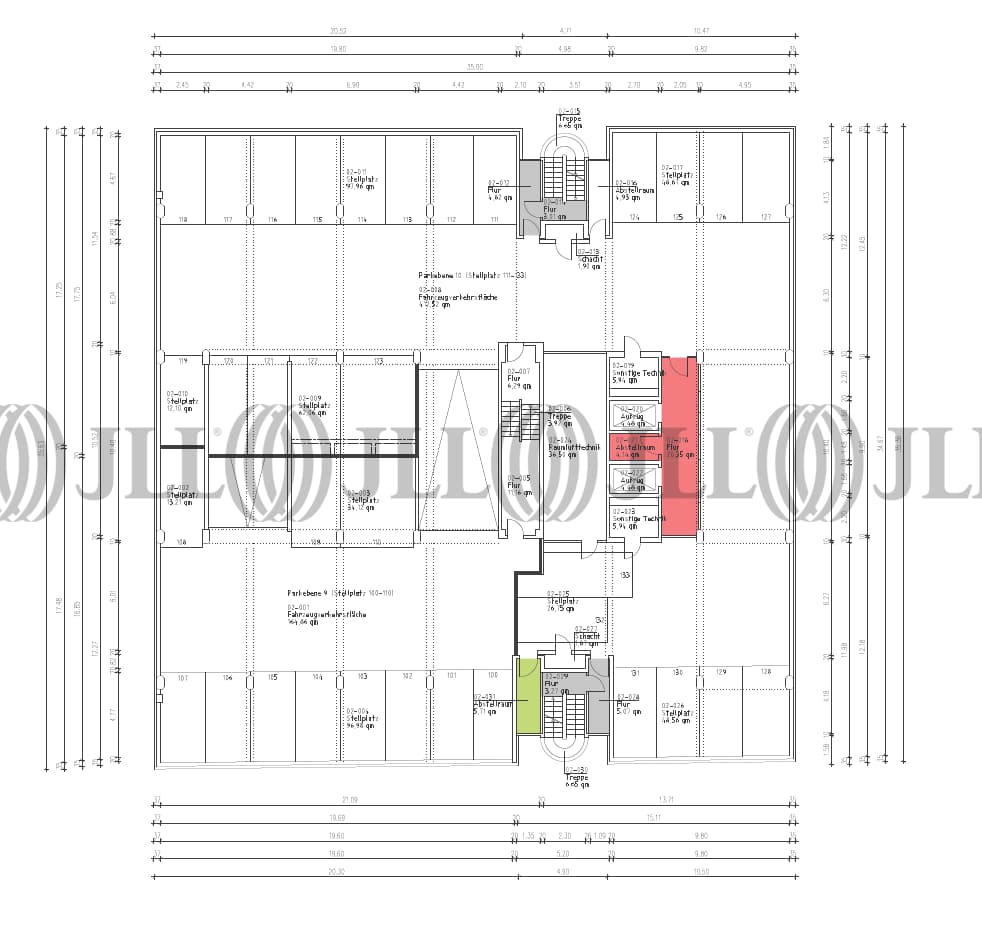
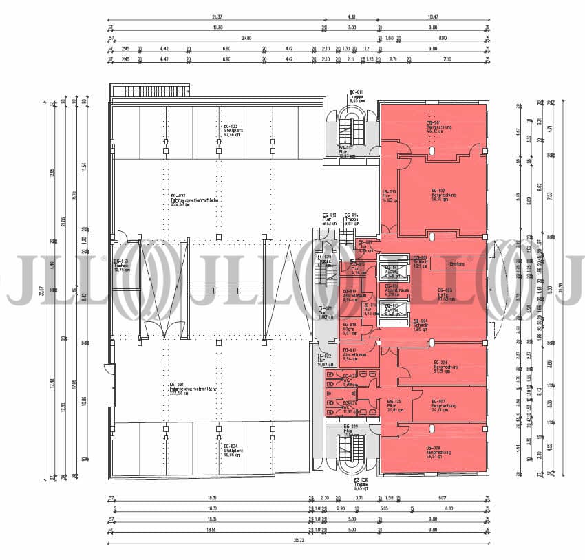
- Grundrisse
- Exposé herunterladen
- Ihr Kontakt
- Anfrage senden
Zertifizierungen
Energieausweis
Für diese Liegenschaft liegt ein Verbrauchsausweis vom 28.04.2014 vom Eigentümer/Vermieter vor. Der wesentliche Energieträger der Liegenschaft ist Fernwärme. Der Endenergieverbrauch Strom beträgt 5.60 kWh/(m²*a). Der Endenergieverbrauch Wärme beträgt 117.40 kWh/(m²*a).Verfügbare Fläche
Lage und Verkehrsanbindung
Das Objekt beeindruckt durch seine hervorragende zentrale Lage im begehrten Bezirk Wilmersdorf, die sowohl mit dem Auto als auch mit öffentlichen Verkehrsmitteln optimal erreichbar ist. In unmittelbarer Nähe erstreckt sich der renommierte Kurfürstendamm, ein pulsierender Boulevard voller exklusiver Einkaufsmöglichkeiten, Restaurants und kultureller Angebote, der zum Verweilen einlädt. Die gleichnamige U-Bahnstation Kurfürstendamm ist lediglich fünf Gehminuten entfernt und verbindet Sie schnell und bequem mit den restlichen Teilen der Stadt. Darüber hinaus sind zahlreiche Dienstleister des täglichen Bedarfs, wie Supermärkte, Apotheken und Cafés, ebenfalls in der direkten Umgebung angesiedelt und tragen zur Attraktivität der Lage bei. Diese Vorzüge machen das Objekt zu einem idealen Standort für Unternehmen und Investoren, die Wert auf eine erstklassige Anbindung und eine lebendige Nachbarschaft legen.
- Flughafen, Berlin Brandenburg, Fahrzeit: 45 min
- Bundesautobahn, A 100, Fahrzeit: 10 min
- Bus, Bushaltestelle Europa-Center Buslinien M19, M29, M46, Gehzeit: 5 min
- U-Bahn, Kurfürstendamm; Linien U1, U9, Gehzeit: 5 min
- Hauptbahnhof, Berlin, Fahrzeit: 12 min
Ihr Kontakt

Gerald Dietzold
Ihr Kontakt
Marktinformationen
Mietmarkt
Wilmersdorf, Berlin
siehe 0 passende MietobjekteErfahren Sie mehr
* Durchschnittspreis auf Grundlage historischer Transaktionen.









