Büros
ID B1011Provisionsfrei
Büroimmobilie - Berlin, Reinickendorf - B1011
Reinickendorf, 13403, Berlin, Berlin
12,50 € / m²
- Fläche680 - 1.077 m²
- VerfügbarkeitSofort
- Objekt
- Ausstattung
- Lage und Verkehrsanbindung
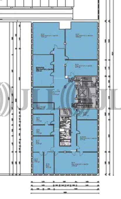
- Grundrisse
- Exposé herunterladen
- Ihr Kontakt
- Anfrage senden
Zertifizierungen
Energieausweis
Für diese Liegenschaft liegt ein Verbrauchsausweis vom 28.03.2017 vom Eigentümer/Vermieter vor. Der wesentliche Energieträger der Liegenschaft ist Öl. Der Endenergieverbrauch Strom beträgt 163,00 kWh/(m²*a). Der Endenergieverbrauch Wärme beträgt 0,00 kWh/(m²*a).Verfügbare Fläche
Lage und Verkehrsanbindung
Das Objekt befindet sich im Berliner Bezirk Reinickendorf. Einkaufsmöglichkeiten und gastronomische Einrichtungen befinden sich in der Nachbarschaft.
- Hauptbahnhof, Berlin, Fahrzeit: 25 min
- Bus, Ollenhauerstr/Lindauer Allee; Linien 322, M21, Gehzeit: 5 min
- Bundesautobahn, A 100, Fahrzeit: 40 min
- Flughafen, Berlin Brandenburg, Fahrzeit: 60 min
Ihr Kontakt

Alexandra Teich
Ihr Kontakt
Marktinformationen
Mietmarkt
Reinickendorf, Berlin
siehe 1 passende MietobjekteErfahren Sie mehr
* Durchschnittspreis auf Grundlage historischer Transaktionen.

