Büros
ID B0847Provisionsfrei
Aktualisiert
Büroimmobilie - Berlin, Siemensstadt - B0847
Siemensstadt, 13627, Berlin, Berlin
Kontaktieren Sie uns für den Preis
- Fläche223 - 19.533 m²
- VerfügbarkeitSofort
- Objekt
- Ausstattung
- Lage und Verkehrsanbindung
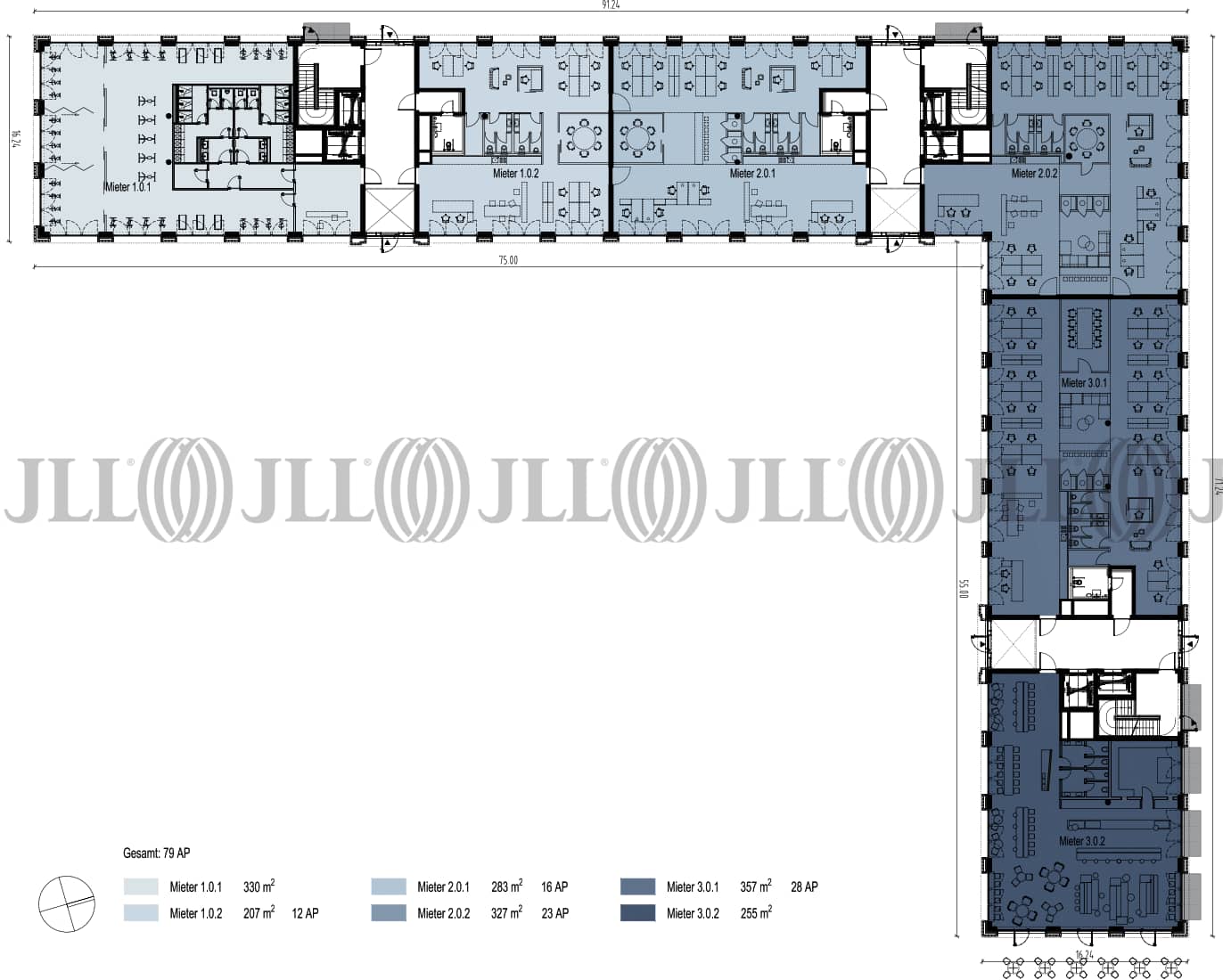
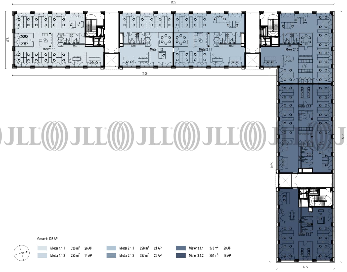
- Grundrisse
- Exposé herunterladen
- Ihr Kontakt
- Anfrage senden
Objekt
Der TechnoCampus Berlin ist ein Ensemble aus dem historischen, denkmalgeschützten SiemensWernerwerk XV des Architekten Hans Hertlein und zwei Neubauten des renommierten Architekturbüro Tchoban Voss. Durch die historischen Gebäude mit ihrer attraktiven Backsteinfassade und den Höfen mit Grünanlagen, entstand ein unverwechselbarer Campus-Charakter. Die effizienten Büroflächen sind flexibel nutzbar und können hinsichtlich weiterer Ausstattungsoptionen individuell gestaltet werden. Hier können die unterschiedlichsten Büro- und Organisationsformen realisiert werden –vom klassischen Zellenbüro über Labor, IT-Hub und Open Space ist hier alles möglich.
- sehr gute Ökobilanz
- DGNB Platin & Wired Score Zertifizierung für nachhaltige Gebäude
- großzügige Grünanlagen sorgen für attraktives Campus-Gefühl
- weitreichende Barrierefreiheit in allen Bereichen
- Foyers mit luftigen Galeriegeschossen, Sichtbeton, Terrazzo, - Holzoberflächen
- teilweise sichtbare Betonwände und-decken
- Unterflurkonvektoren
- Raumhohe Türen mit Echtholzoberfläche
- Pförtnerhaus und Sicherheitsdienst 24/7 Service
- Duschen & Umkleiden
- Relax- and Sportsarea im Freien (TraceSpace)
- Kniesolution Health & Movement (Physiotherapie und Sport)
- Logistik Hub für nachhaltige Paketzustellung
- Parkflächenmanagement
- Car Sharing und Mobility Hub
- Fahrrad- und PKW-Stellplätze mit E-Ladestationen
- Campus App
- 2 Designer- Mitarbeiterrestaurants (Hans + Werner)
- 1 Kaffeewerk
- sehr gute Ökobilanz
- DGNB Platin & Wired Score Zertifizierung für nachhaltige Gebäude
- großzügige Grünanlagen sorgen für attraktives Campus-Gefühl
- weitreichende Barrierefreiheit in allen Bereichen
- Foyers mit luftigen Galeriegeschossen, Sichtbeton, Terrazzo, - Holzoberflächen
- teilweise sichtbare Betonwände und-decken
- Unterflurkonvektoren
- Raumhohe Türen mit Echtholzoberfläche
- Pförtnerhaus und Sicherheitsdienst 24/7 Service
- Duschen & Umkleiden
- Relax- and Sportsarea im Freien (TraceSpace)
- Kniesolution Health & Movement (Physiotherapie und Sport)
- Logistik Hub für nachhaltige Paketzustellung
- Parkflächenmanagement
- Car Sharing und Mobility Hub
- Fahrrad- und PKW-Stellplätze mit E-Ladestationen
- Campus App
- 2 Designer- Mitarbeiterrestaurants (Hans + Werner)
- 1 Kaffeewerk
Zertifizierungen
Energieausweis
DGNB: PlatinumFür diese Liegenschaft liegt ein Bedarfsausweis vom 18.11.2013 vom Eigentümer/Vermieter vor. Die wesentlichen Energieträger der Liegenschaft sind Fernwärme, Nahwärme, Strom. Endenergiebedarf: 167 kWh/(m²*a)
Verfügbare Fläche
Lage und Verkehrsanbindung
Der TechnoCampus Berlin befindet sich in der City West - an der Grenze zu Charlottenburg - zwischen Siemensstadt und dem neuen Wissenschafts- und Technologiepark „Urban Tech Republic“ am ehemaligen Flughafen Tegel. Durch die hervorragende Sichtbarkeit von der Berliner Stadtautobahn A100 verfügt das Objekt über einen hohen Bekanntheitsgrad. Der Campus befindet sich in Laufnähe des öffentlichen Nahverkehrs, die Autobahn ist ebenfalls nur wenige Fahrminuten entfernt.
- Flughafen, Berlin Brandenburg, Fahrzeit: 35 min
- Bundesautobahn, A 100, Fahrzeit: 5 min
- Bundesautobahn, B 96, Fahrzeit: 15 min
- Bus, Wohlrabedamm/Siemensdamm; Linie 139, Gehzeit: 3 min
- U-Bahn, Siemensdamm; Linie U7, Gehzeit: 5 min
- Hauptbahnhof, Berlin, Fahrzeit: 15 min
Ihr Kontakt

Steve Ritt
Ihr Kontakt





















