Büros
ID B0826Provisionsfrei
Aktualisiert
Büroimmobilie - Berlin, Mitte - B0826
Mitte, 10963, Berlin, Berlin
26 € / m²
- Fläche323 - 942 m²
- VerfügbarkeitSofort
- Objekt
- Ausstattung
- Lage und Verkehrsanbindung
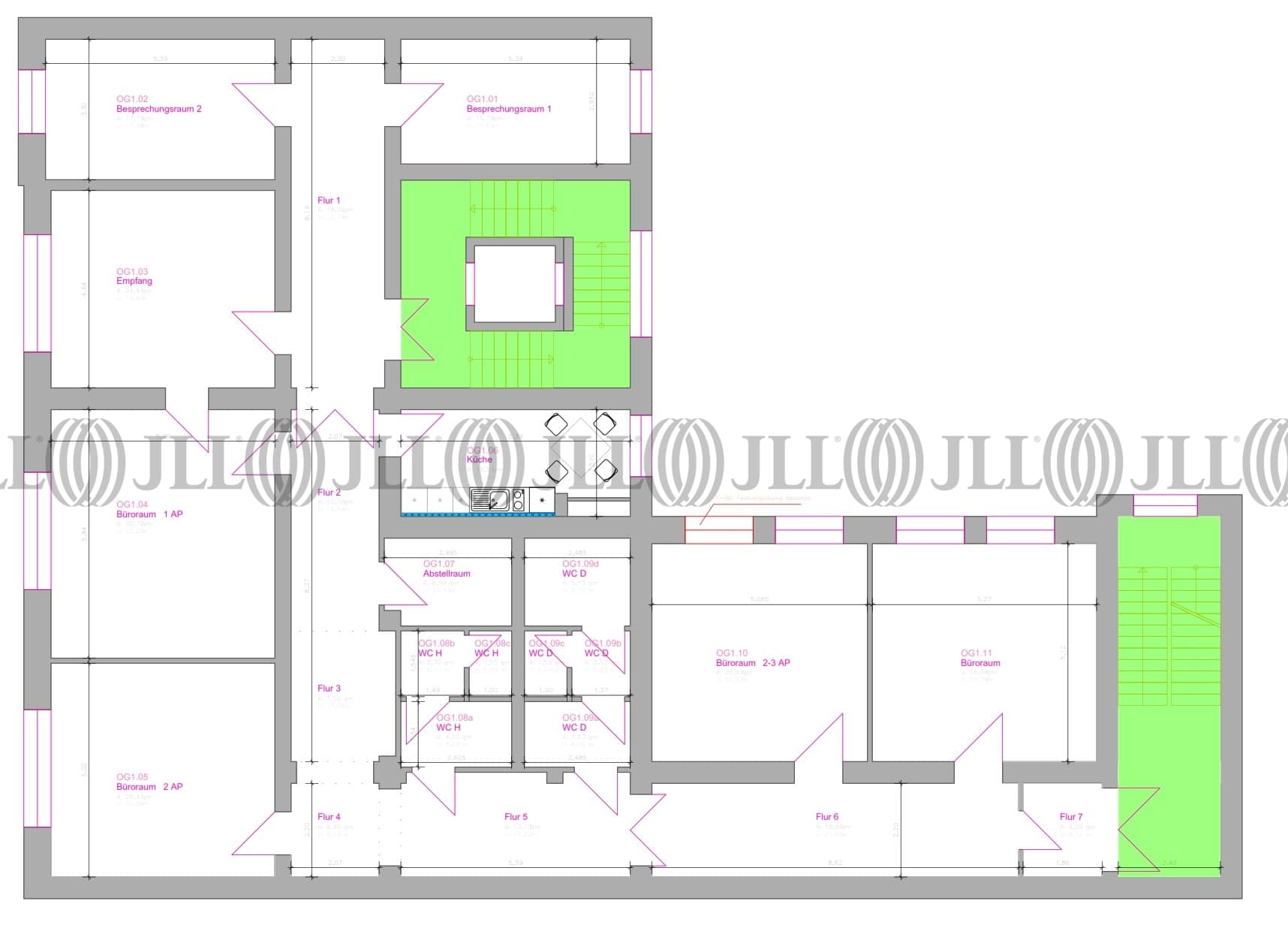
- Grundriss
- Exposé herunterladen
- Ihr Kontakt
- Anfrage senden
Zertifizierungen
Energieausweis
Für diese Liegenschaft liegt ein Verbrauchsausweis vom 12.08.2014 vom Eigentümer/Vermieter vor. Der wesentliche Energieträger der Liegenschaft ist KWK. Der Endenergieverbrauch Strom beträgt 7.00 kWh/(m²*a). Der Endenergieverbrauch Wärme beträgt 48.30 kWh/(m²*a).Verfügbare Fläche
Lage und Verkehrsanbindung
Das Gebäude liegt im pulsierenden Berliner Bezirk Kreuzberg, nur einen Steinwurf vom bedeutenden Regierungsviertel und dem geschäftigen Potsdamer Platz entfernt. In der unmittelbaren Umgebung bietet sich den Bewohnern und Besuchern eine Vielzahl von Geschäften des täglichen Bedarfs, was für höchsten Komfort sorgt. Die attraktive Lage kombiniert Urbanität mit einer hervorragenden Anbindung an zentrale Punkte der Stadt und macht das Gebäude zu einem begehrten Standort für verschiedenste Ansprüche.
- Flughafen, Berlin Brandenburg, Fahrzeit: 30 min
- Bundesautobahn, A 100, Fahrzeit: 15 min
- Bus, Abgeordnetenhaus; Linie M41, Gehzeit: 1 min
- S-Bahn, Potsdamer Platz; Linie S1, S3, S25, Gehzeit: 3 min
- U-Bahn, Potsdamer Platz; Linie U2, Gehzeit: 3 min
- Bahnhof, Potsdamer Platz; Linie RB10, RB2, Gehzeit: 3 min
- Hauptbahnhof, Berlin, Fahrzeit: 7 min
Ihr Kontakt

Alexandra Teich
Ihr Kontakt
Marktinformationen
Mietmarkt
Mitte, Berlin
Gew. Ø-Miete
26 € / m²
siehe 168 passende MietobjekteErfahren Sie mehr* Durchschnittspreis auf Grundlage historischer Transaktionen.


