Büros
ID B0802Provisionsfrei
Aktualisiert
Büroimmobilie - Berlin, Tiergarten - B0802
Tiergarten, 10785, Berlin, Berlin
10 € / m²
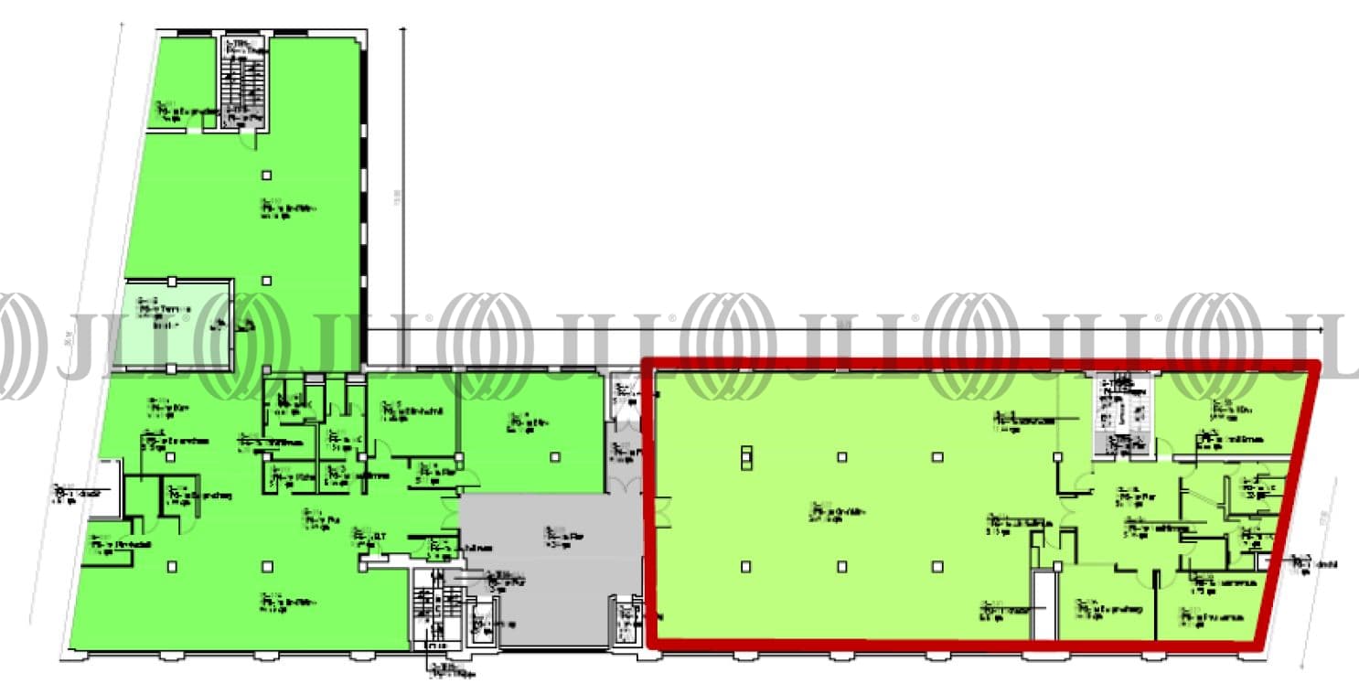
- Fläche747 - 7.424 m²
- VerfügbarkeitSofort
- Objekt
- Ausstattung
- Lage und Verkehrsanbindung
- Grundrisse
- Exposé herunterladen
- Ihr Kontakt
- Anfrage senden
Objekt
Mietverträge mit kurzer Laufzeit von 1-3 Jahren sind möglich, wobei die Flächen im aktuellen Zustand und ohne Incentives übergeben werden. Bei längerfristigen Verträgen ab 5 Jahren wird eine marktübliche Miete angesetzt, und der Vermieter übernimmt den Ausbau der Flächen.
Zertifizierungen
Energieausweis
Für diese Liegenschaft liegt ein Verbrauchsausweis vom 22.10.2012 vom Eigentümer/Vermieter vor. Der wesentliche Energieträger der Liegenschaft ist Fernwärme. Der Endenergieverbrauch Strom beträgt 56.00 kWh/(m²*a). Der Endenergieverbrauch Wärme beträgt 68.00 kWh/(m²*a).Verfügbare Fläche
Lage und Verkehrsanbindung
Das Objekt befindet sich im Herzen Berlins in einer ruhigen Seitenstraße zur Potsdamer Straße, einer pulsierenden Hauptverkehrsader Berlins. Dort findet man zahlreiche Geschäfte des täglichen Bedarfs, Firmenniederlassungen, Banken und Hotels. Weitere namhafte Straßen Berlins wie z.B. die Friedrichstraße, der Kurfürstendamm, der Alexanderplatz oder auch der Gendarmenmarkt sind binnen weniger Minuten erreicht.
- Flughafen, Berlin Brandenburg, Fahrzeit: 35 min
- Bundesautobahn, A 100, Fahrzeit: 15 min
- Bus, U-Bahnhof Kurfürstenstraße, Linien M48, M85, Gehzeit: 5 min
Ihr Kontakt

Sophie Schröter
Ihr Kontakt
Marktinformationen
Mietmarkt
Tiergarten, Berlin
siehe 1 passende MietobjekteErfahren Sie mehr
* Durchschnittspreis auf Grundlage historischer Transaktionen.






