Büros
ID B0786Provisionsfrei
Büroimmobilie - Berlin, Mitte - B0786
Mitte, 10117, Berlin, Berlin
22 € / m²
- Fläche250 - 4.228 m²
- VerfügbarkeitSofort
- Objekt
- Ausstattung
- Lage und Verkehrsanbindung
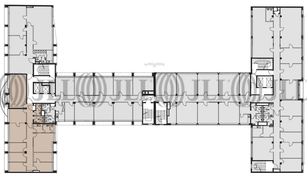
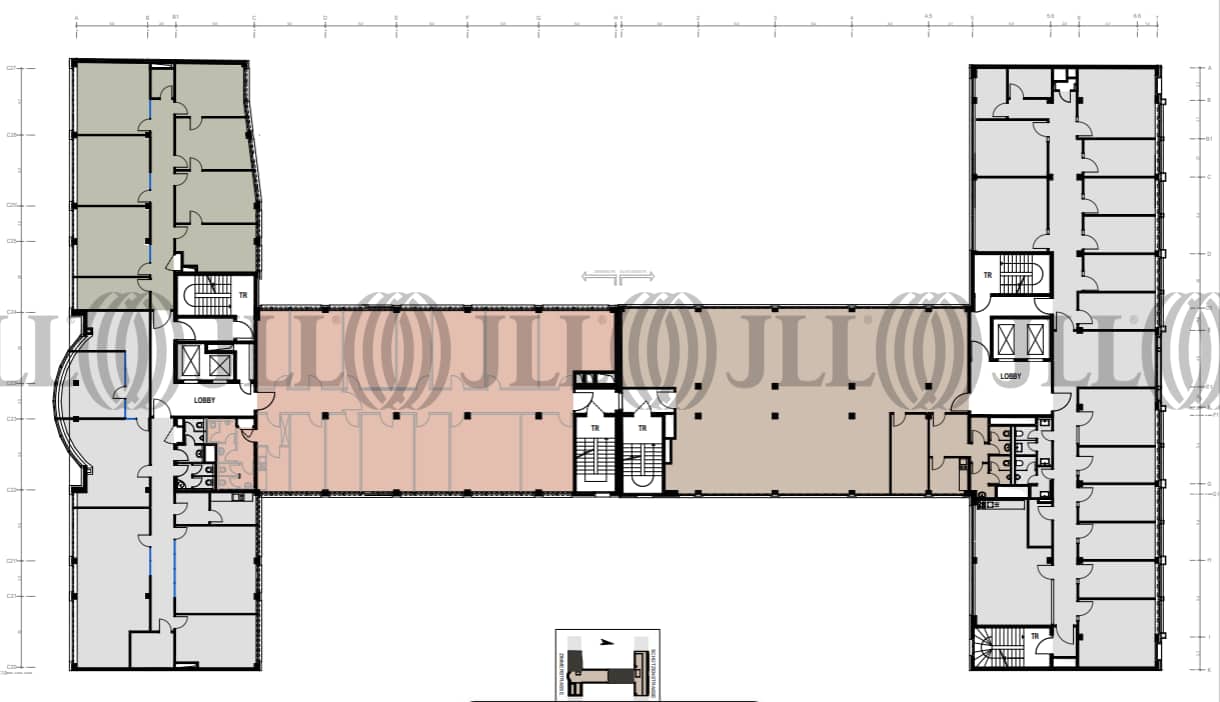
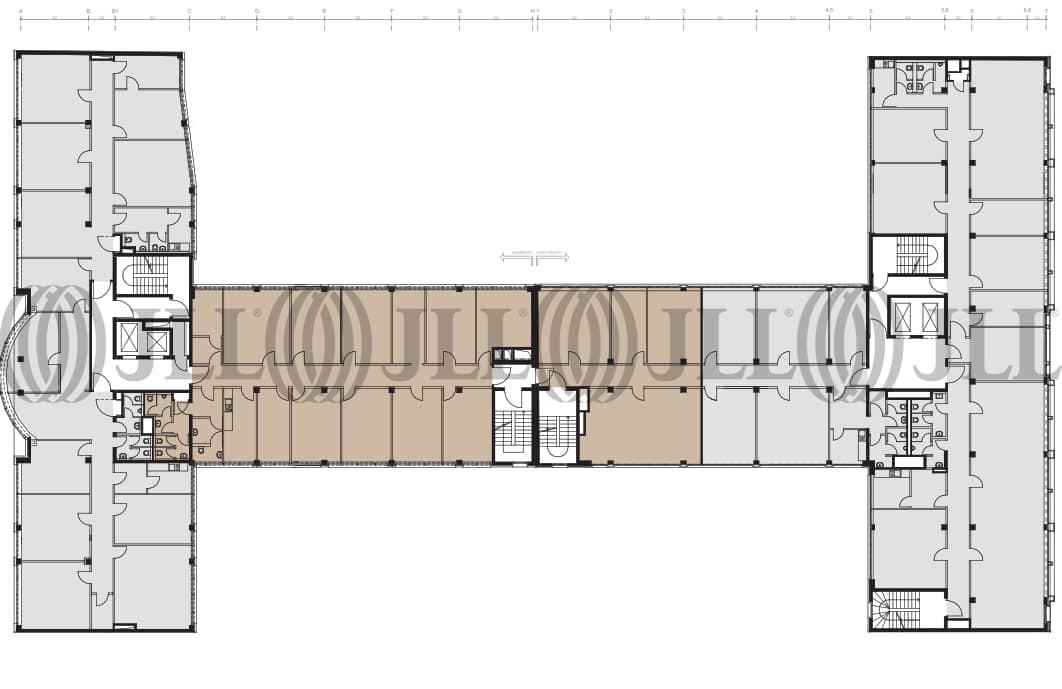
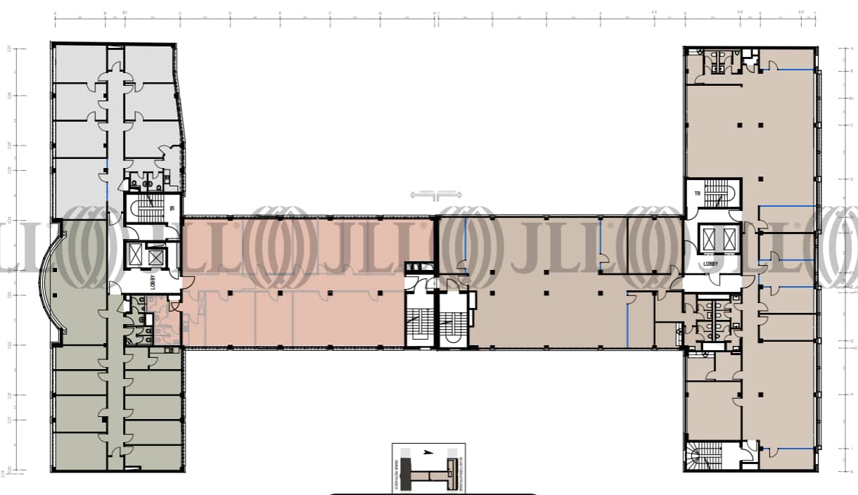
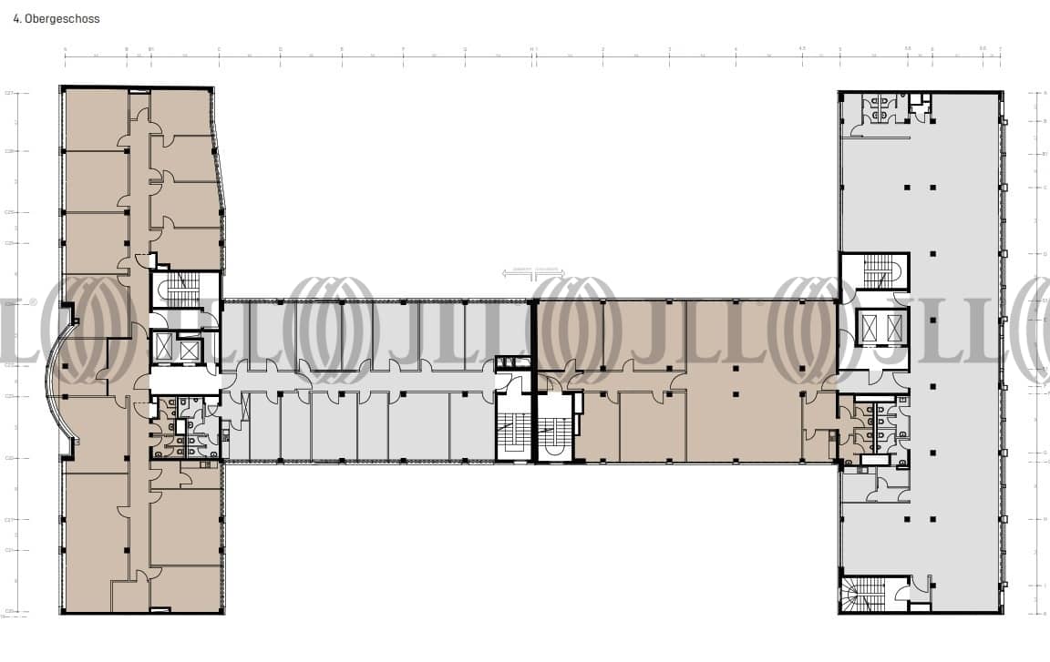
- Grundrisse
- Exposé herunterladen
- Ihr Kontakt
- Anfrage senden
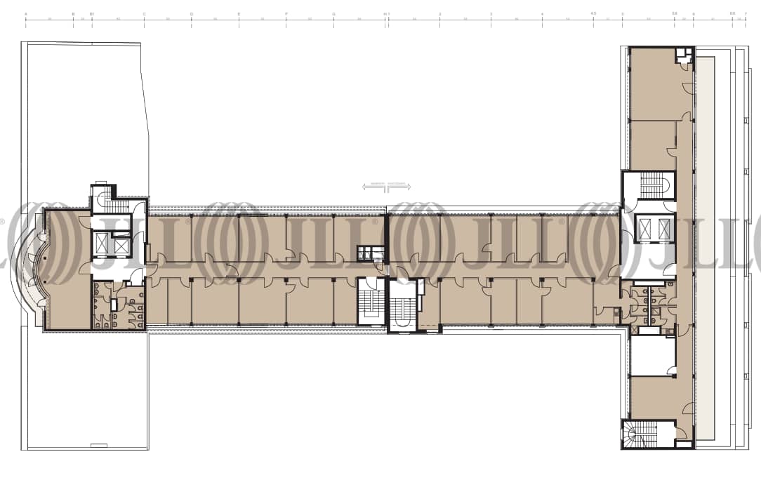
Objekt
Das Büro- und Geschäftshausensemble besteht aus zwei T-förmigen Bauteilen und erstreckt sich insgesamt über 9 Etagen. Durch ein repräsentativen Foyer mit Natursteinböden werden die oberen Etagen durch ein Treppenhaus mit Personenaufzügen erschlossen. Alle Büroeinheiten sind effizient geschnitten und können individuell nach Mieterwunsch aufgeteilt werden.
Zertifizierungen
Energieausweis
Für diese Liegenschaft liegt ein Bedarfsausweis vom 26.02.2021 vom Eigentümer/Vermieter vor. Die wesentlichen Energieträger der Liegenschaft sind Fernwärme, Strom. Der Endenergiebedarf Strom beträgt 20.4 kWh/(m²*a). Der Endenergiebedarf Wärme beträgt 55.9 kWh/(m²*a).Verfügbare Fläche
Lage und Verkehrsanbindung
Das Objekt befindet sich im Bezirk Mitte, in unmittelbarer Nähe zur Friedrichstraße. Zahlreiche Hotels, Passagen und Boutiquen kennzeichnen die Lage, die geprägt ist durch die Mischung von historischen Gebäuden und moderner Architektur. Der Checkpoint-Charlie, Gendarmenmarkt und der Potsdamer Platz sind in wenigen Minuten erreichbar. In der Umgebung sind zahlreiche Restaurants, Bistros und Einzelhandelsgeschäfte zu finden.
- Flughafen, Berlin Brandenburg, Fahrzeit: 35 min
- Bundesautobahn, A 100, Fahrzeit: 30 min
- Bus, U-Bahnhof Kochstr./ Checkpoint Charlie; Linie M29, Gehzeit: 5 min
- U-Bahn, Kochstraße, Gehzeit: 5 min
- Hauptbahnhof, Hauptbahnhof, Fahrzeit: 10 min
Ihr Kontakt

Tobias Rodewald
Ihr Kontakt
Marktinformationen
Mietmarkt
Mitte, Berlin
Gew. Ø-Miete
22 € / m²
siehe 155 passende MietobjekteErfahren Sie mehr* Durchschnittspreis auf Grundlage historischer Transaktionen.

















