Büros
ID B0765Provisionsfrei
Aktualisiert
Büroimmobilie - Berlin, Mitte - B0765
Mitte, 10178, Berlin, Berlin
22 € - 30 € / m²
- Fläche201 - 1.552 m²
- VerfügbarkeitSofort
- Objekt
- Ausstattung
- Lage und Verkehrsanbindung
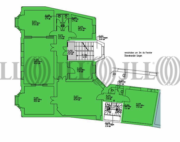
- Grundrisse
- Exposé herunterladen
- Ihr Kontakt
- Anfrage senden
Objekt
Das um 1900 erbaute und im Jahr 2000 komplett sanierte Geschäftshaus besteht aus einem historischen, viergeschossigen Vorderhaus, einem Seitenflügel und einem Loftgebäude, auf das ein weiteres Geschoss gebaut wurde.
Die Büroflächen können Sie provisionsfrei anmieten, sollte ein Mietvertrag mit einer Laufzeit von mindestens 5 Jahren zustande kommen.
Die Büroflächen können Sie provisionsfrei anmieten, sollte ein Mietvertrag mit einer Laufzeit von mindestens 5 Jahren zustande kommen.
Zertifizierungen
Energieausweis
Für diese Liegenschaft liegt ein Bedarfsausweis vom 01.08.2010 vom Eigentümer/Vermieter vor. Die wesentlichen Energieträger der Liegenschaft sind Erdgas schwer, Strom. Endenergiebedarf: 213.6 kWh/(m²*a)Verfügbare Fläche
Lage und Verkehrsanbindung
Das Objekt befindet sich nur wenige Meter vom Hackeschen Markt entfernt. Neben zahlreichen Start-up Unternehmen und Mietern aus der kreativen Szene sitzen auch viele namhafte Anwaltskanzleien, Steuerberater, Institute und Tech-Unternehmen in der direkten Nachbarschaft.
- Flughafen, Berlin Brandenburg, Fahrzeit: 40 min
- Bundesautobahn, A 100, Fahrzeit: 17 min
- U-Bahn, Weinmeisterstraße; Linie U8, Gehzeit: 1 min
- Straßenbahn/Tram, Weinmeisterstraße; Linie M1, Gehzeit: 1 min
- Hauptbahnhof, Berlin, Fahrzeit: 10 min
Ihr Kontakt

Alexandra Teich
Ihr Kontakt
Marktinformationen
Mietmarkt
Mitte, Berlin
Gew. Ø-Miete
22 € - 30 € / m²
siehe 155 passende MietobjekteErfahren Sie mehr* Durchschnittspreis auf Grundlage historischer Transaktionen.









