Büros
ID B0715Provisionsfrei
Aktualisiert
Büroimmobilie - Berlin, Mitte - B0715
Mitte, 10117, Berlin, Berlin
33 € / m²
- Fläche275 - 5.661 m²
- VerfügbarkeitAuf Anfrage
- Objekt
- Ausstattung
- Lage und Verkehrsanbindung
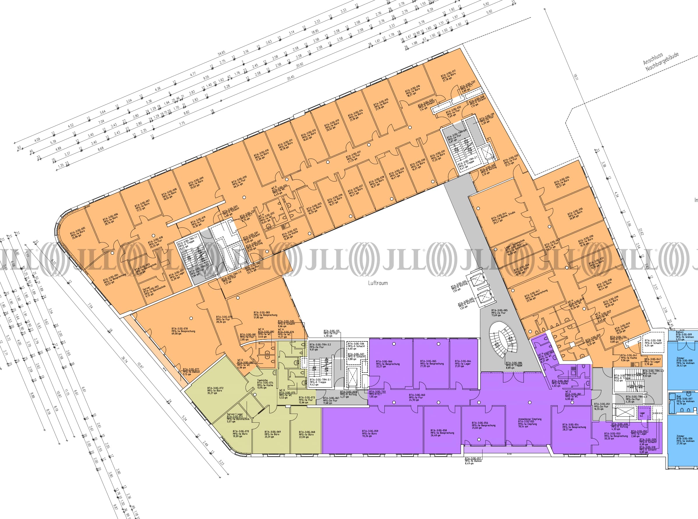
- Grundrisse
- Exposé herunterladen
- Ihr Kontakt
- Anfrage senden
Objekt
Dieses Geschäfts- und Bürogebäude aus dem Jahr 2001 beeindruckt mit seiner offenen Architektur. Schon beim Betreten des Gebäudes fällt das großzügige Atrium ins Auge, welches dem gesamten Objekt einen repräsentativen und einladenden Charakter verleiht. Durch die offene Gestaltung und die durchgehenden, großen Fensterfronten sind die Flächen im gesamten Gebäude lichtdurchflutet und schaffen eine ausgesprochen angenehme Arbeitsatmosphäre. Die modernen Büroetagen sind flexibel konzipiert, sodass sie sich ideal für die Umsetzung zeitgemäßer Arbeitswelten eignen. Eine hochwertige technische Ausstattung gewährleistet ein Höchstmaß an Komfort und Funktionalität.
Zertifizierungen
Energieausweis
Für diese Liegenschaft liegt ein Bedarfsausweis vom 18.06.2014 vom Eigentümer/Vermieter vor. Die wesentlichen Energieträger der Liegenschaft sind Erdgas schwer, Strom. Der Endenergiebedarf Strom beträgt 22.60 kWh/(m²*a). Der Endenergiebedarf Wärme beträgt 124.40 kWh/(m²*a).Verfügbare Fläche
Lage und Verkehrsanbindung
Das Objekt besticht durch seine unvergleichliche Lage in Berlins Mitte. Das nahegelegene Regierungsviertel mit Bundeskanzleramt, Bundestag sowie vielen weiteren Ministerien wirkt wie ein Magnet für große Unternehmen der Medienbranche, zahlreiche Wirtschaftsverbände sowie die Politik. Viele weitere bedeutende Organisationen sind ebenfalls in fußläufiger Umgebung angesiedelt und erreichbar. Gleichzeitig befindet sich die Immobilie unmittelbar an einer der bekanntesten Kultur- und Ausgehmeilen der Stadt, geprägt von weltberühmten Revuetheatern. Die Nähe zum Spreeufer verleiht dem Standort ein zusätzliches Flair. Die Verkehrsanbindung ist herausragend; ein wichtiger Fern- und S-Bahnhof sowie eine U-Bahn-Station direkt vor der Tür gewährleisten eine optimale Erreichbarkeit für Mitarbeiter und Geschäftspartner.
- Hauptbahnhof, Berlin, Fahrzeit: 2 min
- S-Bahn, Friedrichstraße; Linien S1, S2, S25, S26, S3, S5, S7, S75, S9, Gehzeit: 4 min
- U-Bahn, Friedrichstraße; Linie U6, Gehzeit: 4 min
- Straßenbahn/Tram, Oranienburger Tor, Linien M1, M5, Gehzeit: 4 min
- Bus, Friedrichstrasse, Linien 147, 245, Gehzeit: 3 min
- Bundesautobahn, A 100, Fahrzeit: 15 min
- Flughafen, Berlin Brandenburg, Fahrzeit: 40 min
Ihr Kontakt

Steve Ritt
Ihr Kontakt
Marktinformationen
Mietmarkt
Mitte, Berlin
Gew. Ø-Miete
33 € / m²
siehe 173 passende MietobjekteErfahren Sie mehr* Durchschnittspreis auf Grundlage historischer Transaktionen.




