Büros
ID B0683Büroimmobilie - Berlin, Mitte - B0683
Mitte, 10115, Berlin, Berlin
Provisionspflichtig: bei Anmietung 3 Netto-Monatsmieten zzgl. gesetzlicher Umsatzsteuer.** der Wert kann je nach Vertragslaufzeit variieren.
28 € / m²
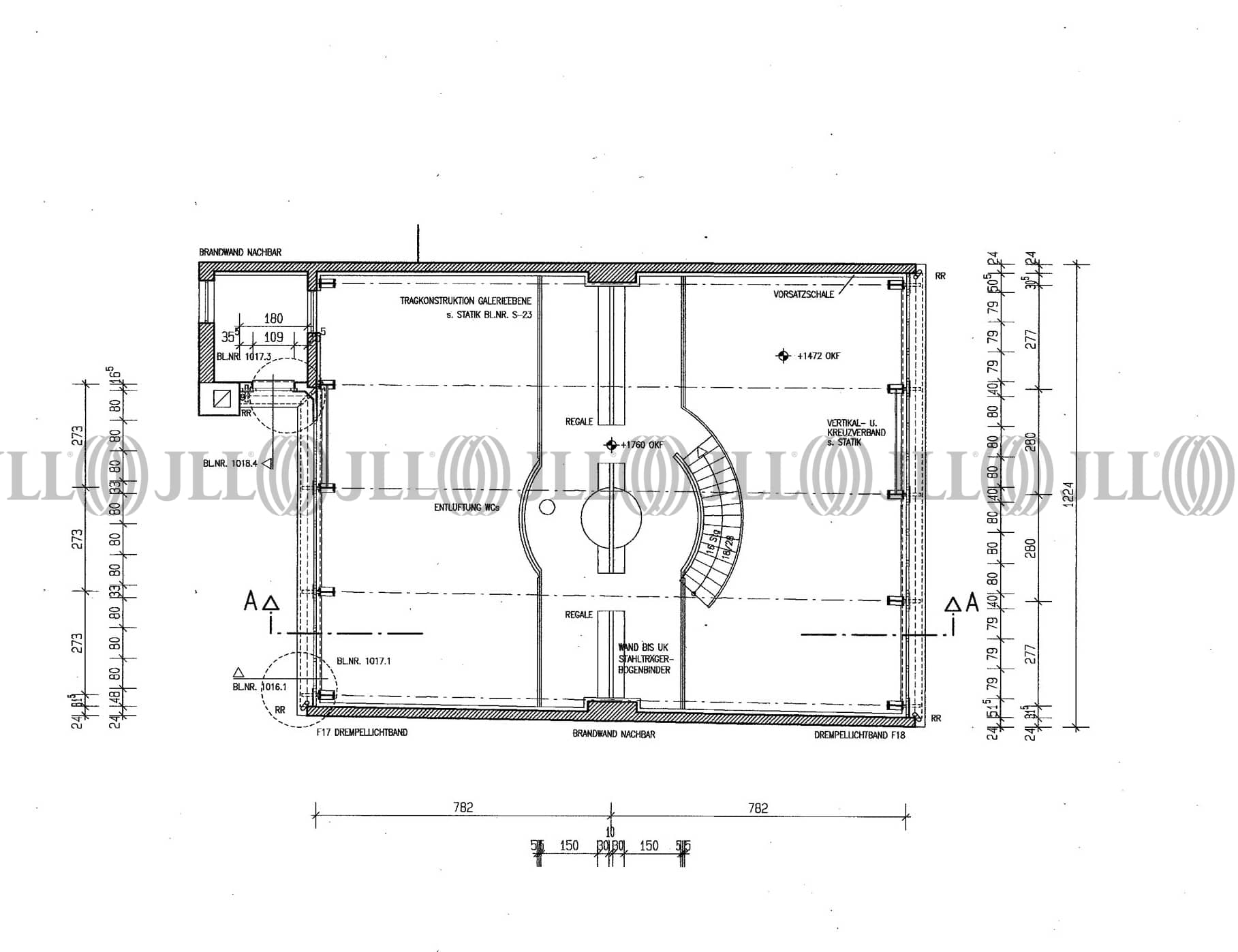
- Fläche230 m²
- VerfügbarkeitSofort
- Ausstattung
- Lage und Verkehrsanbindung
- Grundrisse
- Exposé herunterladen
- Ihr Kontakt
- Anfrage senden
Verfügbare Fläche
Lage und Verkehrsanbindung
Das Objekt liegt unmittelbar am Hackeschen Markt im Scheunenviertel. Mit seiner zentralen Lage in fußläufiger Entfernung zum Alexanderplatz, Unter den Linden und Friedrichstraße verbindet der Standort die Vorteile einer Citylage mit der besonderen Atmosphäre eines historisch gewachsenen Stadtteils. Arbeiten und Wohnen, Kultur und Kommerz verdichten sich hier zu einer lückenlosen Infrastruktur. Dienstleister des täglichen Bedarfs befinden sich in der Nähe.
- S-Bahn, Hackescher Markt, Linien S3,S7, S5, S75, Gehzeit: 6 min
- U-Bahn, Weinmeisterstraße, Linie U8, Gehzeit: 6 min
- Straßenbahn/Tram, Monbijouplatz, Linie M5, Gehzeit: 5 min
- Bundesautobahn, A 100, Fahrzeit: 25 min
- Flughafen, Berlin Brandenburg, Fahrzeit: 40 min
Ihr Kontakt

Chiara Costa Jacinto
Ihr Kontakt
Marktinformationen
Mietmarkt
Mitte, Berlin
Gew. Ø-Miete
28 € / m²
siehe 177 passende MietobjekteErfahren Sie mehr* Durchschnittspreis auf Grundlage historischer Transaktionen.






