Büros
ID B0580Provisionsfrei
Büroimmobilie - Berlin, Friedrichshain - B0580
Friedrichshain, 10243, Berlin, Berlin
Kontaktieren Sie uns für den Preis
- Fläche773 - 13.810 m²
- VerfügbarkeitSofort
- Objekt
- Ausstattung
- Lage und Verkehrsanbindung
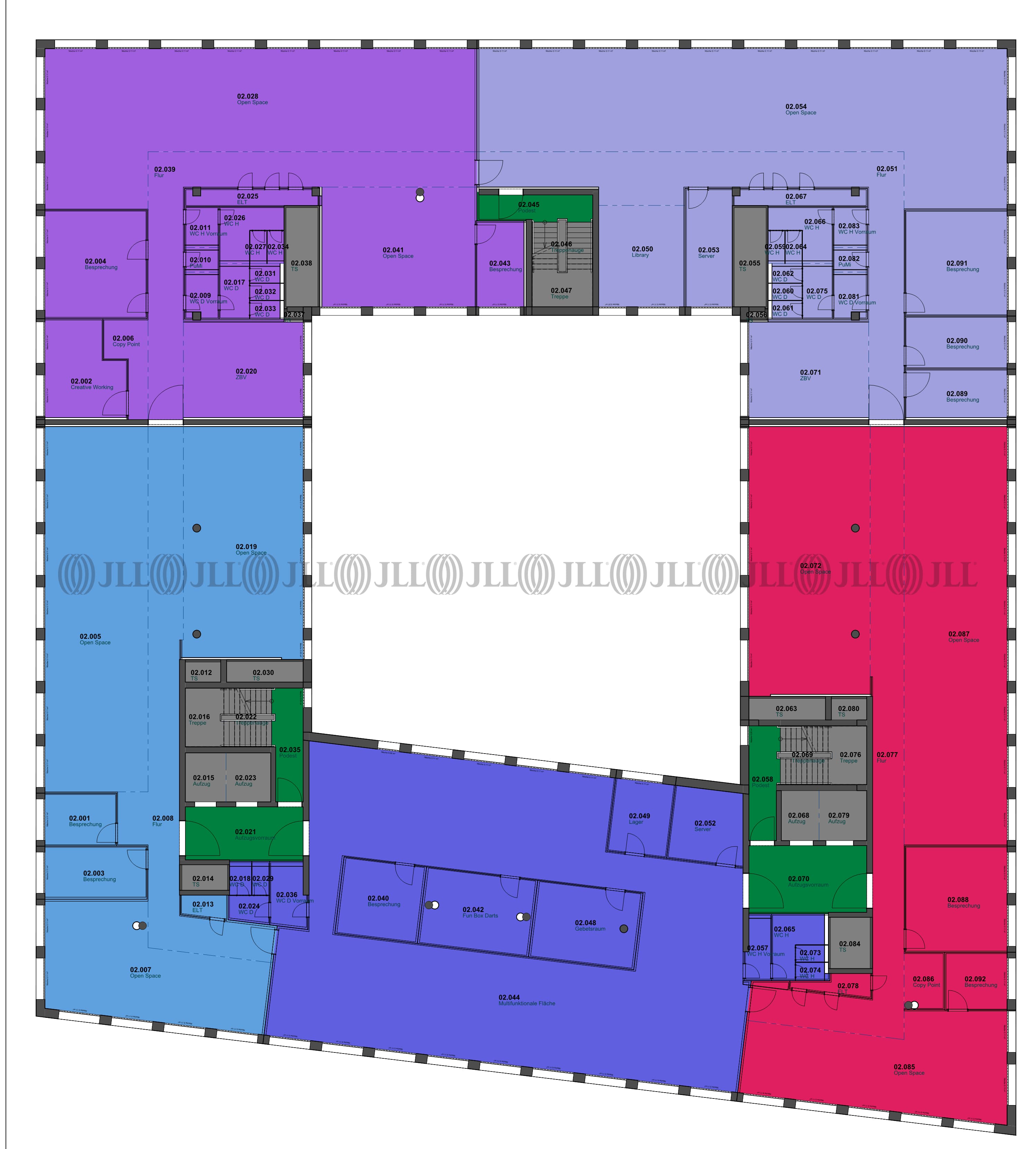
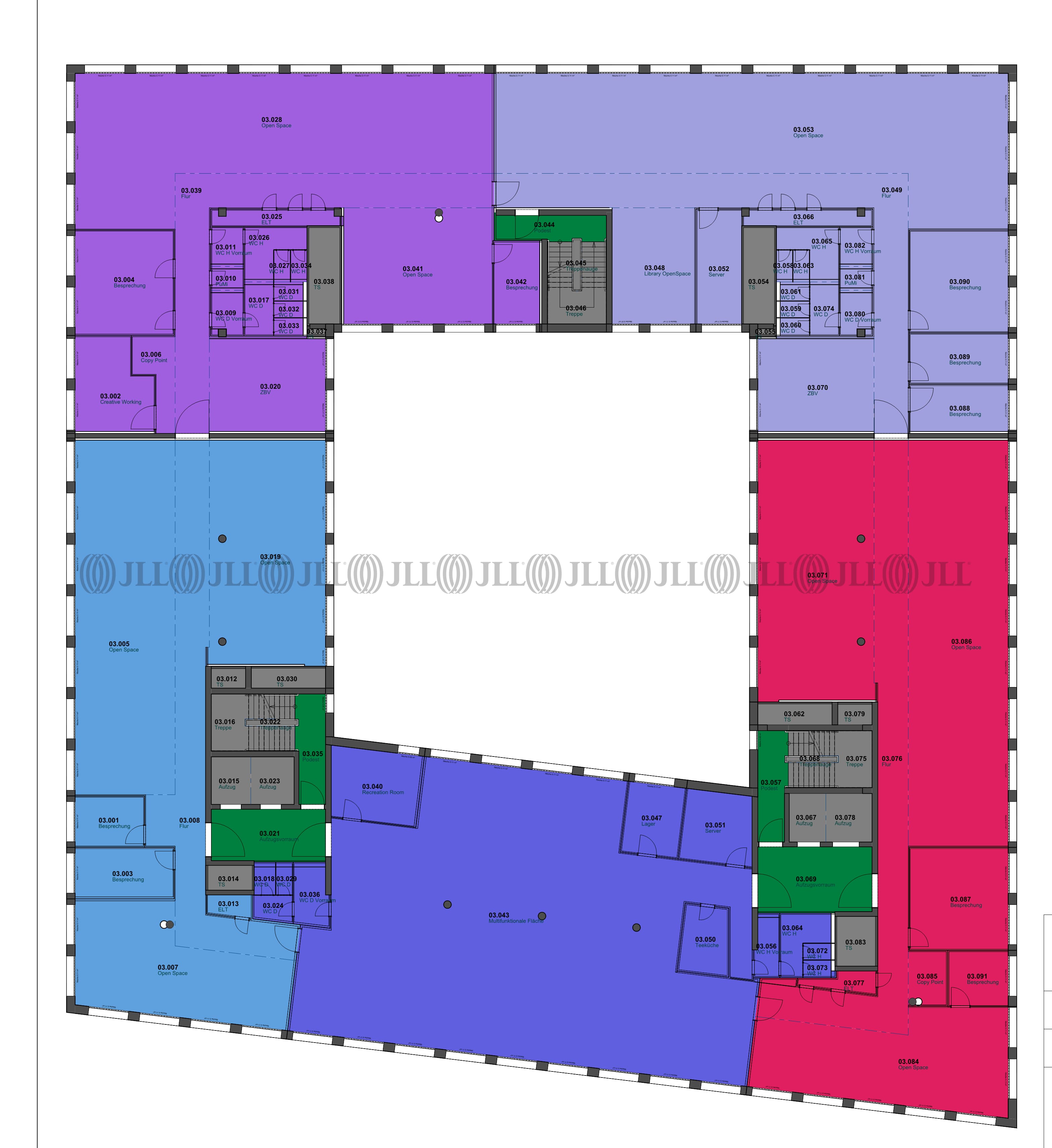
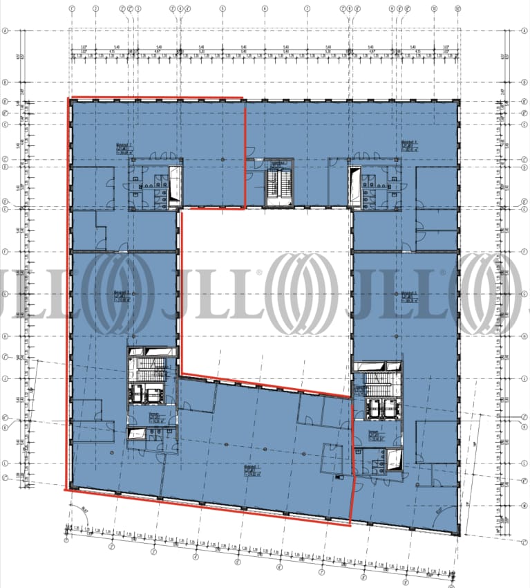
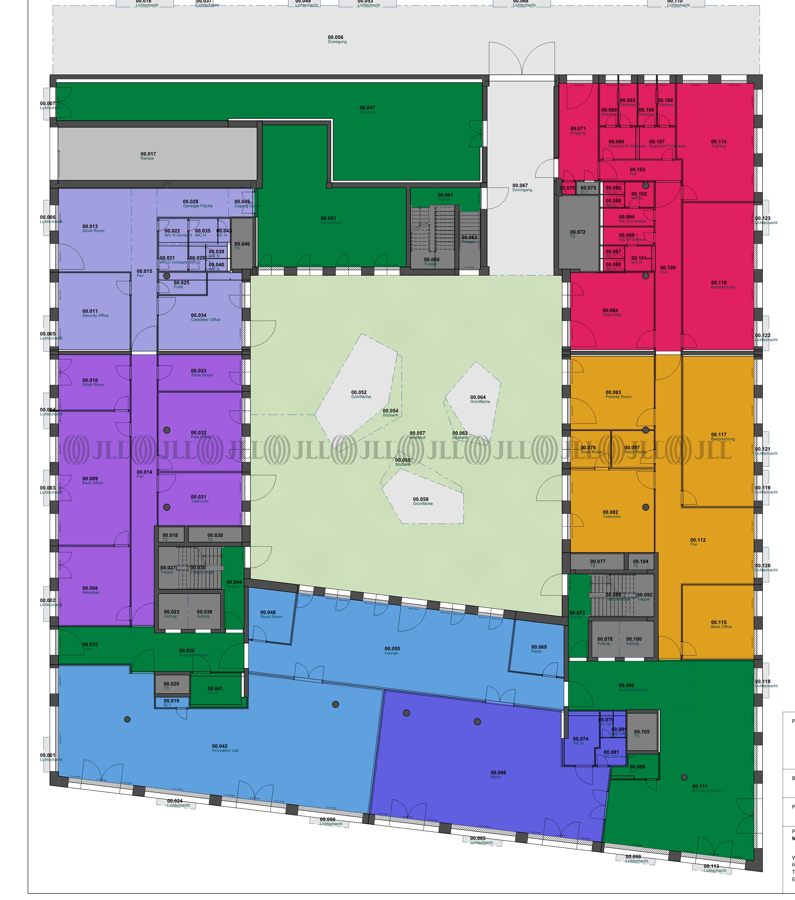
- Grundrisse
- Exposé herunterladen
- Ihr Kontakt
- Anfrage senden
Objekt
Hier treffen sich treffen sich Energieeffizienz und Flexibilität. Die Architektur ist betont offen gehalten, besticht durch klare geometrische Linien und sorgt mit klassisch bodentiefen Fenstern für lichtdurchflutete Räume. Das Objekt entspricht somit den modernsten Anforderungen an ein nachhaltiges Konzept.
Zertifizierungen
Energieausweis
DGNB: SilverFür diese Liegenschaft liegt ein Bedarfsausweis vom 18.05.2017 vom Eigentümer/Vermieter vor. Die wesentlichen Energieträger der Liegenschaft sind Fernwärme, Nahwärme, Strom. Der Endenergiebedarf Strom beträgt 43 kWh/(m²*a). Der Endenergiebedarf Wärme beträgt 61 kWh/(m²*a).
Verfügbare Fläche
Lage und Verkehrsanbindung
Im Berliner Stadtteil Friedrichshain - auf dem Areal MediaSpree - ist ein neues und vielseitiges Stadtquartier entstanden. Hochwertige Ankeransiedlungen sind bereits vorhanden. Mit Blick auf die Spree und seinem urbanen Umfeld, besticht auch der Neubau mit seinen architektonischen Highlights. Gastronomische Einrichtungen sowie Einkaufsmöglichkeiten für den täglich Bedarf befinden sich im näheren Umfeld und sind fußläufig zu erreichen.
- Hauptbahnhof, Berlin, Fahrzeit: 20 min
- S-Bahn, Ostbahnhof; Linien S3, S5, S7, S75, S9, Gehzeit: 5 min
- Bus, Ostbahnhof; Linien140, 142, 147, 240, 300, 347, Gehzeit: 5 min
- Flughafen, Berlin Brandenburg, Fahrzeit: 35 min
Ihr Kontakt

Steve Ritt
Ihr Kontakt
Marktinformationen
Mietmarkt
Friedrichshain, Berlin
siehe 51 passende MietobjekteErfahren Sie mehr
* Durchschnittspreis auf Grundlage historischer Transaktionen.










