Büros
ID B0559Provisionsfrei
Büroimmobilie - Berlin, Mitte - B0559
Mitte, 10117, Berlin, Berlin
Kontaktieren Sie uns für den Preis
- Fläche429 m²
- VerfügbarkeitSofort
- Objekt
- Ausstattung
- Lage und Verkehrsanbindung
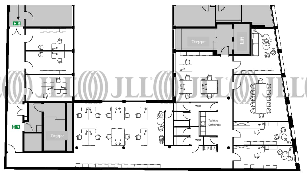
- Grundrisse
- Exposé herunterladen
- Ihr Kontakt
- Anfrage senden
Objekt
Das repräsentative Geschäftshaus fügt sich als zeitgemäße Rekonstruktion einer historischen Vorlage in die prestigeträchtige Umgebung ein. Mit seiner hochwertigen Sandsteinfassade und einem markanten Turmelement, das ein repräsentatives Treppenhaus beherbergt, setzt das Gebäude ein architektonisches Zeichen. Im Inneren bieten sich moderne und vollklimatisierte Büroflächen, die je nach Lage eindrucksvolle Ausblicke auf den Platz und sein berühmtes Wahrzeichen eröffnen. Die Immobilie ist als lebendiges Haus zum Arbeiten und Leben konzipiert und beherbergt flexible Bürolösungen, die höchsten Ansprüchen gerecht werden.
Zertifizierungen
Energieausweis
Für diese Liegenschaft liegt ein Bedarfsausweis vom 09.11.2023 vom Eigentümer/Vermieter vor. Der wesentliche Energieträger der Liegenschaft ist Fernwärme. Endenergiebedarf: 206.50000 kWh/(m²*a)Verfügbare Fläche
Lage und Verkehrsanbindung
Die Lage des Objekts zählt zu den exklusivsten Adressen der deutschen Hauptstadt. Es befindet sich direkt an einem geschichtsträchtigen, quadratischen Platz, der als Abschluss des Prachtboulevards "Unter den Linden" dient und unmittelbar an das Brandenburger Tor grenzt. In direkter Nachbarschaft finden sich renommierte Hotels, Botschaften sowie die Akademie der Künste in einer Mischung aus wiederaufgebauter historischer und moderner Architektur.
- Hauptbahnhof, Berlin, Fahrzeit: 8 min
- S-Bahn, Brandenburger Tor, Linien S1, S2, S25, S26, S85, Gehzeit: 2 min
- U-Bahn, Brandenburger Tor, Linie U5, Gehzeit: 2 min
- Bus, S + U Brandenburger Tor, Linie 100, Gehzeit: 2 min
- Bundesautobahn, A 100, Fahrzeit: 20 min
- Flughafen, Berlin Brandenburg, Fahrzeit: 30 min
Ihr Kontakt

Alexandra Teich
Ihr Kontakt
Marktinformationen
Mietmarkt
Mitte, Berlin
siehe 177 passende MietobjekteErfahren Sie mehr
* Durchschnittspreis auf Grundlage historischer Transaktionen.



