Büros
ID B0552Provisionsfrei
Büroimmobilie - Berlin, Mitte - B0552
Mitte, 10117, Berlin, Berlin
34 € / m²
- Fläche441 - 903 m²
- VerfügbarkeitAugust 2026
- Objekt
- Ausstattung
- Lage und Verkehrsanbindung
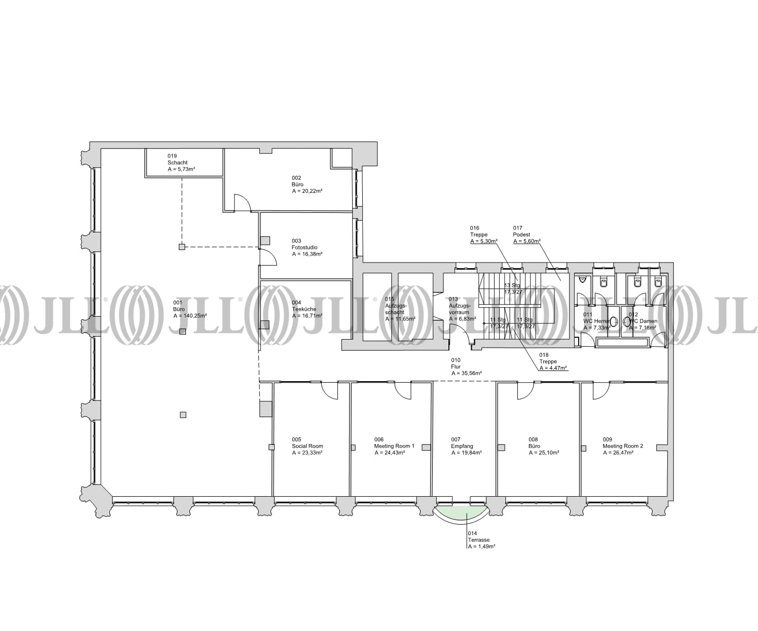
- Grundrisse
- Exposé herunterladen
- Ihr Kontakt
- Anfrage senden
Objekt
Dieses repräsentative Geschäftshaus besticht durch seine elegante und historisch geprägte Architektur. Die kunstvoll gestaltete Natursteinfassade mit ihren großen, teilweise bodentiefen Fensterfronten verleiht dem Gebäude einen zeitlosen und prestigeträchtigen Charakter. Im Inneren treffen historische Details auf eine moderne und hochwertige Ausstattung, die höchsten Ansprüchen gerecht wird. Die Büroflächen zeichnen sich durch flexible Grundrisse und eine helle, angenehme Arbeitsatmosphäre aus, die durch hohe Decken und eine durchdachte Raumaufteilung unterstützt wird. Ein stilvoller Eingangsbereich empfängt Besucher und Mieter und unterstreicht den exklusiven Anspruch dieser Immobilie, die Tradition und Moderne auf einzigartige Weise verbindet..
Zertifizierungen
Energieausweis
Für diese Liegenschaft liegt ein Verbrauchsausweis vom 28.04.2014 vom Eigentümer/Vermieter vor. Der wesentliche Energieträger der Liegenschaft ist Erdgas schwer. Der Endenergieverbrauch Strom beträgt 38.00 kWh/(m²*a). Der Endenergieverbrauch Wärme beträgt 132.00 kWh/(m²*a).Verfügbare Fläche
Lage und Verkehrsanbindung
Der Standort befindet sich in einer der begehrtesten und zentralsten Adressen der Hauptstadt, im pulsierenden Herzen Berlins. In unmittelbarer Nachbarschaft liegen bedeutende kulturelle Sehenswürdigkeiten, exklusive Einkaufsstraßen und renommierte Hotels. Ein vielfältiges gastronomisches Angebot von gehobenen Restaurants bis zu gemütlichen Cafés sorgt für eine hohe Aufenthaltsqualität und bietet ideale Möglichkeiten für Geschäftsessen oder Pausen. Die Anbindung an den öffentlichen Nahverkehr ist exzellent; mehrere U- und S-Bahnstationen sind fußläufig in wenigen Minuten erreichbar und gewährleisten eine schnelle Verbindung zu allen Teilen der Stadt sowie zum Hauptbahnhof. Das dynamische Umfeld, geprägt von nationalen und internationalen Unternehmen, Ministerien und Verbänden, macht diese Lage zu einem repräsentativen und strategisch wertvollen Firmensitz.
- Hauptbahnhof, S-Bahn, Tram, Regionalzüge, Fernzüge, div. Linien, Fahrzeit: 10 min
- U-Bahn, Stadtmitte, Linien U2, U6, Gehzeit: 3 min
- Bus, U Stadtmitte/ Leipziger Str., Linie M48, Gehzeit: 1 min
- Bundesautobahn, A 100, Fahrzeit: 20 min
- Flughafen, Berlin Brandenburg, Fahrzeit: 30 min
Ihr Kontakt

Alexandra Teich
Ihr Kontakt
Marktinformationen
Mietmarkt
Mitte, Berlin
Gew. Ø-Miete
34 € / m²
siehe 177 passende MietobjekteErfahren Sie mehr* Durchschnittspreis auf Grundlage historischer Transaktionen.






