Büros
ID B0511Provisionsfrei
Aktualisiert
Büroimmobilie - Berlin, Charlottenburg - B0511
Charlottenburg, 10629, Berlin, Berlin
35 € / m²
- Fläche185 - 3.674 m²
- VerfügbarkeitSofort
- Objekt
- Ausstattung
- Lage und Verkehrsanbindung
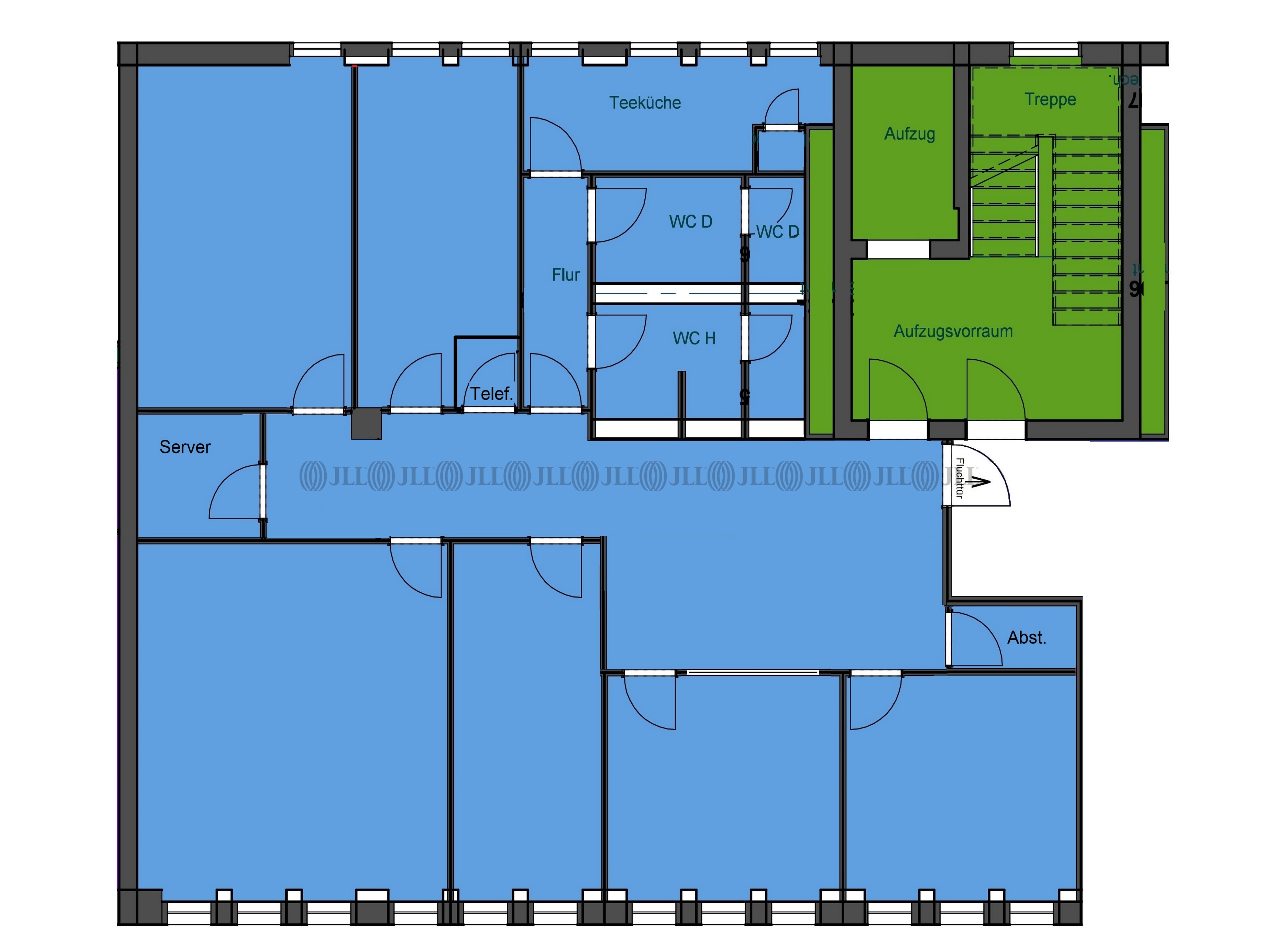
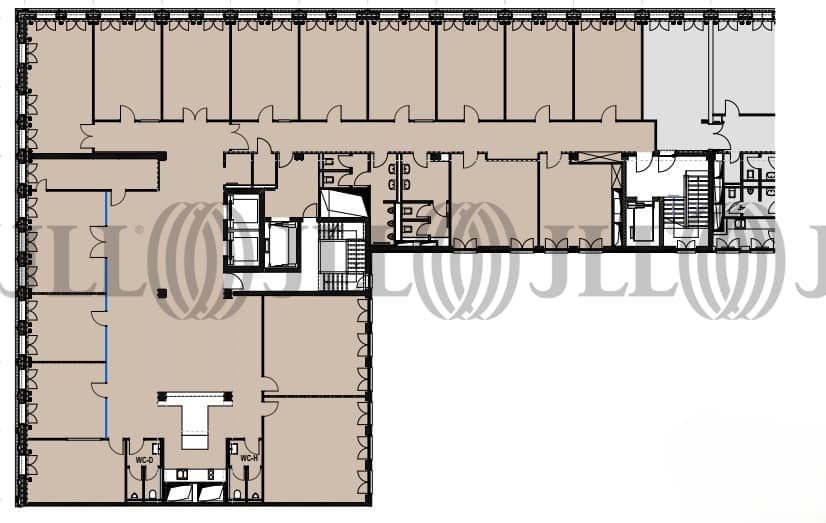
- Grundrisse
- Exposé herunterladen
- Ihr Kontakt
- Anfrage senden
Objekt
Die Leibniz-Kolonnaden mit hochwertigen Büros, Läden und Wohnungen wurden von den renommierten Architekten Kollhoff-Timmermann entworfen. Die klassisch aufgebaute Fassade in Verbindung mit den Säulen der Kolonnaden verleihen dem Objekt eine elegante Note. Optischer Höhepunkt der Leibniz-Kolonnaden ist die italienische Piazza - ein verkehrsfreier Stadtplatz, der mit einem großen Springbrunnen dem Ensemble ein mediterranes Flair verleiht. Namensgeber des Platzes ist der Philosoph und Schriftsteller Walter Benjamin. Viele Rechtsanwaltskanzleien, Beratungsunternehmen und Dienstleister schätzen bereits die Leibniz-Kolonnaden als Mieter. Schöne Restaurants, Cafés und Boutiquen finden sich im Erdgeschoss. Die öffentliche Tiefgarage bietet Ihnen und Ihren Kunden Parkmöglichkeiten.
Zertifizierungen
Energieausweis
BREEAM: ExcellentFür diese Liegenschaft liegt ein Bedarfsausweis vom 06.10.2019 vom Eigentümer/Vermieter vor. Die wesentlichen Energieträger der Liegenschaft sind Fernwärme, Strom. Der Endenergiebedarf Strom beträgt 24 kWh/(m²*a). Der Endenergiebedarf Wärme beträgt 78 kWh/(m²*a).
Verfügbare Fläche
Lage und Verkehrsanbindung
Die Leibniz-Kolonnaden befinden sich in allerbester City-West Lage, nur wenige Schritte vom Boulevard Kurfürstendamm entfernt. Das Grundstück ist über die Leibniz- und die Wielandstraße hervorragend erschlossen. Der Walter-Benjamin-Platz ist ein attraktiver, verkehrsfreier Stadtplatz mit großem Brunnen, der das Gebäudeensemble zu einem lebendigen Anziehungspunkt macht.
- Flughafen, Berlin Brandenburg, Fahrzeit: 45 min
- Bundesautobahn, A 100, Fahrzeit: 10 min
- Bus, Olivaer Platz, Linien 101, 109, M19, M29, X10, Gehzeit: 1 min
- Hauptbahnhof, Berlin, Fahrzeit: 15 min
- U-Bahn, Adenauer Platz, Linie U7, Gehzeit: 5 min
Ihr Kontakt

Tobias Rodewald
Ihr Kontakt
Marktinformationen
Mietmarkt
Charlottenburg, Berlin
Gew. Ø-Miete
35 € / m²
siehe 97 passende MietobjekteErfahren Sie mehr* Durchschnittspreis auf Grundlage historischer Transaktionen.







