Büros
ID B0502Provisionsfrei
Aktualisiert
Büroimmobilie - Berlin, Alt-Treptow - B0502
Alt-Treptow, 12435, Berlin, Berlin
18 € - 22 € / m²
- Fläche108 - 2.111 m²
- VerfügbarkeitSofort
- Objekt
- Ausstattung
- Lage und Verkehrsanbindung
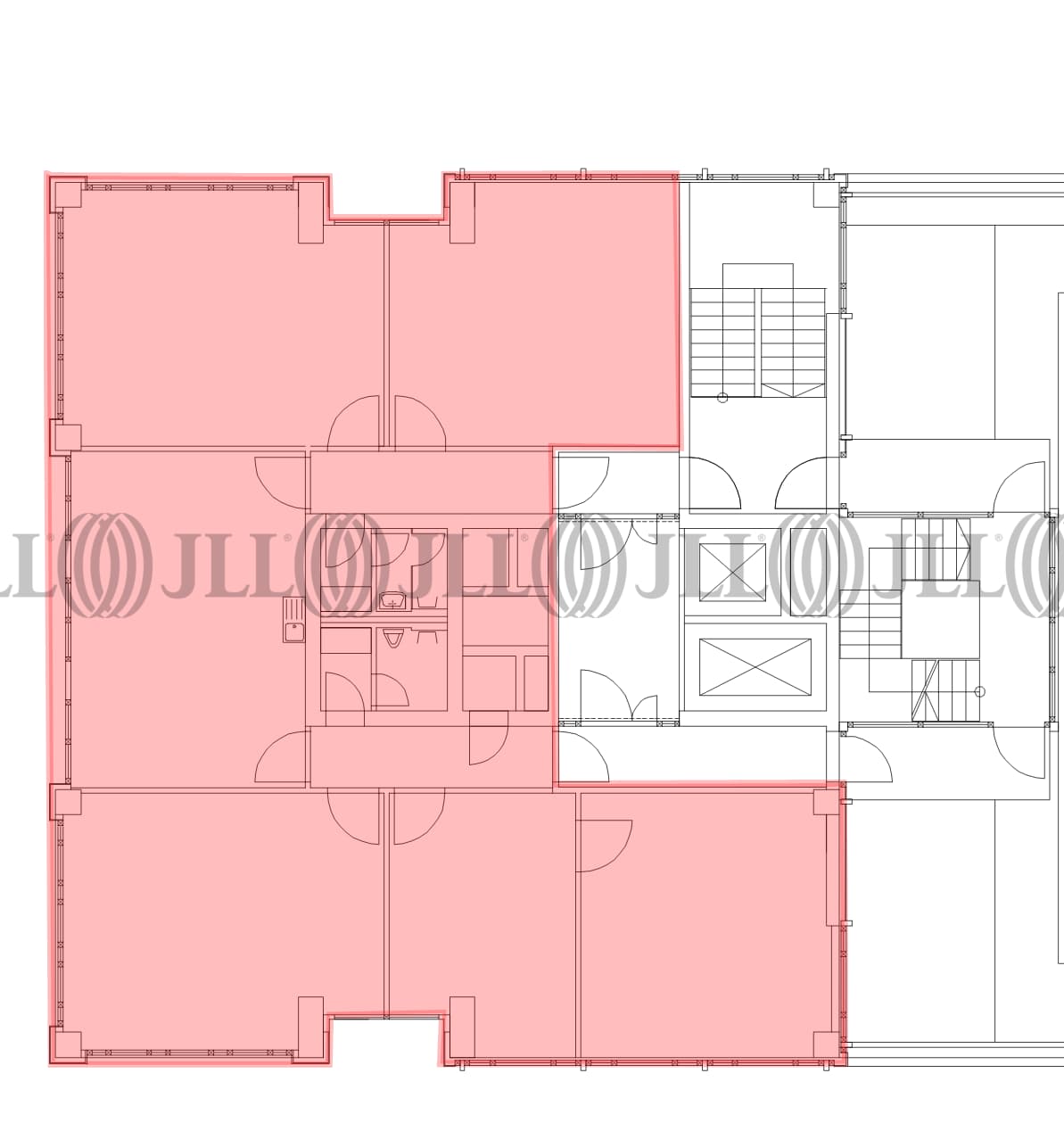
- Grundrisse
- Exposé herunterladen
- Ihr Kontakt
- Anfrage senden
Objekt
Das Objekt zeichnet sich durch seine imposante Architektur aus. Der Gebäudekomplex besteht aus zwei 60 m hohen Türmen und zwei sechsgeschossigen Karrees mit begrünten Innenhöfen. Der herrliche Ausblick von den mächtigen Türmen ist mehr als beeindruckend.
Zertifizierungen
Energieausweis
Für diese Liegenschaft liegt ein Verbrauchsausweis vom 25.04.2014 vom Eigentümer/Vermieter vor. Der wesentliche Energieträger der Liegenschaft ist Fernwärme. Der Endenergieverbrauch Strom beträgt 15.00 kWh/(m²*a). Der Endenergieverbrauch Wärme beträgt 136.00 kWh/(m²*a).Verfügbare Fläche
Lage und Verkehrsanbindung
Der Standort befindet sich im Berliner Ortsteil Alt-Treptow im Bezirk Treptow-Köpenick, in unmittelbarer Nähe zur Spree. Diese Lage zeichnet sich durch ihre einzigartige Kombination aus urbanem Umfeld und weitläufigen Grünflächen aus, insbesondere durch die Nähe zum Treptower Park. Der Ortsteil ist ein Knotenpunkt für verschiedene Verkehrswege und verfügt über eine sehr gute Anbindung an den öffentlichen Nahverkehr, was eine schnelle Erreichbarkeit der Berliner Innenstadt und des Flughafens gewährleistet. Das Umfeld hat sich in den letzten Jahren dynamisch zu einem attraktiven Wohn- und Geschäftsstandort mit vielfältigen Freizeitangeboten entwickelt. Die Umwandlung ehemaliger Industrieareale hat zur Entstehung moderner Wohn- und Geschäftsquartiere beigetragen, in denen sich neben etablierten Unternehmen auch namhafte Agenturen aus der Medien- und Marketingbranche angesiedelt haben. In der direkten Umgebung finden sich gastronomische Angebote sowie Geschäfte des täglichen Bedarfs.
- Hauptbahnhof, Berlin, Fahrzeit: 12 min
- S-Bahn, Treptower Park; Linien S41, S42, S9, Gehzeit: 10 min
- Bus, Eichenstr./Puschkinallee; Linien 104, 165, 194, 265, Gehzeit: 2 min
- Bundesautobahn, A 100, Fahrzeit: 25 min
- Flughafen, Berlin Brandenburg, Fahrzeit: 25 min
Ihr Kontakt

Alexandra Teich
Ihr Kontakt






