Büros
ID B0474Büroimmobilie - Berlin, Tiergarten - B0474
Tiergarten, 10787, Berlin, Berlin
Provisionspflichtig: bei Anmietung 3 Netto-Monatsmieten zzgl. gesetzlicher Umsatzsteuer.** der Wert kann je nach Vertragslaufzeit variieren.
23,50 € / m²
- Fläche257 - 517 m²
- VerfügbarkeitSofort
- Objekt
- Ausstattung
- Lage und Verkehrsanbindung
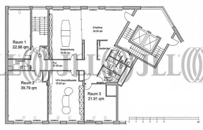
- Grundriss
- Exposé herunterladen
- Ihr Kontakt
- Anfrage senden
Zertifizierungen
Energieausweis
Für diese Liegenschaft liegt ein Bedarfsausweis vom 2014-08-06 vom Eigentümer/Vermieter vor. Der wesentliche Energieträger der Liegenschaft ist Strom. Der Endenergiebedarf Strom beträgt 22.40 kWh/(m²*a). Der Endenergiebedarf Wärme beträgt 85.40 kWh/(m²*a).Verfügbare Fläche
Lage und Verkehrsanbindung
Das Objekt befindet sich auf der Grenze zwischen Schöneberg und Tiergarten. Die urbane Gegend bietet in unmittelbarer Nähe zahlreiche Restaurants und Cafés sowie den Park am Gleisdreck. Ebenso befinden sich der Kurfürstendamm sowie der Potsdamer Platz unweit des Standortes.
- Hauptbahnhof, Berlin, Fahrzeit: 10 min
- U-Bahn, Nollendorfplatz; Linien U1, U2, U3, U4, Gehzeit: 2 min
- Bus, U-Bahnhof Nollendorfplatz; Linien 106, 187, Gehzeit: 1 min
- Bundesautobahn, A 100, Fahrzeit: 10 min
- Flughafen, Berlin Brandenburg, Fahrzeit: 30 min
Ihr Kontakt

Alexandra Teich
Ihr Kontakt
Marktinformationen
Mietmarkt
Tiergarten, Berlin
siehe 1 passende MietobjekteErfahren Sie mehr
* Durchschnittspreis auf Grundlage historischer Transaktionen.








