Büros
ID B0464Provisionsfrei
Aktualisiert
Büroimmobilie - Berlin, Mitte - B0464
Mitte, 10178, Berlin, Berlin
25 € / m²
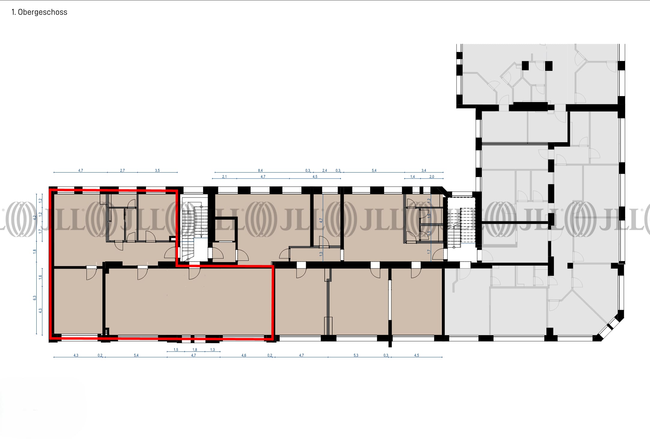
- Fläche393 - 1.171 m²
- VerfügbarkeitSofort
- Objekt
- Ausstattung
- Lage und Verkehrsanbindung
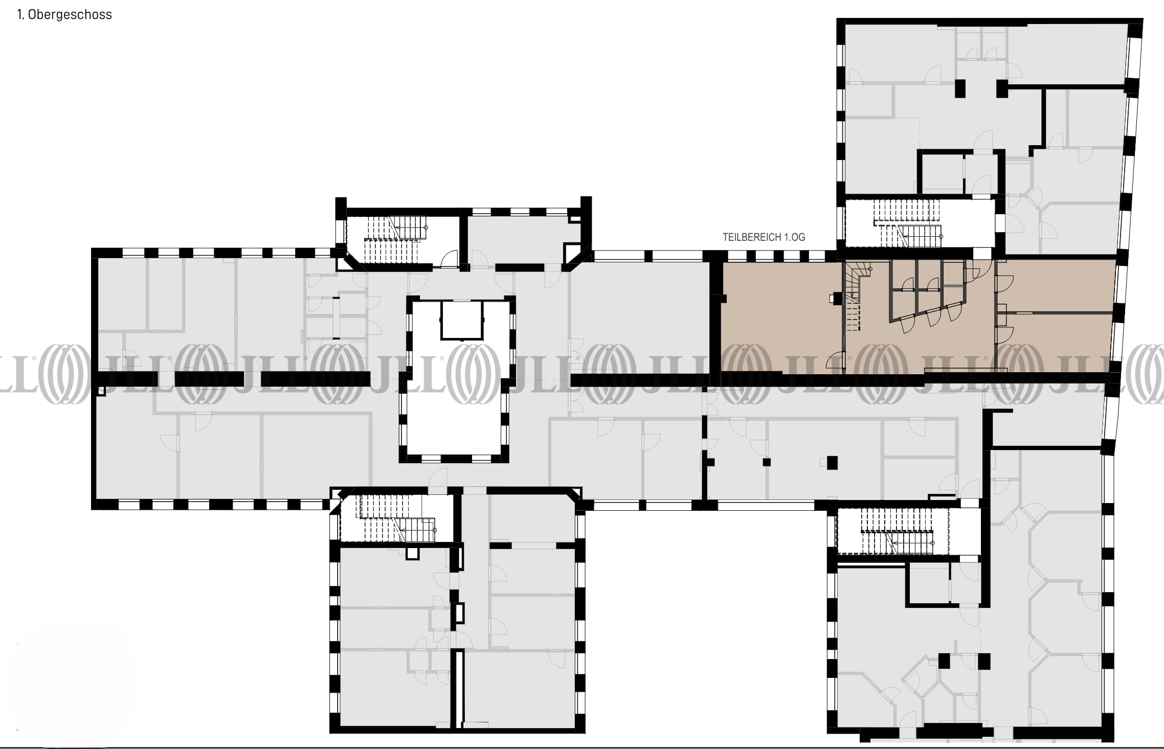
- Grundrisse
- Exposé herunterladen
- Ihr Kontakt
- Anfrage senden
Zertifizierungen
Energieausweis
Für diese Liegenschaft liegt ein Bedarfsausweis vom 2013-11-18 vom Eigentümer/Vermieter vor. Die wesentlichen Energieträger der Liegenschaft sind Strom,Fernwärme,Nahwärme. Endenergiebedarf: 603.00000 kWh/(m²*a).Verfügbare Fläche
Lage und Verkehrsanbindung
Auf geschichtsträchtigem Boden steht das 1878 im Stil des Historismus erbaute Ensemble. Die Liegenschaft befindet sich im Stadtteil Berlin - Mitte in unmittelbarer Nähe zu dem über die Stadtgrenze hinaus bekannten Hackeschen Markt. Dessen sowohl kulturelle als auch konsumorientierte Vielfalt ermöglicht anspruchsvollstes Arbeiten in einem attraktiven Ambiente.
- Flughafen, Berlin Brandenburg, Fahrzeit: 40 min
- Bundesautobahn, A 100, Fahrzeit: 20 min
- Hauptbahnhof, Berlin, Fahrzeit: 12 min
- U-Bahn, Weinmeister Straße, Linie U8, Gehzeit: 3 min
Ihr Kontakt

Alexandra Teich
Ihr Kontakt
Marktinformationen
Mietmarkt
Mitte, Berlin
Gew. Ø-Miete
25 € / m²
siehe 167 passende MietobjekteErfahren Sie mehr* Durchschnittspreis auf Grundlage historischer Transaktionen.












