Büros
ID B0440Provisionsfrei
Aktualisiert
Büroimmobilie - Berlin, Friedenau - B0440
Friedenau, 12159, Berlin, Berlin
17 € / m²
- Fläche323 - 1.370 m²
- VerfügbarkeitOktober 2026
- Objekt
- Ausstattung
- Lage und Verkehrsanbindung
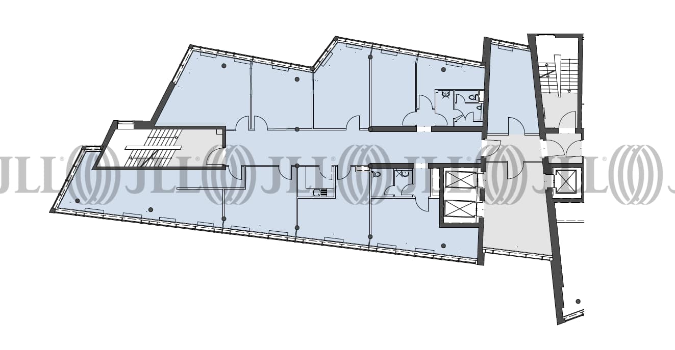
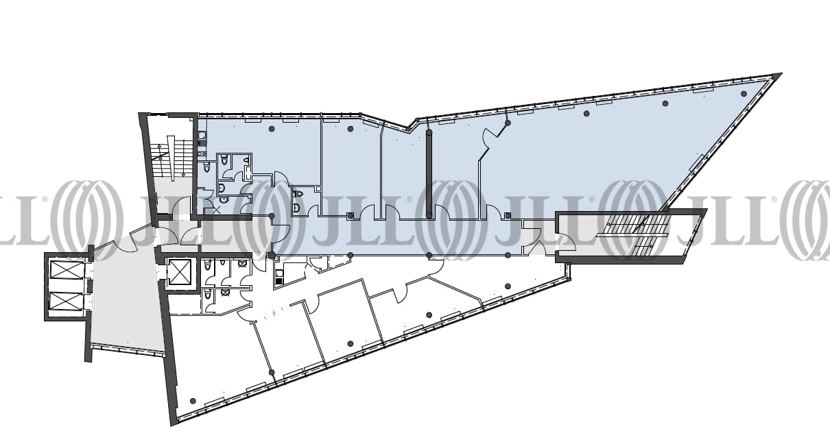
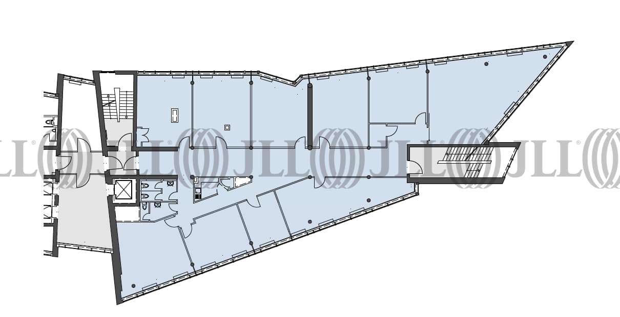
- Grundrisse
- Exposé herunterladen
- Ihr Kontakt
- Anfrage senden
Objekt
Das Objekt beeindruckt durch eine hochmoderne, energiesparende Glasfassade, die nicht nur Nachhaltigkeit, sondern auch ästhetische Raffinesse verkörpert. Beim Betreten des Gebäudes erwartet Sie ein repräsentativer Eingangsbereich, der durch seine Großzügigkeit und Eleganz besticht und in dem drei leistungsfähige Aufzugsanlagen für einen reibungslosen und schnellen Personenverkehr sorgen.
Zertifizierungen
Energieausweis
Für diese Liegenschaft liegt ein Bedarfsausweis vom 2010-08-01 vom Eigentümer/Vermieter vor. Die wesentlichen Energieträger der Liegenschaft sind Strom,Erdgas schwer. Endenergiebedarf: 141.20000 kWh/(m²*a).Verfügbare Fläche
Lage und Verkehrsanbindung
Das Objekt befindet sich im Berliner Stadtbezirk Schöneberg. Die Berliner Stadtautobahn befindet sich direkt am Objekt und ist entsprechend unmittelbar erreichbar. Die Anbindung an das öffentliche Nahverkehrsnetz erfolgt über die U-Bahnstationen Innsbrucker Platz sowie diverse Buslinien. Einkaufsmöglichkeiten des täglichen Bedarfs sowie gastronomische Einrichtungen befinden sich in unmittelbarer Umgebung.
- Flughafen, Berlin Brandenburg, Fahrzeit: 25 min
- Bundesautobahn, A 100, Fahrzeit: 15 min
- Bus, Bushaltestelle Hänelstraße Buslinien M48, M85, Gehzeit: 3 min
- S-Bahn, Innsbrucker Platz, Linien S41, S42, S45, S46, Gehzeit: 2 min
- Hauptbahnhof, S-Bahn, Tram, Regionalzüge, Fernzüge, div. Linien, Fahrzeit: 15 min
- U-Bahn, Innsbrucker Platz, Linie U4, Gehzeit: 2 min
Ihr Kontakt

Tobias Rodewald
Ihr Kontakt





