Büros
ID B0431Provisionsfrei
Büroimmobilie - Berlin, Mitte - B0431
Mitte, 10179, Berlin, Berlin
22 € / m²
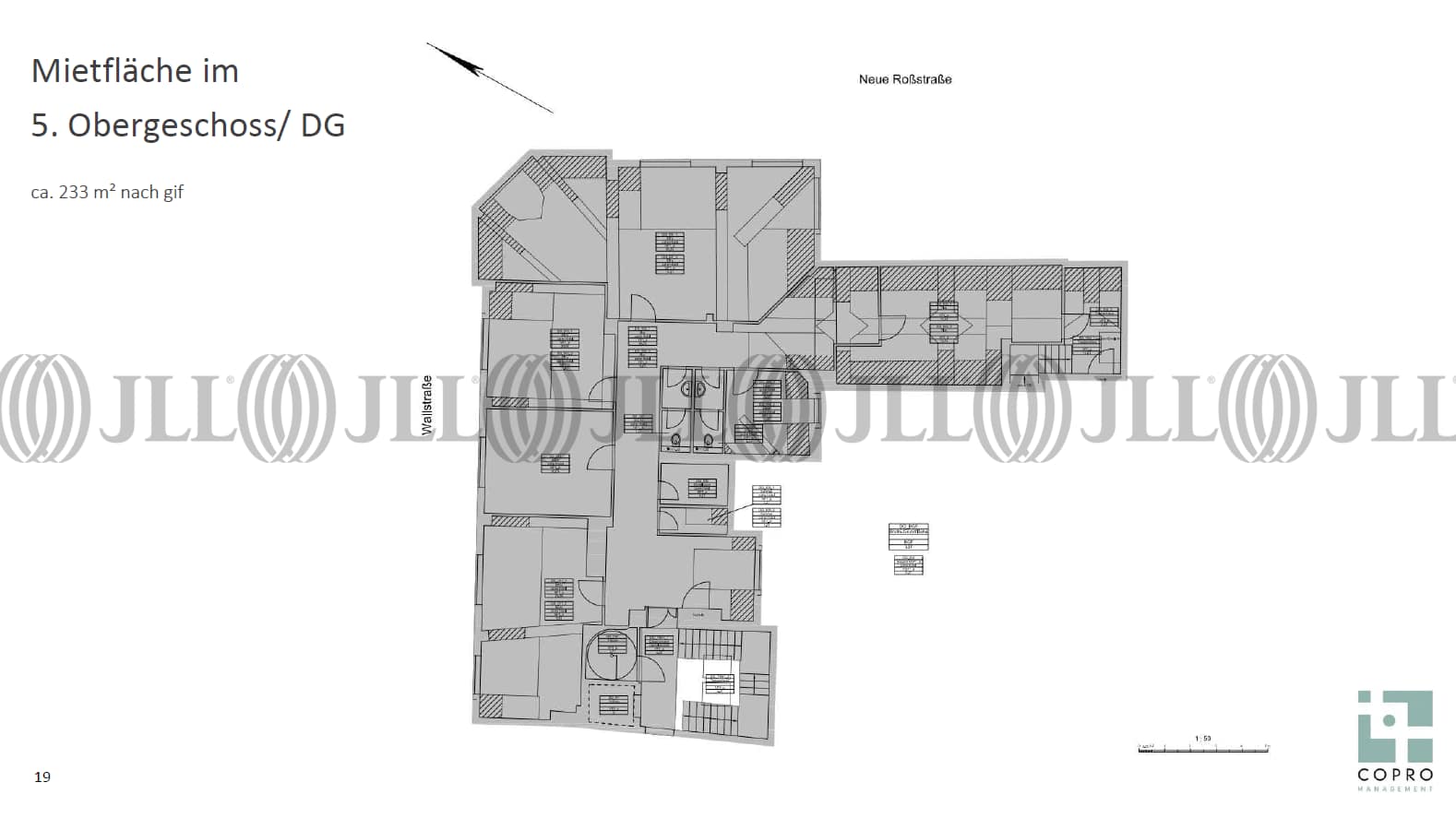
- Fläche233 - 1.723 m²
- VerfügbarkeitSofort
- Objekt
- Ausstattung
- Lage und Verkehrsanbindung
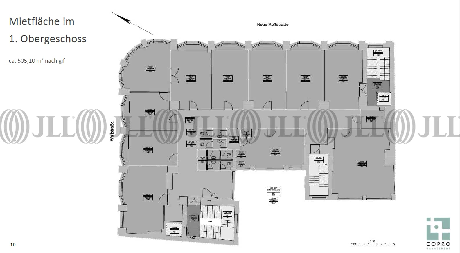
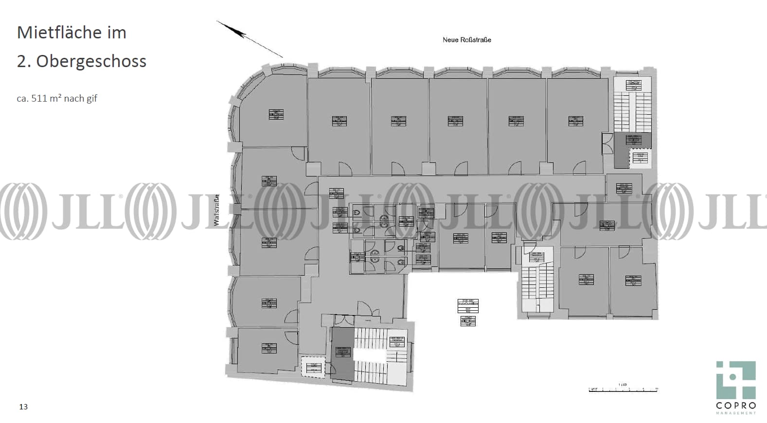
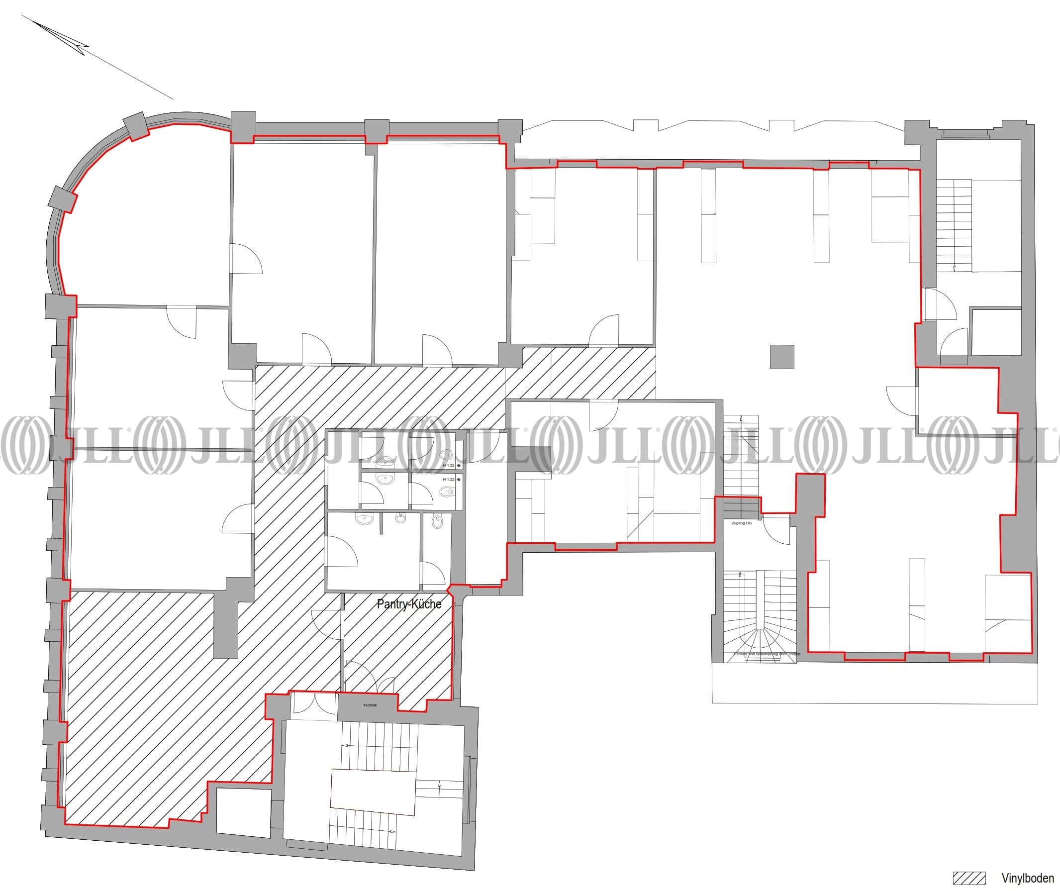
- Grundrisse
- Exposé herunterladen
- Ihr Kontakt
- Anfrage senden
Objekt
Es handelt sich um einen Altbau, dessen Fassade nach dem historischen Vorbild restauriert wurde. Das 2. OG kann auch flexibel für 1 Jahr und mi Service angemietet werden.
Zertifizierungen
Energieausweis
Für diese Liegenschaft liegt ein Verbrauchsausweis vom 2019-08-01 vom Eigentümer/Vermieter vor. Die wesentlichen Energieträger der Liegenschaft sind Fernwärme,Nahwärme. Der Endenergieverbrauch Strom beträgt 7.00 kWh/(m²*a). Der Endenergieverbrauch Wärme beträgt 191.00 kWh/(m²*a).Verfügbare Fläche
Lage und Verkehrsanbindung
Das Objekt befindet sich in markanter Ecklage im Berliner Bezirk Mitte in unmittelbarer Nähe des Spittelmarktes, der Fischerinsel und des Köllnischen Parks. Über die nahegelegene Leipziger Straße sind die übrigen Berliner Bezirke und das Regierungsviertel problemlos zu erreichen.
- Hauptbahnhof, Märkisches Museum; Linie U2, Gehzeit: 2 min
- U-Bahn, Berlin, Fahrzeit: 12 min
- Bus, U-Bahnhof Märkisches Museum Buslinien 147, 165, Gehzeit: 2 min
- Bundesautobahn, A 100, Fahrzeit: 20 min
- Flughafen, Berlin Brandenburg, Fahrzeit: 30 min
Ihr Kontakt

Alexandra Teich
Ihr Kontakt
Marktinformationen
Mietmarkt
Mitte, Berlin
Gew. Ø-Miete
22 € / m²
siehe 177 passende MietobjekteErfahren Sie mehr* Durchschnittspreis auf Grundlage historischer Transaktionen.


























