Büros
ID B0410Büroimmobilie - Berlin, Wilmersdorf - B0410
Wilmersdorf, 10719, Berlin, Berlin
Provisionspflichtig: bei Anmietung 3 Netto-Monatsmieten zzgl. gesetzlicher Umsatzsteuer.** der Wert kann je nach Vertragslaufzeit variieren.
26 € / m²
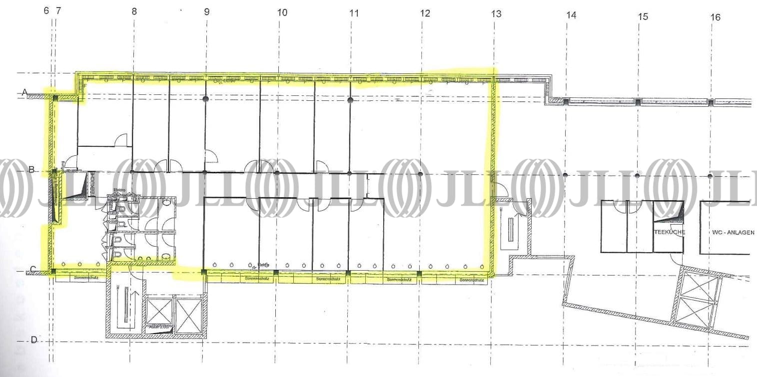
- Fläche465 - 1.395 m²
- VerfügbarkeitSofort
- Ausstattung
- Lage und Verkehrsanbindung
- Grundrisse
- Exposé herunterladen
- Ihr Kontakt
- Anfrage senden
Verfügbare Fläche
Lage und Verkehrsanbindung
Das Objekt befindet sich im Berliner Stadtteil Wilmersdorf, nur ca. 100 Meter vom Kurfürstendamm entfernt. Einkaufsmöglichkeiten und gastronomische Einrichtungen sind fußläufig zu erreichen.
- Hauptbahnhof, Berlin, Fahrzeit: 12 min
- U-Bahn, Uhlandstraße; Linie U1, Gehzeit: 5 min
- Bus, U Uhlandstraße; Linien 109,110,M19,M29,X10, Gehzeit: 5 min
- Bundesautobahn, A 100, Fahrzeit: 25 min
- Bundesautobahn, A 113, Fahrzeit: 25 min
- Flughafen, Berlin Brandenburg, Fahrzeit: 25 min
Ihr Kontakt

Alexandra Teich
Ihr Kontakt
Marktinformationen
Mietmarkt
Wilmersdorf, Berlin
siehe 0 passende MietobjekteErfahren Sie mehr
* Durchschnittspreis auf Grundlage historischer Transaktionen.
























