Büros
ID B0405Provisionsfrei
Büroimmobilie - Berlin, Mitte - B0405
Mitte, 10178, Berlin, Berlin
26 € / m²
- Fläche1.300 - 31.600 m²
- VerfügbarkeitSofort
- Objekt
- Ausstattung
- Lage und Verkehrsanbindung
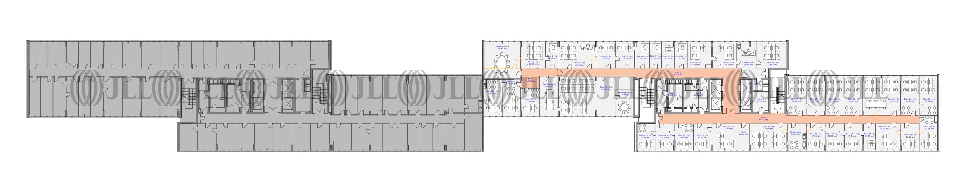
- Grundrisse
- Exposé herunterladen
- Ihr Kontakt
- Anfrage senden
Objekt
Das Gebäude wurde von 1994-1998 umfassend saniert und modernisiert. Im Erdgeschoß befindet sich ein zentraler Empfangsbereich mit Concierge. Die Büroflächen können als Einzel-, Kombi- und Großraumbüros gestaltet werden.
Zertifizierungen
Energieausweis
Für diese Liegenschaft liegt ein Bedarfsausweis vom 15.01.2024 vom Eigentümer/Vermieter vor. Die wesentlichen Energieträger der Liegenschaft sind KWK, Strom. Der Endenergiebedarf Strom beträgt 34,7 kWh/(m²*a). Der Endenergiebedarf Wärme beträgt 125,8 kWh/(m²*a).Verfügbare Fläche
Lage und Verkehrsanbindung
Das Objekt befindet sich in zentraler Lage im Bezirk Mitte in unmittelbarer Nähe zum Alexanderplatz und verfügt somit über eine sehr gute Infrastruktur. Hotels, Restaurants und umfangreiche Einkaufsmöglichkeiten sind in wenigen Gehminuten erreichbar.
- Hauptbahnhof, Hauptbahnhof, Fahrzeit: 20 min
- S-Bahn, Alexanderplatz; Linie S5, S7, S9, Gehzeit: 7 min
- U-Bahn, Alexanderplatz; Linie U2, U5, U8, Gehzeit: 7 min
- Bus, Mollstr./Prenzlauer Allee; Linien 142, 200, Gehzeit: 2 min
- Bundesautobahn, A 100, Fahrzeit: 30 min
- Flughafen, Berlin Brandenburg, Fahrzeit: 40 min
Ihr Kontakt

Gerald Dietzold
Ihr Kontakt
Marktinformationen
Mietmarkt
Mitte, Berlin
Gew. Ø-Miete
26 € / m²
siehe 177 passende MietobjekteErfahren Sie mehr* Durchschnittspreis auf Grundlage historischer Transaktionen.









