Büros
ID B0402Büroimmobilie - Berlin, Charlottenburg - B0402
Charlottenburg, 10627, Berlin, Berlin
Provisionspflichtig: bei Anmietung 3 Netto-Monatsmieten zzgl. gesetzlicher Umsatzsteuer.** der Wert kann je nach Vertragslaufzeit variieren.
25 € / m²
- Fläche140 - 406 m²
- VerfügbarkeitSofort
- Objekt
- Ausstattung
- Lage und Verkehrsanbindung
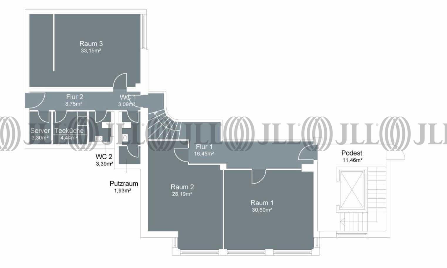
- Grundrisse
- Exposé herunterladen
- Ihr Kontakt
- Anfrage senden
Zertifizierungen
Energieausweis
Für diese Liegenschaft liegt ein Verbrauchsausweis vom 01.06.2008 vom Eigentümer/Vermieter vor.Der wesentliche Energieträger der Liegenschaft ist Fernwärme.Der Stromverbrauchskennwert beträgt 0,00 kWh/(m²*a).Heizungsenergieverbrauchskennwert beträgt 105,50 kWh/(m²*a).Verfügbare Fläche
Lage und Verkehrsanbindung
Das moderne und repräsentative Bürohaus liegt in einer ruhigen Seitenstraße der Bismarckstraße. Cafés, Restaurants und Einkaufsmöglichkeiten für den täglichen Bedarf sind zu Fuß zu erreichen. Auch der Kurfürstendamm ist nur wenige Minuten entfernt. Der Standort bietet eine optimale Anbindung an die öffentlichen Verkehrsmittel, an das Autobahnnetz und zum Flughafen. Das Berliner Messegelände, der Zentrale Omnibusbahnhof (ZOB), die Stadtautobahn und der Funkturm befinden sich in der Nähe des Objektes.
- Hauptbahnhof, Berlin, Fahrzeit: 12 min
- U-Bahn, Sophie-Charlotte-Platz; Linie U2, Gehzeit: 5 min
- Bus, Bismarckstraße; Linie 109, Gehzeit: 5 min
- Bundesautobahn, A 100, Fahrzeit: 15 min
- Flughafen, Berlin Brandenburg, Fahrzeit: 30 min
Ihr Kontakt

Alexandra Teich
Ihr Kontakt
Marktinformationen
Mietmarkt
Charlottenburg, Berlin
Gew. Ø-Miete
25 € / m²
siehe 102 passende MietobjekteErfahren Sie mehr* Durchschnittspreis auf Grundlage historischer Transaktionen.



