Büros
ID B0401Provisionsfrei
Büroimmobilie - Berlin, Charlottenburg - B0401
Charlottenburg, 10629, Berlin, Berlin
23 € / m²
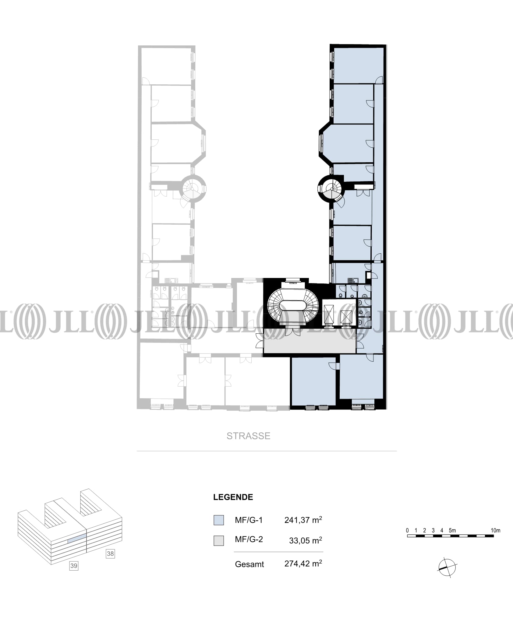
- Fläche274 - 1.965 m²
- VerfügbarkeitAuf Anfrage
- Objekt
- Ausstattung
- Lage und Verkehrsanbindung
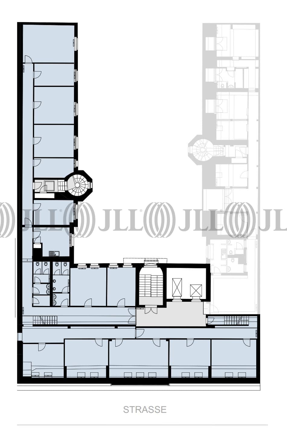
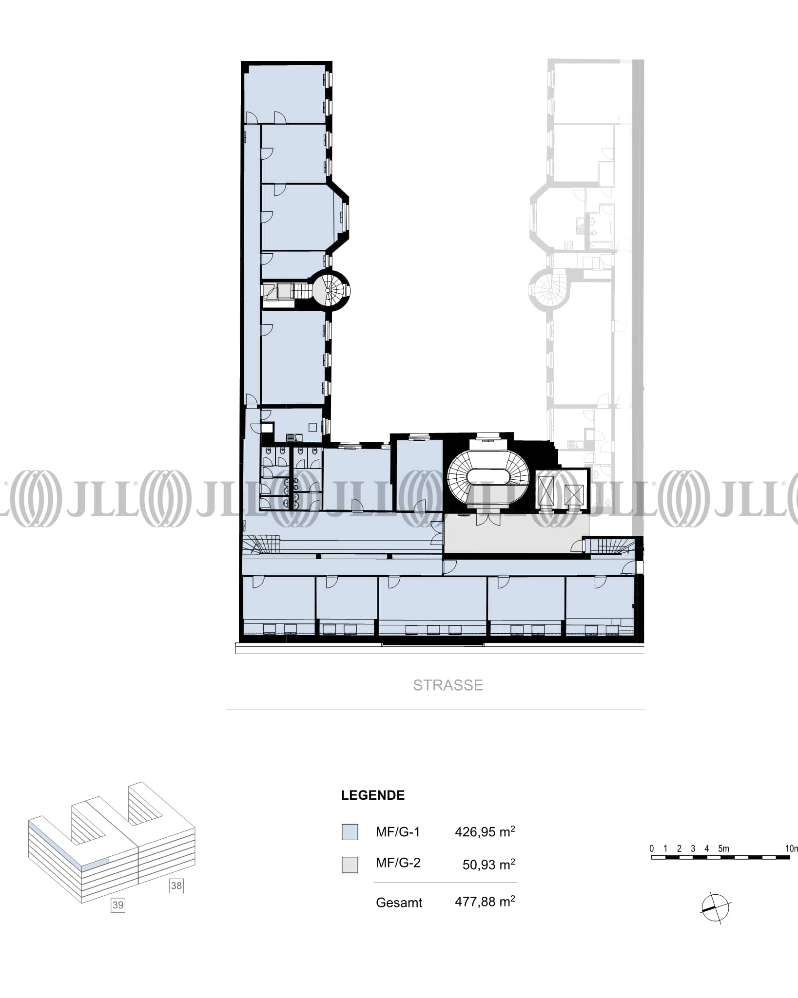
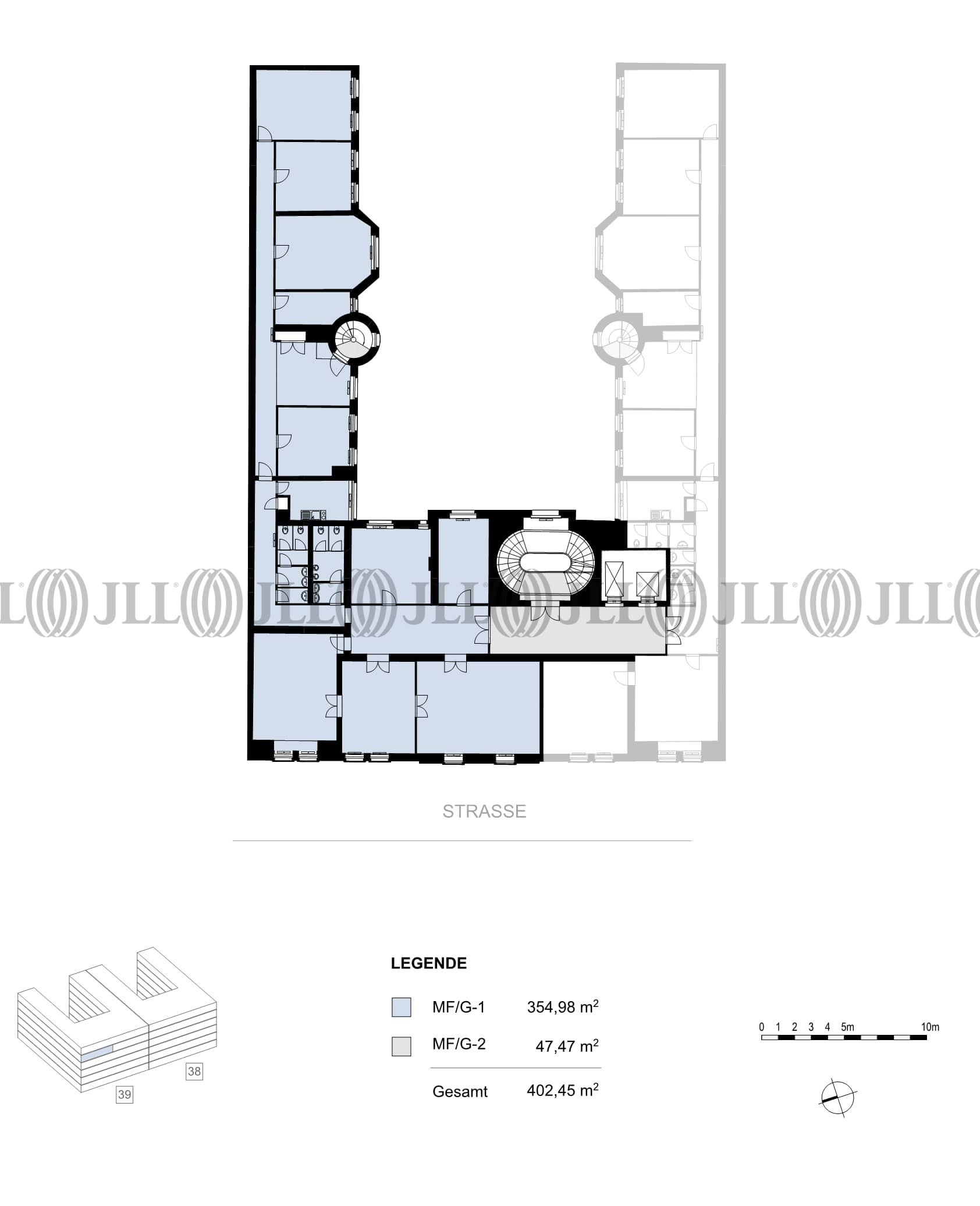
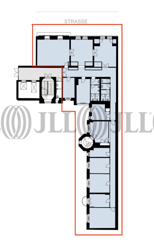
- Grundrisse
- Exposé herunterladen
- Ihr Kontakt
- Anfrage senden
Objekt
Das klassische Gebäude kombiniert zeitlose Eleganz mit zeitgemäßem Komfort und bietet eine erstklassige Ausstattung. Durch die harmonische Verbindung von traditionellem Design und modernen Annehmlichkeiten wird eine einzigartige Atmosphäre geschaffen, die sowohl Stil als auch Funktionalität betont.
Verfügbare Fläche
Lage und Verkehrsanbindung
Das Gebäude befindet sich beim Kurfürstendamm und somit an der bedeutendsten Einkaufsmeile Berlins. Namhafte Einzelhandelsgeschäfte, gastronomische Einrichtungen sowie Anbieter des täglichen Bedarfs prägen das Umfeld. Die Stadtautobahn A 100 ist in wenigen Fahrminuten erreichbar. Dienstleister des täglichen Bedarfs befinden sich in der Nähe.
- Flughafen, Berlin Brandenburg, Fahrzeit: 25 min
- Bundesautobahn, A 100, Fahrzeit: 15 min
- Bus, Bleibtreustraße; Linien M19, M29, 109, 110, X10, Gehzeit: 5 min
- Hauptbahnhof, Berlin, Fahrzeit: 12 min
- S-Bahn, Savignyplatz, Linie S5, S7, S75, Gehzeit: 10 min
Ihr Kontakt

Alexandra Teich
Ihr Kontakt
Marktinformationen
Mietmarkt
Charlottenburg, Berlin
Gew. Ø-Miete
23 € / m²
siehe 97 passende MietobjekteErfahren Sie mehr* Durchschnittspreis auf Grundlage historischer Transaktionen.











